Freidenberg ou "Freudenberg"
fut inspiré par KA Moscicki qui avait proposé
pour la première fois l'idée d'un centre à
relais en 1887 et a développé un schéma
de station à six numéros - un "commutateur
central à action automatique", qui fut rien dautre
que le prototype des stations téléphoniques automatiques.
Mais ce n'était pas encore un PBX au sens moderne, puisque
la commutation des connexions, bien que réalisée
sans opérateurs téléphoniques, était
contrôlée par les abonnés.
Bien que en Amérique :
- 1879 Daniel et Thomas Connolly
avec J.McTighe inventent le premier commutateur téléphonique
automatique au monde . (voir
dans le lien). Il est présenté
à Paris à l'exposition universelle de 1881.
- 1882, l'Américain James.P
Stabler qui oeuvrait déjà dans
les installations d'alarme, mis au point un système d'installation
de postes téléphoniques en série. L'un
des plus anciens en Amérique et des plus connus est celui
de la Stabler Individual Téléphone
Call Cie. (voir
dans le lien). Associé à un centre
manuel, l'appareil permettait à l'opérateur qui
recevait une demande (appel) de séléctionner et
sonner un autre abonné à l'aide d'un boitier à
touches, puis de mettre en conversation les deux abonnés
au moment ou il appuyait sur la touche de mise en relation.
- 1889
Strowger
concoit et construit un centre entièrement automatique
. (voir
dans le lien). Achevé en 1890 et fut
bientôt exposé au bureau de la compagnie de
téléphone du Kansas et de Missourie.
- 1892 le 3 novembre Strowger, met en service le
premier central téléphonique automatique avec
75 abonnés au début, extensible à 99
dans la ville de La Porte près de Chicago
dans l'Indiana et exploité par le Cushman Compagnie
de téléphone.
...
- 1893 Freudenberg était il informé
sur ces autres travaux et avancées en téléphonie
automatique ? |
  |
sommaire
Dès ses études à l'Université
d'Odessa, Frejdenberg connaît les travaux de KI Mostasky
dès 1887.
Linvention de Mostsitski ne put pas résoudre le
problème de lautomatisation de la communication
téléphonique pour un grand nombre dabonnés.
Mais cest un témoignage éclairant qui montre
que les ingénieurs voulaient automatiser la communauté
téléphonique déjà à la première
étape du développement de la téléphonie.
Il reprend ce principe et dès 1893, avec son ami S. M.
Berdichevsky (Apostonoff), développe un
modèle expérimental de standard téléphonique
automatique pour les 250 connexions de l'université à
l'"Université impériale de Novorossiysk"
à Odessa dans le Département de mécanique
et physique appliquées.
La commutation était gérée non par les
opératrices mais par les abonnés eux-mêmes.
Celui qui faisait lappel envoyait les indicatifs de labonné
à la station centrale, et ce signal était reçu
par tous les appareils téléphoniques faisant partie
de la station. Labonné en question, ayant entendu
l'appel, devait mettre le commutateur dans une bonne position
et appuyer son bouton montrant quil est prêt de
commencer la conversation.
Puis les deux abonnés décrochaient le levier des
téléphones ...
Cependant, comme Frejdenberg se voyait toujours refuser le soutien
nécessaire dans la Russie tsariste et que les exigences
techniques de production n'étaient pas satisfaites dans
son pays natal, il a été ramené en Angleterre.
Il a continué à développer
son système et a obtenu un brevet en Angleterre en 1894,
Apostoloff reçu un brevet américain en 1893.
La maquette du central fut fabriquée
dans latelier de lUniversité dOdessa
mais sa présentation ne suscita guère denthousiasme
parmi les Russes et le système sera breveté
plus tard au Royaume-Uni.
Vers 1900, il fonde à Londres la société
par actions "Freudenberg Automatic
Telephone Syndicate Ltd.". Cependant, il a vite
dû se rendre compte qu'il ne pouvait pas gagner la concurrence
avec les grandes entreprises établies telles que Bell
Company ou Siemens AG. Frejdenberg est retourné en Russie
et y a été impliqué pendant une courte
période dans le développement de la technologie
téléphonique domestique.
Mais ces brevets ne sont pas importants
car la construction de tels systèmes n'aurait pas été
pratique pour les grands réseaux téléphoniques.
Frejdenberg en était conscient.
Les caractéristiques générales
de son système sont illustrées dans la figure
ci-dessous (extraite du brevet) . Il utilisait certains des
principes dun système ferroviaire. L'interrupteur
était contrôlé par l'abonné mais
sans utiliser de cadran (pas encore inventé). Il s'agissait
d'un commutateur à point de croisement XY rudimentaire
avec une ressemblance grossière avec un commutateur à
barre transversale mais avec des barres fixes.

Le 27 mars 1895, Frejdenberg dépose un brevet
pour un système de commutation automatique sous le numéro
543 412, qui ne nécessitait qu'un seul fil de
l'abonné au central et était illimité dans
le nombre d'abonnés connectés.
Le 24 septembre 1895, il obtient enfin le brevet de l'Office
des brevets des États-Unis sous le numéro 546
725.
Brevet pdf
 
En
France Numéro de brevet : 253751 brevet : Brevet
d'invention de 15 ans Date de dépôt : 06.02.1896
Mandataire : CHASSEVENT Déposant : APOSTOLOFF AUTOMATIC
TELEPHONE PATENT SYNDICATE
En France Brevet 265112 Brevet d'invention de 15
ans Date de dépôt : 17.03.1897 Mandataire
: CHASSEVENT Déposant : APOSTOLOFF
Brevet Inpi 244832
02.02.1895 - auto-commutateur téléphonique, permettant
les communications téléphoniques entre les abonnés
d'un réseau, sans l'intermédiaire d'employés
spéciaux ; BERDITSCHEWSKY Salomon dit APOSTOLOFF
FREUDENBERG Moïse Paris (75056) ; (38 pages)
Brevet Inpi 248604
02.07.1895 - perfectionnements dans les auto-commutateurs téléphoniques
permettant les communications téléphoniques entre
les abonnés d'un réseau sans l'intermédiaire
d'employés spéciaux ; FREUDENBERG Paris (75056)
; (29 pages)
Brevet
Inpi 258725
07.08.1896 - nouveau système d'auto-commutateur téléphonique
permettant de supprimer les employés dans les bureaux
reliant les divers abonnés entre eux ; FREUDENBERG Moïse
Paris (75056) ; (30 pages)
Brevet Inpi 276744
06.04.1898 - perfectionnements apportés aux appareils
téléphoniques, en vue de permettre le groupement
d'un nombre quelconque d'abonnés sur une même ligne
aboutissant à un bureau central ; FREUDENBERG
Paris (75056) ; (23 pages)
sommaire
L'invention et le développement ultérieur décrits
ci-dessous étaient basés sur ces quatre objectifs
principaux.
1. Pas de limite au nombre de participants pouvant être
connectés,
2. un seul câble de chaque abonné au centre de
commutation,
3. aucun appareil supplémentaire chez le participant
et
4. haute fiabilité et faible sensibilité aux pannes.

La structure de base consiste en un système à
coordonnées X Y.
Cela signifie que chaque participant est en mesure de contrôler
le mécanisme de numérotation dans le groupe qui
lui est uniquement attribué depuis son domicile.
La jonction se produit sur deux plans, le plan X et le plan
Y. Etant donné que la trajectoire de déplacement
est ici relativement petite, la taille de l'ensemble du système
est également petite, voir Fig 1.
Sur la figure 1b19 le mécanisme principal est représenté
agrandi, la figure 2 montre le système en coupe. Le mécanisme
de déplacement d'un électroaimant peut être
vu en détail sur la figure 4. Les figures 6 et 6 bis
montrent le relais électromagnétique particulier
en vue de face et de côté dont la fonction sera
également expliquée dans la suite du texte. Sur
les figures 7 et 7bis, le commutateur dédié du
poste d'abonné est visible en plan et en coupe.
La figure 8 donne un aperçu du poste d'abonné
avec son mécanisme en vue de dessus, et les figures 9
à 11 en vues de côté.
Le dispositif d'abonné complet est visible sur la figure
12, en référence explicite au fait que le téléphone
utilisé est exclusivement le modèle construit
par Ader à partir de 1881 avec un microphone à
rouleau en carbone et des récepteurs à aimant
annulaire.
Les figures 13 et 14 montrent la structure du mécanisme
de numérotation d'un abonné dans le central en
vue de dessus et vue de côté, le point de connexion
réel atteignant l'abonné souhaité par l'interaction
des deux plans (horizontal et vertical) sur le champ de contact
de l'abonné .
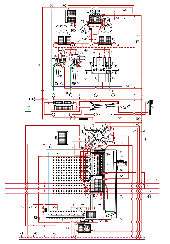
Fig 13 et 14
Le circuit lui-même est illustré
aux figures 15, 15a et 15b
La description du circuit des deux composants principaux du
nouveau tableau automatique amélioré.
1. L'équipement de commutation dans le central avec le
point de connexion mobile S,
2. le dispositif de contrôle dans le poste d'abonné.
Fig 15 
Fig 15 a 
Fig 15 b
Le standard.
L'appareil avec le point de connexion mobile S se compose de
deux plaques en caoutchouc dur AB et CD disposées horizontalement
l'une au-dessus de l'autre, voir Figure 3. Les contacts a et
b sont situés sur les deux plaques (les contacts a sont
sur la plaque supérieure, les contacts b sur la plaque
inférieure). Il y a deux bandes conductrices métalliques
pour chaque participant au-dessus de ces plaques, une au-dessus
de la plaque supérieure et la seconde en dessous de la
plaque inférieure, selon le nombre de participants connectés.
Entre chaque disposition des plaques en caoutchouc dur AB et
CD, le point de connexion S se déplace via la bobine
magnétique S2, qui a un aimant permanent à l'intérieur.
Selon le sens du flux de courant à travers la bobine
de solénoïde S2, le point de connexion S est déplacé
vers le haut ou vers le bas. Au repos, le point de liaison S
est en contact avec le plateau inférieur grâce
à l'aimant permanent et à la force d'un ressort.
Le point S fait donc partie d'un système à double
"chariot". Ce système à double chariot
est logiquement mobile dans deux directions, les directions
F1 et F2. On voit sur la figure 1 que F1 peut être déplacé
dans le sens de MN et F2 dans le sens de KL. Les mouvements
des chariots F1 et F2 sont provoqués par les bobines
magnétiques E1 et E2, voir Figure 4. Si un courant traverse
les bobines, le levier de verrouillage f6 sur la crémaillère
(cliquet 7) est déplacé vers l'avant via l'induit.
Sous l'effet de la force du ressort (2), le chariot se déplace
d'un pas lorsque l'alimentation est coupée. De cette
manière, le chariot est déplacé d'un pas
supplémentaire à chaque surtension. L'interaction
des deux chariots permet ainsi d'établir la bonne connexion
avec un grand nombre de contacts de manière spatialement
limitée via les deux directions MN et KL. Les tiges 9
et 10 servent de guide. Ceux également représentés
sur la figure 1.
Les bobines solénoïdes 11 et 12 ont pour tâche
de ramener la cabine à la position de départ après
la fin de l'appel. En attirant les armatures des bobines magnétiques
11 et 12, elles enfoncent les crémaillères des
chariots de sorte que les cliquets ne peuvent plus s'encliqueter.
A propos de la force du ressort (ressorts 16 et 17), les deux
chariots sont ramenés à leur position d'origine.
La construction.
Une plaque métallique t est placée parallèlement
à la direction du mouvement, isolée de toutes
les autres pièces appartenant au système. Des
secteurs métalliques conducteurs et isolés de
même dimension sont disposés alternativement sur
sa surface, voir figure 1b19. Un pas de déplacement du
chariot correspond à un secteur conducteur et à
un secteur isolé. Un ressort de contact t2 est fixé
au chariot, qui repose sur le premier secteur isolé lorsque
le chariot est au repos. Même après chaque étape,
ce ressort est à nouveau sur un secteur isolé.
Mais il y a une deuxième plaque métallique f qui
est construite exactement de la même manière, la
seule différence avec t est la séquence des secteurs
isolés et conducteurs. Ainsi, pour chaque secteur conducteur
de la plaque t, il existe un secteur isolé de la plaque
f et inversement. Un ressort de contact t5 est situé
sur un secteur conducteur lorsque le chariot est au repos.
A l'extérieur de la plaque d'ébonite sur laquelle
les chariots sont déplacés se trouve un électroaimant
E3 dont l'armature 27 mène via l'extension 28 (figure
13) et le levier 29 à un cliquet 30 qui engage la roue
à rochet H et la fait tourner dans le sens des aiguilles
d'une montre. Un cliquet d'arrêt opposé 30 régule
et freine la rotation de la roue à rochet H tournant
sur l'axe vertical O3 (figures 7 et 7bis).
Toujours sur l'axe O3 se trouve un disque avec 4 parties saillantes
l, l1, l2, l3 perpendiculaires entre elles, plus loin la roue
H3 en ébonite, quatre paires de bandes métalliques
pliées vers le bas orthogonales h1, h2, h3, h4, h5, h6,
h7, h8 qui, comme décrit plus loin, glissent sur une
rangée de contacts. La roue à rochet H1 est reliée
conductivement à l'axe O3. Il a 20 dents. La roue à
rochet H1 est en contact direct avec le disque isolé
H2, qui est divisé à son bord en 40 secteurs égaux,
dont 20 sont conducteurs et les 20 autres sont isolés.
Deux balais H4 et H5 contactent le disque H2. Un relais électromagnétique
spécial R est situé sur le côté de
chaque plaque d'ébonite, voir Figure 6. Les deux bobines
de relais Q1 et Q2 sont chacune assises sur une branche d'un
aimant en fer à cheval, qui porte la plaque de caoutchouc
dur q3 à l'autre extrémité. Il y en a deux
réglables sur la plaque en caoutchouc dur q3.
Les contacts q4 et q5 et les connexions. Entre les contacts,
la petite armature q8 est suspendue de manière mobile
au point d'appui q9 dans la partie supérieure de l'aimant
en fer à cheval. Selon la direction du courant circulant
dans les bobines de relais Q1 et Q2, les champs magnétiques
des noyaux de fer traversant les bobines sont renforcés
ou affaiblis. Une fois l'armature q8 est attirée par
le noyau de fer Q3 et en cas d'affaiblissement elle tombe sur
le noyau de fer Q2. Les ressorts Q10 supportent l'effet de chute.
L'armature q8, qui est située au pôle positif de
la batterie au centre, est initialement à la vis de réglage
q7, comme on peut également le voir sur la figure 15.
sera décrit plus tard.
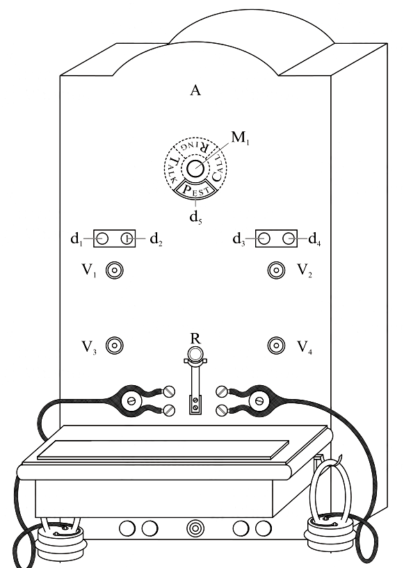
L'appareil chez le participant.
Comme déjà dit, le téléphone utilisé
était celui qui avait été construit par
la société française Ader depuis 1881 et
était largement utilisé, notamment en France.
La mécanique et la technologie supplémentaires
nécessaires pour contrôler le "chariot"
dans le centre de contrôle sont situées dans un
boîtier derrière le téléphone lui-même,
sur lequel les boutons et les indicateurs sont visibles de l'extérieur.
Le mécanisme intégré est constitué
essentiellement du relais électromagnétique U,
Figure 8, identique au relais Q du tableau de commande, des
trois électroaimants E4, E5 et E6 et d'un interrupteur
K (commutateur), voir Figures 11 et 11bis.
Ce collecteur est essentiellement constitué d'un tambour
en matériau isolant avec deux barres métalliques
rectangulaires K2 et K3 qui, isolées l'une de l'autre,
forment quatre contacts à la surface du cylindre. Cependant,
deux autres contacts métalliques K4 et K5 sont logés
dans le cylindre et sont reliés électriquement
l'un à l'autre par un fil traversant le collecteur. Sept
ressorts de contact, T1, T2, T3, T4, T5, T6 et T7, reposent
sur le commutateur et entrent ainsi en contact avec les contacts
décrits précédemment lors de la rotation.
A l'extrémité de l'arbre du collecteur se trouve
l'engrenage P4, qui engrène avec l'engrenage P2, qui
est sur son propre axe. Celui-ci, à son tour, engrène
avec l'autre roue dentée P1, sur l'axe de laquelle un
ressort de barillet est tendu lorsque la manivelle P (figure
12) est tournée.
Le collecteur est installé dans le boîtier de manière
à pouvoir se déplacer dans le sens axial. Normalement
il est écarté par le ressort 34 et est bloqué
en rotation par la goupille v4 s'engageant dans l'un des trous
v5.
Tant que le concurrent s'abstient d'appuyer sur le bouton V1,
la goupille v4 reste en place dans le trou v5, empêchant
ainsi la rotation du commutateur. Mais si le concurrent appuie
sur le bouton V1, le levier v3 tourne autour de son point d'appui,
la goupille v4 sort du trou v5, libérant ainsi le commutateur
en rotation sous l'action du ressort derrière la roue
P1.
Si le concurrent appuie sur le bouton V2 au lieu de V1, le levier
v6 tourne autour de son point d'articulation comme représenté
sur les figures 11 et 11bis, activant ainsi le levier v7 qui
déplace le commutateur dans le sens axial et comprime
en même temps le ressort 34. Avec ce déplacement
latéral du collecteur, la goupille v4 est également
soulevée hors du trou v5 et le collecteur est libéré
pour tourner via le ressort spiral.
Dans ce dernier cas, lorsque le collecteur
est déplacé longitudinalement sur l'axe, celles
des tiges métalliques K2 et K3 et les contacts surfaciques
K4 et K5 sont alternativement reliés aux ressorts de
contact T1 à T7 lors du mouvement de rotation du collecteur.
Les conséquences seront discutées plus tard.
Les trois autres boutons V3, V4 et V5 ont des tâches différentes.
V3 se connecte à l'extrémité du levier
n1 portant les contacts de doigt n2, n3 et n8. Normalement,
c'est-à-dire lorsque V3 n'est pas enfoncé, le
levier est maintenu en position de repos par le ressort n7.
Mais si l'on appuie sur V3, le levier n1 est pivoté au
niveau de son point de pivotement et le contact de doigt n8
vient en contact avec la plaque de contact n9. De plus, les
doigts n8 et n2 viennent en contact les uns après les
autres avec les plaques de contact n4, n5 et n6. Si V3 est à
nouveau relâché, le levier n1 revient en position
de repos grâce au ressort n7.
Le bouton V4 est relié à l'extrémité
du levier m8, figure 10, qui à l'autre extrémité
porte les doigts de contact m1, m2 et m3. Le levier m8 est maintenu
dans sa position de repos par le ressort m7 lorsque le bouton
V4 n'est pas enfoncé. Lors de l'appui sur V4, le doigt
m2 entre en contact avec la plaquette de contact m5. En
outre, dans l'ordre, le doigt ml entre en contact avec la plaque
m9, le doigt m2 entre en contact avec la plaque m4 et le doigt
m3 entre en contact avec la plaque m5.
Lorsque le bouton V4 est à nouveau relâché,
le levier m8 revient en position de repos grâce à
la détente du ressort m7.
On a déjà mentionné que les organes essentiels
de l'appareil de numérotation de l'abonné comprennent
le relais électromagnétique U, qui est de construction
identique au relais R du central et dont on a déjà
parlé, et les trois électroaimants E4, E5 et E6.
L'armature e4 appartenant à l'électroaimant E4
actionne le cliquet p2 par l'intermédiaire du levier
p1 et de la tige p8 qui s'engage dans la roue à rochet
W2 et entraîne ainsi en rotation l'arbre W1. Un ressort
maintient constamment le cliquet sur les dents de la roue à
rochet W2. L'envoi d'un courant dans l'électroaimant
E4 provoque l'attraction de l'armature a4 et l'abaissement du
cliquet p2 via la tige p8. Le ressort tire alors le cliquet
derrière la dent de la roue à rochet.
Si le circuit est interrompu par E4, le ressort W5 ramène
le mécanisme à levier en position de repos, le
cliquet est alors tiré vers le haut et cela fait tourner
la roue à rochet. Sur le même arbre est également
montée une rondelle ronde W3, équipée d'une
goupille W6 près de sa circonférence.
A chaque rotation du disque W3, la goupille W6 fait tourner
la roue dentée W4 d'une dent. Sur les arbres des roues
W2 et W4 se trouvent des plaques sur lesquelles sont inscrits
les chiffres 1, 2, 3, 4, 5, 6, 7, 8, 9 et 0. Ces deux plaques
reflètent le nombre de courants et donc la fréquence
d'attraction de l'électroaimant E4 dans le système
décadique, à condition que les roues W2 et W4
aient chacune 10 dents. Il y a donc une roue pour les uns, l'autre
pour les dizaines. Le tout peut être agrandi avec des
roues supplémentaires (pour des centaines ou des milliers,
etc.) si nécessaire. Les ouvertures d1 et d2 par lesquelles
l'abonné peut voir les numéros composés
sont visibles sur la figure 12 sur la face avant du boîtier.
L'électroaimant E5 commande un système identique
à celui qui vient d'être décrit. En observant
dans les ouvertures d3 et d4, le participant est capable d'identifier
le nombre de flux à travers E5. Néanmoins, une
particularité de ce système doit être soulignée.
Si les deux cadrans sont à 0, c'est-à-dire si
aucun courant n'a traversé l'électroaimant E5
jusqu'à présent, et que le levier coudé
i4 reste dans la position illustrée à la figure
8 grâce à la goupille i3 et malgré le ressort
i5, la première surtension de courant faites tourner
la roue i2 d'une dent, la goupille i3 libère le levier
incurvé i4, qui tourne dans son articulation i1 par la
force du ressort i5, libérant ainsi la liaison avec i6
et contactant i7.
Plus d'informations à ce sujet ultérieurement.
L'électroaimant E6 actionne, par l'intermédiaire
de son armature l7, le levier l8, le levier L9 prenant appui
sur l'axe j4. Un cliquet est fixé au levier L9 et engage
les dents de la roue à rochet L5. Lorsque le courant
traverse E6, le cliquet est tiré vers l'arrière
sur une dent de la roue à rochet. Si le passage du courant
est interrompu, l'armature tombe, assistée par le ressort
L6, et le cliquet fait tourner la roue à rochet d'une
dent dans le sens des aiguilles d'une montre. Une roue dentée
repose sur l'axe j4, qui entraîne la roue dentée
j6 et le disque j1 qui lui est relié. Ce disque comporte
quatre languettes de contact perpendiculaires l'une à
l'autre, les deux en vis-à-vis reposant sur les plaques
métalliques j3 et j2 au repos. Également visible
vers l'avant dans la fenêtre d5 de la figure 12, le disque
est divisé en quatre secteurs intitulés Rest,
Call, Ring et Talk. Le repos est reconnaissable à l'état
inactif.
Le bouton V5 sur le côté droit du boîtier
permet de remettre l'appareil dans son état initial.
Le fonctionnement de l'appareil.
Maintenant que les différents sous-ensembles ont été
décrits chez l'abonné et dans le centre de contrôle,
passons maintenant à une description technique de l'utilisateur.
Pour cela, nous supposons que l'ensemble du système se
compose de seulement trois participants et du centre de contrôle.
Afin de clarifier les explications, trois schémas de
circuit détaillés, figures 15, 15a et 15b, ont
été inclus.
Cependant, il convient également de préciser que
le standard décrit ici est divisé en trois sous-groupes
et donc chaque connecté serait en mesure d'appeler automatiquement
224 autres participants à tout moment. De plus, tout
ce qui est dit sur les disques CD inférieurs au siège
social s'applique également aux disques supérieurs.
La batterie utilisée dans le panneau de commande est
divisée en deux, c'est-à-dire que le fil 40 est
connecté au pôle positif et le fil 41 au pôle
négatif de la batterie. Le fil 42 est mis à la
terre.
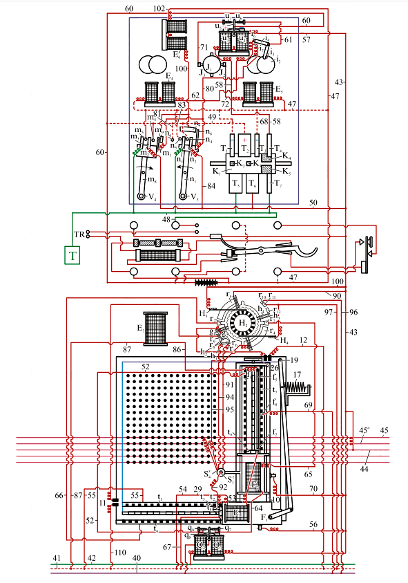
Considérons le participant X.
Le fil de ligne 43 se termine par une bande métallique
44 sous tous les appareillages de commutation du central. Dans
notre exemple, tous les contacts dont la coordonnée horizontale
est 4 et dont la coordonnée verticale est 3 sont associés
à la bande 44.
Ils forment un prolongement du fil de ligne de l'abonné
X. La bande 45a, qui correspond au fil de ligne de l'abonné
Y, est reliée de la même manière à
tous les contacts des différents appareillages du centre
de contrôle par rapport à leur coordonnée
horizontale (2) et coordonnée verticale (4). De même,
le fil de ligne de l'abonné Z sur le ruban 45 (coordonnée
horizontale 3, coordonnée verticale 5). Le fil de ligne
43 de l'abonné X est également relié à
la bobine du relais R, l'autre borne des bobines Q2 et Q3 du
relais R passe à la masse.
Supposons que l'abonné X souhaite parler à l'abonné
Z, on dirait que son fil de ligne devrait se connecter au troisième
sous-groupe et là au cinquième point de commutation,
exprimé en 3/5. Pour ce faire, le participant X doit
d'abord déplacer son mécanisme de sélection
dans le centre de contrôle dans une direction horizontale
jusqu'à la troisième étape, puis six étapes
verticalement, à partir de la position de repos du point
de déplacement S1. Au repos, le chariot est au-dessus
du contact
S4, qui a une longueur de deux points de commutation dans la
direction verticale, c'est-à-dire que la première
rangée de points de commutation n'est atteinte qu'après
le deuxième pas vertical.
En appuyant une fois sur le bouton V1 du poste d'abonné
X, le commutateur tourne d'une longueur de dent (comme expliqué
précédemment) lorsqu'il est relâché.
Une pression répétée fait tourner le commutateur
en conséquence. Dans notre cas, il faut appuyer trois
fois. Les extrémités de la tige K2 entrent en
contact avec les ressorts T1 et T5, tandis que les extrémités
de la tige K3 entrent en contact avec les ressorts T2 et T6.
Le ressort T1 est relié par le fil 47 à la borne
négative de la batterie d'abonné, et le ressort
T5 est relié par le fil 48 à la masse. Désormais,
les extrémités des piquets K3 mettent à
la masse le pôle négatif de la batterie d'abonné
via les ressorts T2 et T6. Le ressort T2 est relié via
les lignes 49 et 60 à la borne positive de la batterie
d'abonné et le ressort T5 via le fil 50 à la ligne
d'abonné 43. Désormais, le pôle positif
de la batterie d'abonné est relié au fil de ligne
43 par l'intermédiaire des ressorts T2 et T6. Par conséquent,
un courant positif circule dans les enroulements du relais R
(Q2 et Q3) via le fil de ligne 43 et revient à la terre
via les fils 46 et 42, qui est maintenant relié via le
fil 48, le ressort T1, la tige K2, le ressort T5 et le fil 47
à la borne négative de la batterie. Sous l'influence
de ces courants, l'armature q8 du relais est attirée
vers le noyau de la bobine Q3 et l'extrémité supérieure
de ladite armature touche la vis q6. L'induit q8 est relié
en permanence au pôle positif de la pile centrale via
le fil 51, également à la plaque f1 via q6 et
le fil 52.
Ainsi, un courant circule via le fil 51, l'induit q8, la vis
q6 et le fil 52 vers la plaque f1 et de là, voir figure
1bis, via le balai t6, qui est relié à un secteur
métallique de la plaque f1, à la plaque f2 (F2
est toujours au repos). De là, le courant passe par le
fil 53 à l'électroaimant E1 et par les fils 54
et 41 revient au pôle négatif de la batterie centrale.
L'électro-aimant E1 est excité et attire son armature,
poussant ainsi le cliquet vers l'avant d'une dent pour faire
avancer le chariot F1 d'une longueur de dent lorsque le circuit
est désexcité par la force du ressort. Sur la
figure 15, les organes de l'équipement dans le central
de l'abonné X sont représentés après
trois étapes à partir de F1 et 6 étapes
à partir de F2, tandis que les organes de l'appareillage
des abonnés Y et Z sont toujours dans leurs positions
initiales. Lorsque le courant positif cesse de circuler dans
la ligne d'abonné via le commutateur (on en parle dès
que les extrémités des tiges K3 ne sont plus en
contact avec les ressorts T2 et T6), l'armature q8 retombe au
centre (repos ) est en retard et le circuit à travers
l'électroaimant E1 est interrompu, de sorte que le chariot
F1 est un peu plus loin. Le circuit précité n'est
plus fermé avant que le collecteur K1 ait fait un demi-tour
et le contact entre les extrémités des tiges K3
et les ressorts T2 et T6 est ainsi rétabli. Ensuite,
un courant positif est à nouveau envoyé dans le
relais R comme décrit précédemment. Pendant
ce temps, dès que le premier appel positif de courant
à travers la ligne d'abonné est terminé
et que le circuit à travers l'électroaimant E1
est coupé et que le chariot F1 a avancé d'une
dent sur la crémaillère 7, c'est-à-dire
lorsque les extrémités des tiges K3 ne font plus
contact avec les ressorts T2 et T6 ont, lors de l'avance du
balai t2 sur le chariot F1, une liaison au négatif via
le fil 55 au pôle négatif de la pile centrale.
Le chariot F1 est relié à la ligne d'abonné
43 par la ligne 56 ainsi que le balai t2 par un secteur métallique
de la plaque t1. L'impulsion négative de courant mène
via le fil 57 aux bobines du relais en U, via le fil 58 au ressort
T4, via les plaques de commutation K4 et K5 au ressort 7 et
via le fil 48 à la masse.
Il convient de noter que seules les plaques K4 et K5 peuvent
compléter le circuit du relais U lorsque les barres de
commutation K3 et K2 sont incapables de fournir un courant dans
la ligne d'abonné. Le courant négatif mentionné
ci-dessus fait dévier l'armature u5 du relais U vers
le noyau de la bobine U3 et l'amener contre la vis u6. Un courant
circule maintenant du pôle positif de la batterie du participant
via le fil 60, l'armature u5, la vis u6, le fil 61, le levier
i4, le contact i6, le fil 62 dans les bobines de l'électroaimant
E4 et de là via le fil 47 à nouveau vers le négatif
borne de la batterie du participant. L'électroaimant
E4 est excité et son armature attire.
Cela fera finalement tourner la roue W2 comme décrit
précédemment et le numéro 1 sera affiché
dans la fenêtre d2. Il ne faut pas oublier que seule une
partie du courant négatif dans la ligne d'abonné
atteint le relais U, l'autre partie passe par le relais R dans
le central. L'armature q8 est alors attirée vers le noyau
de la bobine U2 et contacte la vis q7 qui est reliée
par le fil 64 à l'électroaimant E2 et attire son
armature. Ce dernier est relié par le fil 65 au contact
r2, voir figures 15, 7 et 7bis, et à ce moment, par les
languettes l1 et l3 du disque r1, également à
r3 qui est relié par le fil 66 à la plaque f6.
Au moment où le courant négatif de la batterie
centrale est envoyé à l'abonné, le ressort
t5 connecté au moins via le fil 67 se tient exclusivement
avec un secteur isolé de la plaque f6 est connecté
et avec lui le circuit de l'électroaimant E2 est ouvert
et il s'ensuit donc que le courant négatif envoyé
par la batterie centrale à l'abonné n'a aucune
influence sur les organes de la centrale à l'exception
du courant sans conséquence à travers les bobines
de la relais R.
Après que l'effet du courant négatif sur l'électroaimant
E4 a eu lieu, un nouveau courant positif suit du poste d'abonné
au poste central par la rotation continue du tambour de commutateur
K1, et de plus, suivi d'une impulsion négative du poste
central dans le poste d'abonné, etc., tant que le participant
appuie sur le bouton V1. Dans la fenêtre d2, la pièce
peut voir le nombre de séries d'impulsions. Dans notre
cas précis, le bouton V1 ne doit être relâché
que lorsque le chiffre 3 apparaît dans la fenêtre
d2.
Après avoir relâché V1, le bouton V2 est
maintenant enfoncé. Cela fait monter le collecteur, figure
11, de sorte que les extrémités de la tige K2
entrent en contact avec les ressorts T2 et T5 par rotation du
collecteur, tandis que les extrémités de la tige
K3 entrent en contact avec les ressorts T3 et T6. En appuyant
sur le bouton V2, bien entendu, le commutateur est également
libéré pour tourner, comme déjà
décrit. Par suite de la rotation du collecteur, les extrémités
de la tige K2 sont d'abord reliées aux ressorts T2 et
T5. Cela n'a pas d'autres effets électriques, mais met
à la terre le pôle positif de la batterie d'abonné.
Puis les extrémités de la tige K3 viennent en
contact avec les ressorts T3 et T6. Le ressort T3 est relié
par les lignes 68 et 47 à la borne négative de
la batterie d'abonné et le ressort T6 est relié
à la ligne d'abonné. Le courant négatif
alimente les bobines Q2 et Q3 du relais R à la masse.
L'armature q8 est attirée vers le noyau de la bobine
Q2 et s'appuie contre la vis q7 en haut.
L'établissement de ce contact ferme le circuit de l'électroaimant
E2, pôle positif de la pile centrale, armature q8, vis
q7, fil 64, électroaimant E2, le fil 65, contact r2,
la connexion par la saillie l1 et l3, contact r3, fil 66, Secteur
conducteur de la plaque f6, ressort t5 et via le fil 67 à
la borne négative de la pile centrale. L'électroaimant
E2 attire son armature provoquant le pas du chariot F2 comme
expliqué précédemment.
Avec la rotation du collecteur, les extrémités
de la tige K3 relient les ressorts T3 et T6, l'armature q8 revient
dans sa position de repos, ouvrant ainsi le circuit de l'électroaimant
E2. Le commutateur K1 entretient un deuxième courant
négatif du poste d'abonné et déplace le
chariot F2 d'une deuxième dent, mais cela se fait ici
de manière similaire au déplacement précédent
du chariot F1 par des impulsions positives et négatives
tant que le bouton V2 est enfoncé dans la manière
suivante : la plaque t7, glissant sur le ressort t8 du chariot
F2, via le fil 69 jusqu'à la borne positive de la batterie
centrale, tandis que le chariot F2 est relié à
la ligne d'abonné 43 via le fil 70. Donc au moment où
le ressort t8 glisse sur un secteur métallique de la
plaque t7, un courant positif de la batterie centrale parcourt
le fil 69, la plaque t7, le ressort t8, le chariot F2, le fil
70, la ligne d'abonné 43 dans le relais U envoyé
au poste d'abonné. Ce courant à travers les bobines
du relais U va de là via le fil 58, le ressort T4, les
pièces métalliques K4 et K5, le ressort T7 et
le fil 48 à la masse. Le courant positif à travers
le relais U provoque le déplacement de l'armature u5
vers le noyau de la bobine U4 et son extrémité
supérieure entre en contact avec la vis u7, par laquelle
le circuit de l'électroaimant E5 est fermé - borne
positive de la batterie d'abonné, fil 60, armature u5,
vis u7, fil 71, plaque j3, roue j, plaque j2, fil 72, électroaimant
E5 via le fil 47 à la borne négative de la batterie
d'abonné. Le chiffre 1, qui apparaît dans la fenêtre
d4, est préparé via l'armature désormais
attractive de l'électroaimant E5. Tant que le participant
maintient le bouton V2 enfoncé, ce processus est répété
dans le même ordre et le participant reconnaît les
pas effectués par la chariot F2 à travers l'affichage
en d4. Les courants positifs qui ont eu lieu entre-temps du
centre vers le poste d'abonné n'ont pas non plus de conséquences
pour les organes du centre car lorsque l'armature q8 vient en
contact avec la vis q6, le ressort t6 repose sur un secteur
isolé de la plaque f2 mais sur f3, et t6 repose également
sur un secteur isolé de la plaque f1. De ce fait, le
circuit de l'électroaimant E2 est interrompu en deux
points. Cependant, l'abonné continue d'appuyer sur le
bouton V2 jusqu'à ce qu'il voit dans les fenêtres
d3 et d4 une combinaison de nombres égale au dénominateur
de la fraction d'abonné qu'il veut appeler. Au cas où
X voudrait se connecter avec Z, il garderait son doigt sur le
bouton V2 jusqu'à ce que le chiffre 5 apparaisse dans
la fenêtre d4.
Maintenant, le point de connexion S1 de l'unité de commutation
de l'abonné X serait sur la cinquième ligne du
centre de contrôle, bien que le chariot ait fait six pas
verticalement. A la première étape aucun flux
contrôlé n'est envoyé à la station
d'abonné car lors de la première étape
t8 n'a aucune connexion avec un secteur métallique de
t7.
Les mesures essentielles de numérotation ont été
effectuées et le point de connexion S1 de l'abonné
X est connecté à la ligne d'abonné Z. L'accès
aux électroaimants doit maintenant être bloqué,
en ce qui concerne l'électroaimant E1, cela a déjà
été fait lorsque le chariot F2 a fait le premier
pas.
Le circuit de l'électroaimant E4 a été
interrompu au niveau de la vis u6 après que la roue i2
a tourné d'une dent et que le levier i4 n'était
plus maintenu par la broche i3 et i4 a contacté i7 via
le ressort i5 de sorte qu'au lieu de l'électroaimant,
le circuit sur la vis u6, le fil 61, le levier i4, le contact
i7, le fil 80, le doigt n8 au bout du levier n1 commandé
par le bouton V3. Comme cela sera expliqué plus loin,
le doigt n8 ferme le circuit de l'électroaimant E6 au
bon moment.
L'électro-aimant E3 dans le panneau de contrôle
sert également à couper le circuit de E2 comme
suit : Après que le participant X a relâché
le bouton V2, il appuie sur le bouton V3 pour envoyer un signal
positif au panneau de contrôle, puis un négatif,
et enfin un envoyer à nouveau un courant positif. Lorsque
V3 est pressé, le levier n1 tourne à son point
d'appui comme indiqué par la flèche sur la Fig.15.
Les doigts n2 et n3 glissent sur les contacts n4, n5 et n6.
Le contact n5 est relié à la borne négative
de la batterie d'abonné via les fils 81 et 47 et les
contacts n4 et n6 via les fils 82 et 83 à la borne positive
de la batterie d'abonné. Le doigt n2 passe par le contact
n4 et le doigt n3 passe par le contact n5. Étant donné
que le doigt n2 est connecté à la ligne d'abonné
par les fils 84 et 50 et que le doigt n3 est connecté
à la masse par les fils 85 et 48, lorsque les contacts
n4 et n5 sont touchés, un courant positif circulera dans
le fil 82, Contact n4, doigt n2, fils 84 et 50, ligne d'abonné
43, relais R, fil 46 à la masse et de là via les
fils 48 et 85, doigt n3, contact n5 et fils 81 et 47 envoie.
Les doigts n2 et n3 sont bien entendu isolés du levier
n1.
Le courant positif alimente le relais R et son armature s'installe
contre la vis q6.
Ceci complète le circuit via l'électroaimant E3
: pôle positif de la pile centrale, fil 51, armature q8,
vis q6, fil 52, plaque f1, ressort t6, plaque f3, fil 86, électroaimant
E3, fil 87 et via le fil 41 à le pôle négatif
de la batterie centrale. L'armature 27 de l'électroaimant
E3 attire et actionne le cliquet 30 via le levier 28, de sorte
que la roue à rochet H1 tourne une dent. La roue à
rochet H1 est fermement assise sur l'arbre O3, tout comme la
roue r1, voir Figure 13.
Les projections l1 et l3 quittent les contacts r2 et r3 et se
connectent aux contacts r4 et r5. Cela bloque le circuit de
la bobine électromagnétique E2 et empêche
tout mouvement ultérieur du chariot F2. Le contact r5
est relié via le fil 90 à la ligne d'abonné
et le contact r4 via le fil 91 au point de connexion S1. Outre
la liaison entre le point S et le contact r4, le point S1 est
relié par le fil 92 à la plaque t4, qui est en
liaison avec le point t3, figures 1 et 15, fixée sur
le chariot F1, lui-même a le fil 56 est connecté
à la ligne d'abonné, car il est à l'état
de repos, figure 1bis.
Mais dès que le chariot F1 se déplace par suite
de l'action du doigt de l'abonné sur le bouton V1, le
point t3 quitte la platine t4 et le point S1 donc, après
le premier pas du chariot F1, n'a plus de contact avec le la
ligne d'abonné jusqu'à ce qu'une telle connexion
soit établie par l'électroaimant E3 se reproduit.
Cette interruption temporaire entre le point S1 et la ligne
d'abonné est nécessaire car l'établissement
de la connexion des autres abonnés pourrait être
perturbé par le déplacement via les points de
contact sur la plaque d'ébonite.
Les mouvements de la roue de distribution r1 sont commandés
automatiquement depuis le poste d'abonné. Une autre roue
H2 prend appui sur son axe O3, sur la circonférence duquel
alternent secteurs conducteurs et isolés. Deux brosses
H4 et H5 coulissent sur ces secteurs. Le balai H5 est relié
à la ligne d'abonné par le fil 100, tandis que
l'autre H4 est relié par le fil 97 à la borne
négative de la batterie centrale. Avant le déplacement
de la roue r1, les balais H4 et H5 se tiennent au-dessus de
secteurs isolés.
Si la roue r1 se déplace d'une dent, les balais glissent
brièvement sur des secteurs conducteurs et s'arrêtent
enfin sur des secteurs isolés. Celui-ci ferme brièvement
le circuit suivant lors de la rotation : pôle négatif
de la pile centrale, fil 97, balai H4, roue H2, balai H5, fil
100, fil de ligne 43, fil 57, électroaimant U, fil 58,
ressort T4, plaquettes K4 et K5, ressort T7 et fil 48 à
la masse. Un courant négatif du centre de contrôle
alimente brièvement le relais U, dont l'armature u5 contacte
la vis u6 et ferme le circuit de l'électroaimant E6 :
pôle positif de la batterie d'abonné, fil 60, armature
u5, vis u6, levier i4, contact i7, fil 80, doigt n8, plaque
n9, fil 101, électro-aimant E6, fil 102, borne négative
batterie abonné.
L'électroaimant E6 est excité, son armature l7
s'attire et retombe après ouverture du circuit sous l'effet
de la rotation de H2 et supporté à nouveau par
le ressort l6. Lors du serrage de l'armature l7, le cliquet
du levier l4 passe sur une dent de la roue à rochet l5
et la fait tourner ainsi que la roue j6 lorsque l'armature l7
descend d'une longueur de dent, ce qui correspond à une
rotation de 90°. La roue j6 est divisée en quatre
secteurs "Pest", "Call", "Ring",
"Talk", dont le plus bas, commençant par "Rest",
peut être lu de l'extérieur dans la fenêtre
d5.
Cet affichage doit être compris comme suit : Tant que
le poste d'abonné ne fait aucun effort pour appeler un
autre abonné, mais également pendant le processus
de numérotation proprement dit, c'est-à-dire en
appuyant sur les touches V1 et V2, "Repos" est lu.
En appuyant sur le bouton V3, le premier courant négatif
envoyé par le panneau de commande ferme le circuit de
l'électroaimant E6, à la suite de quoi la roue
à rochet est tournée d'une dent et la roue j1
d'un quart de tour et nous lisons l'inscription "Appel
à travers l'ouverture d5. Mais ça continue.
Lorsque le bouton V3 est enfoncé à fond, les doigts
n3 et n2 entrent en contact avec les plaques n6 et n5. Un courant
négatif passe de la plaque n5, à travers le doigt
n2, les fils 84 et 50 dans la ligne d'abonné, à
travers le doigt n3 et la plaque n6 pour mettre à la
terre le pôle positif de la batterie d'abonné.
Le courant négatif sur la ligne d'abonné conduit
au relais R dans le central, dont la deuxième connexion
est reliée à la terre. À la suite de l'excitation
de R, l'armature q8 est pressée contre la vis u7, mais
sans aucune conséquence technique.
Mais le courant négatif passe par le fil 90, la plaque
r5, la saillie l3-l1, la plaque r4 et le fil 91 jusqu'au point
s1 et de là via le fil 45 de l'abonné Z jusqu'à
son contact Sz4 et le point Sz1. Via le point Sz1, il y a un
chemin de courant à travers la plaque tz4, le ressort
tz3, le chariot Fz1, le fil 56z, le fil conducteur 43z et le
relais Rz vers la masse. L'armature qz8 repose contre la vis
qz7, qui complète le circuit de l'électroaimant
Ez2. Celui-ci est excité et un déplacement d'une
dent s'ensuit après la coupure du circuit par le ressort
tz6 et les bobines de l'électroaimant Ez3 sont excitées
par la plaque fz3, le ressort tz6 et la vis qz6 du relais Rz.
Il résulte de tout ce qui précède que le
courant négatif émis par l'appelant X a des effets
sur l'appareil central du correspondant Z.
Son point Sz1 a été décalé
d'un pas vers le haut sans pouvoir établir de contact
avec une autre ligne, mais le courant négatif atteint
également le poste d'abonné via la ligne d'abonné
43z et provoque ici l'excitation du relais Uz. Ceci complète
le circuit de l'électroaimant Ez4, qui fait apparaître
le chiffre 1 dans la fenêtre dz2. Le premier pas du chariot
Fz2 ne produit pas de courant de commande comme décrit
sous X ci-dessus.
Le bouton V3 est relâché, le levier n1 revient
dans sa position de repos à l'aide du ressort n7. Un
courant positif final passe par la plaque n4 et le ressort n2.
Il traverse le relais R et complète ainsi le circuit
de l'électroaimant E3, qui à son tour, via le
levier 28, fait tourner la roue r1 d'une longueur de dent. En
plus de cet effet (nous en discuterons plus en détail
plus tard) le passage d'un courant positif à travers
la plaque r5, la saillie l3, la roue r1, la saillie l1, la plaque
r4, le fil 91, le point S1 et le relais Rz du participant Z
alimente l'électroaimant Ez3. Cet électroaimant
fait tourner la roue de distribution rz1 d'une dent. De cette
façon, comme précédemment avec le poste
d'abonné X, le circuit est ouvert via l'électroaimant
Ez2 et la connexion via la roue rz1, point Sz1, ligne d'abonné,
Le poste d'abonné Z provoque l'excitation de l'électroaimant
E5.
Poste d'abonné X, pour que le chiffre 1 y apparaisse
dans la fenêtre d4. Le circuit de l'électroaimant
Ez4 est ouvert. La roue rz1, en tournant, envoie un courant
négatif dans la ligne d'abonné Z (il s'agit d'un
courant de régulateur). Ce courant traversant l'électroaimant
Uz fait venir en contact son armature uz5 avec la vis u6 (sans
conséquence pour les organes du poste d'abonné
Z). Les deux courants négatifs du contrôleur, provoqués
par la roue r1 dans un cas et provoqués par la roue rz1
dans l'autre cas, se combinent dans le poste d'abonné
X et alimentent le relais U. En conséquence, le circuit
de l'électroaimant E6 se ferme.
La roue j1 tourne à nouveau de 90° et elle est maintenant
visible dans la fenêtre d5 "Ring".
Le participant X tourne maintenant son indicateur sur "Parler"
via le bouton M1, figure 12, ce qui correspond également
à un quart de tour ou une longueur de dent.
La position finale est effectuée par l'électroaimant
E6 comme expliqué ci-dessous.
Donc après avoir relâché le bouton V3 nous
avons les états suivants :
1. Le point de raccordement S1 de l'abonné X est bloqué
et ne peut plus être déplacé.
2. Il en va de même pour le point Sz1 du participant Z.
3. La roue r1 est sur ring, la roue rz1 sur "Call".
4.Les courants négatifs n'ont aucun effet sur les organes.
L'abonné X bénéficie du fait qu'aucun courant
négatif envoyé ne change quoi que ce soit dans
le mécanisme de numérotation dans cet état
et utilise le bouton d'appel sur le téléphone
principal pour appeler l'abonné Z.
En appuyant sur ce bouton, un potentiel négatif est envoyé
de la batterie d'abonné X dans la ligne vers le poste
d'abonné Z et le réveil CC Z sonne.
L'abonné Z appuie sur le bouton Vz3 après avoir
entendu le signal d'appel, ce qui provoque trois courants, comme
expliqué ci-dessus, d'abord un positif, puis un négatif
et enfin un nouveau positif. Le premier courant positif active
l'électro-aimant Ez3 qui fait tourner la roue rz1 de
90°. "Appel" apparaît dans la fenêtre
dz5 Le circuit de l'électroaimant Ez3 est interrompu.
Comme nous le savons, la roue rz1, en tournant, envoie un courant
de régulateur négatif, qui traverse le relais
électromagnétique Uz, fermant ainsi le circuit
de l'électroaimant Ez6 (le doigt nz8 touche la plaque
nz9). Cela a entraîné le passage à "Ring".
La roue r1 produit un certain nombre d'effets sur le troisième
tour, dont nous allons maintenant discuter.
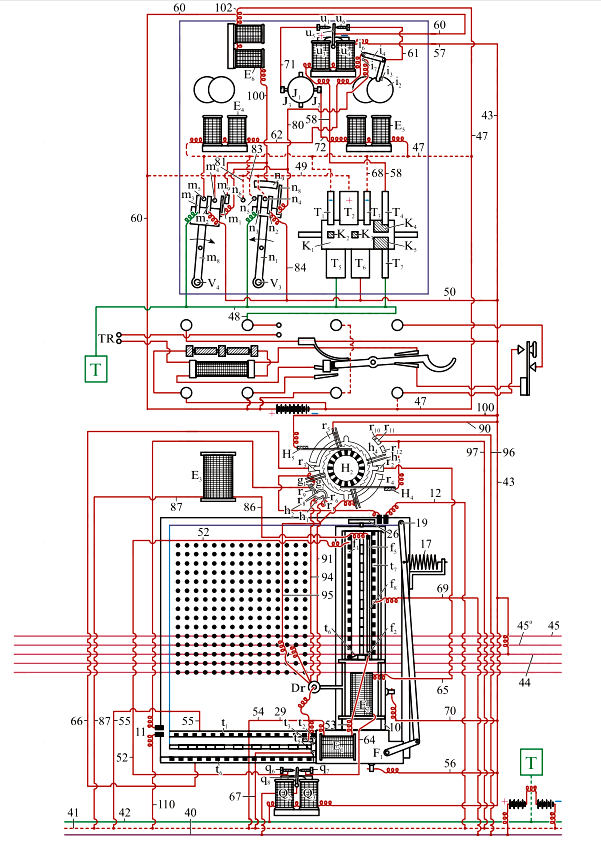
Lorsque la roue r1 tourne pour la troisième fois, les
contacts h2 et h4 touchent la plaque r6 avec une de leurs extrémités
et la plaque r11 avec les autres extrémités. La
plaque r6 est reliée par le fil 94 à un pôle
de l'électrovanne S2 du point S1 et la plaque r7 par
le fil 95 à l'autre pôle de la même électrovanne.
La plaque r10 est connectée via le fil 96 à la
borne positive de la batterie principale et la plaque r1 à
la borne négative de la batterie principale. Lorsque
la roue r1 tourne pour la troisième fois, le circuit
électrique de l'électrovanne est fermé
via les lames h2 et h4 d'un côté et h3 et h1 de
l'autre côté.
Lorsque le courant circule dans ses enroulements, il pousse
le point de connexion S1 (il possède un aimant permanent)
de la plaque inférieure CD (la plaque de communication)
vers la plaque supérieure AB (la plaque de conversation).
Incidemment, il convient également de noter que ce n'est
pas l'abonné X qui peut passer au niveau de conversation,
mais le basculement est déclenché par l'abonné
Z en appuyant sur le bouton Vz3. La principale raison de ce
circuit est la protection contre les écoutes clandestines
par d'autres participants.
Le deuxième courant négatif d'appuyer sur Vz3
n'a aucune signification.
Le troisième courant positif en appuyant sur Vz3 alimente
le relais Rz, le point S1 du participant X est toujours sur
la plaque de communication, une nouvelle rotation de la molette
rz1 provoque le basculement sur la plaque de conversation. Il
s'ensuit qu'après avoir relâché le bouton
Vz3, la communication aura lieu et aucun tiers ne peut y participer,
et en tournant rz1 l'inscription "Talk" apparaît.
Il faut également noter que le passage de "Pest"
à "Call" et "Ring" est si rapide
qu'on pourrait penser que l'inscription "Call" n'existerait
même pas. Cet état est maintenu jusqu'à
ce qu'un appelant le V4 touches (ou Vz4).
Le concurrent X appuie et relâche immédiatement
le bouton V4.
Lorsque la conversation est terminée, le correspondant
X appuie sur le bouton V4, ce que le correspondant Z doit maintenant
faire sera discuté plus tard. L'appui sur le bouton V4
enverra deux courants positifs. Lors de l'appui, le doigt m2
glisse sur m4 et le doigt m3 glisse sur m5.
Si le bouton est à nouveau relâché, la même
chose se reproduit. La figure 15 montre le levier m8 lorsque
le bouton est enfoncé.
Avant plus d'explications, il convient de noter que le doigt
m1, par lequel le circuit de l'électroaimant E6 est fermé,
entre en contact avec le contact m9 après le premier
passage des doigts m2 et m3 sur les plaques m4 et m5.
Plus tard.
Lorsque le bouton V4 est enfoncé, le premier courant
positif est envoyé du poste d'abonné au central
téléphonique ; un courant négatif découle
du central vers le poste d'abonné X, qui à ce
moment peut agir sur l'électroaimant E6 car à
ce moment le doigt m1 est en contact avec la plaque m9 ; troisièmement,
il y a à nouveau un courant positif du poste d'abonné
vers le poste central et quatrièmement, encore un courant
négatif du poste central vers le poste d'abonné
X, qui n'a actuellement aucun effet sur les appareils car le
doigt m1 est en contact avec le plaque m9 et le circuit de l'électroaimant
E6 entre le contact du doigt m1 et la plaque m9 est rompu.
Le premier courant positif provenant de l'appui sur le bouton
V4 par le participant X alimente le relais R, à travers
l'armature duquel le circuit de l'électroaimant E3 est
fermé. Cependant, une partie du courant circule également
vers l'abonné Z, où il excite le relais Rz, via
l'armature duquel le circuit de l'électroaimant Ez3 est
fermé. Les pignons r1 et rz1 tournent donc encore d'une
dent. Le résultat de cette rotation parallèle
est que les lames h2 et h4 touchent la pièce de contact
r9 avec l'extrémité h4 touchant tandis que la
bande h8 touche h3 la pièce de contact r8 avec son extrémité
h3 et la pièce de contact r12 avec son extrémité
h3. Le circuit de l'électrovanne Sx2,
comme celui de Sz2 est fermé via le premier courant dans
le sens opposé. Le point S1 (ainsi que le point Sz1)
reviennent respectivement à la plaque de contact inférieure
CD. Par les balais H4 et H5 de la roue H2, un courant négatif
reflue par la ligne d'abonné de l'abonné X et
également par la ligne d'abonné de l'abonné
Z ; et ce courant circule dans le poste d'abonné X à
travers le relais U, à travers l'armature duquel le circuit
de l'électroaimant E6 est fermé, (à ce
moment le doigt m1 est en contact avec la plaque m9), la roue
j1 fait un quart de tour et le mot "Peste" apparaît
dans la fenêtre d5. Le courant de commande négatif
ne provoque aucune réaction dans les organes restants
de l'appareil sur le poste d'abonné Z lors de la dernière
rotation de la roue rz1, c'est-à-dire qu'en traversant
le relais U, le circuit de l'électroaimant Ez6 est ouvert
(abonné Z n'appuie à ce moment ni sur le bouton
Vz3 ni sur Vz4).
Le deuxième courant positif (causé à travers
les connexions des doigts m3 et m2 aux plaques m5 et m4 lorsque
ces doigts glissent vers l'arrière sous la force du ressort
m7. Cela provoque (à expliquer) le retour des armatures
des participants X et Z à leur point de départ
dans le centre de contrôle. Le courant passe par les relais
R1 et Rz1, de sorte que les circuits des électroaimants
E3 et Ez3 sont fermés via leurs armatures. Les roues
r1 et rz1 tournent d'une dent. À la suite de ce nouveau
mouvement , les extrémités deviennent h2 et h1
des bandes h2 h4 et h1 h3 sans s'arrêter sur les contacts
g1 et g2, fermant ainsi le circuit des électroaimants
11 et 12 pendant ce temps par les extrémités opposées
h4 et h3 balayant la plaque r12, le relié au pôle
positif de la batterie par le fil 96. L'électroaimant
11 est relié par le fil 110 au pôle négatif
de la batterie et l'électroaimant 12 par le fil 111 au
même pôle.
Il s'ensuit que les courants traversant ces deux électroaimants
(lorsque les lames sont écartées des contacts
g1 et g2), comme expliqué au début en référence
aux figures sont parallèles et libèrent les cliquets
3 et 5 pour permettre aux chariots de revenir à leur
position de départ positions par la force des ressorts
16 et 17. Les deux appareils du centre de contrôle sont
donc au repos et les courants négatifs (envoyés
en même temps par les balais H4 et H5 à la roue
H2) n'ont aucun effet sur le poste d'abonné, le circuit
de l'électroaimant est ouvert par le doigt m1 .
Pour mettre complètement le dispositif d'abonné
dans l'état de repos, il suffit d'appuyer sur le bouton
V5. Le chiffre 0 est alors visible dans les fenêtres d1,
d2, d3 et d4. Seul le participant appelé, dans notre
cas le participant Z, doit appuyer à nouveau sur le bouton
M1 au bout de l'axe de la roue jz1, pour que le mot «
peste » apparaisse dans la fenêtre dz5.
Du fait des opérations précédentes, les
chariots F1 et F2 sont revenus à leur position de départ,
mais en fait les roues rx1 et rz1 n'ont pas besoin de revenir
à leur position de départ, car jusqu'à
la position de parole elles ont fait un quart de tour (par 5
des 20 dents) et si lorsque les chariots F1 et F2 sont revenus
dans leur position de départ, la saillie l l2 de la roue
r1 rentre
Le contact avec les plaques r2 et r3, fait dénué
de sens car les quatre quadrants de la roue r1 sont chacun à
usage unique, c'est-à-dire qu'ils sont identiques.
Lors de l'action suivante, ce ne sont plus les bandes h2, h4
et h1, h3 qui entrent en contact, mais les bandes h3, h5 et
h6, h7 ; ce n'est pas non plus la projection l3, l1 qui est
utilisée, mais la projection l2, l.
Résumé:
Cet équipement est généralement considéré
comme la meilleure réalisation des inventions dans le
domaine de la technologie de commutation automatisée
de l'époque .
L'abonné souhaitant communiquer avec un autre abonné
appuie sur la touche V1 et la maintient enfoncée jusqu'à
ce que le compteur de fraction (la fraction de chaque abonné
est enregistrée dans une liste) apparaisse dans les fenêtres
d1 et d2. Il appuie ensuite sur le bouton V2 et le maintient
enfoncé jusqu'à ce que le dénominateur
de la fraction apparaisse dans les fenêtres d3 et d4.
Après cela, le bouton V3 est enfoncé, en veillant
à ce que l'inscription «Ring» apparaisse
dans la fenêtre d5. Si l'abonné appuie ensuite
sur sa touche d'appel sur le téléphone Ader, l'abonné
appelé sonnera et l'inscription "Talk" apparaîtra
comme signe que l'abonné appelé est prêt
à lui parler communiquer. Lorsque la conversation est
terminée, l'appelant appuie sur le bouton V4.
En pratique, toutes les touches sauf la touche M1 pourraient
porter des inscriptions, ainsi la touche V1 pourrait porter
l'inscription « Compteur », la touche V2 l'inscription
« Dénominateur », la touche V3 l'inscription
« Appel », la touche V4 l'inscription « Fin
of Conversation" et le bouton V5 l'inscription "Idle".
Dès que le réveil du correspondant sonne, il appuie
sur sa touche V3.
Si "Talk" apparaît dans la fenêtre d5
de l'appelant, la conversation peut commencer. Lorsque la conversation
est terminée, l'appelé tourne son bouton M1 comme
décrit précédemment.
Au début de cette description il a été
dit que dans notre exemple, pour une meilleure compréhension,
les chariots F1 et F2 sont perpendiculaires l'une à l'autre.
Mais en réalité, les chariots F1 et F2 sont inclinés
l'un par rapport à l'autre pour gagner de la place, voir
Fig. Normalement, cependant, les wagons sont remplacés
par les barres F11 et F21. Ces poutres sont montées mobiles
sur les axes O1 et O2 et les roues à rochet G1 et G2
sont solidaires de l'axe O1 et du
Roues à rochet G3 et G4 montées sur l'axe O2.
Les dents des engrenages G1 et G3 sont inclinées dans
le même sens, les dents des engrenages G2 et G4 dans le
sens opposé. Le faisceau F11 est déplacé
par la roue G2 via le cliquet G5 de telle sorte que lorsque
l'arbre O1 tourne dans le sens de la flèche, le faisceau
est entraîné.
La rotation de l'arbre O1 est effectuée par la seconde
roue à rochet G1 de la manière suivante :
Lorsqu'un courant traverse l'électroaimant E1, son armature
c1, reliée par c2 au levier c3, monté libre en
rotation sur l'axe O1, s'attire. Sur ce levier se trouve le
cliquet c4, qui presse le ressort c5 contre les dents de la
roue G1. Si l'armature c1 de l'électroaimant E1 est attirée,
le
Le cliquet est serré et glisse sur une dent de la roue
à rochet G1. La course du cliquet c4 est réglée
à l'aide de la vis e7 qui sert de butée pour limiter
la course du levier c3. Dès que le courant est interrompu,
le ressort spiral c6 ramène l'armature c1 et le cliquet
c4 fait tourner la roue G1 d'une longueur de dent et avec elle
la poutre F11. Ainsi, à chaque passage de courant dans
l'électroaimant E1, la barrette est déplacée
autour d'une rangée de contacts 1.
Les développements ultérieurs
de Frejdenberg sont documentés par les brevets 562,064,
556,007 du 10 mars 1896 et 587,435 du 3
août 1897.
En 1896, il met également au point un sélecteur
de machine avec un compteur d'impulsions intégré
et propose l'utilisation d'un sélecteur de groupe pour
augmenter la capacité des échanges.
La maquette du central téléphonique de ce dernier
modèle fut fabriquée à Paris en 1898.
Cependant, comme Frejdenberg se voyait toujours refuser le soutien
nécessaire dans la Russie tsariste et que les exigences
techniques de production n'étaient pas satisfaites dans
son pays natal, il a été ramené en Angleterre.
Vers 1900, il fonde à Londres la société
par actions "Freudenberg Automatic
Telephone Syndicate Ltd.".
Cependant, il a vite dû se rendre compte qu'il ne pouvait
pas gagner la concurrence avec les grandes entreprises établies
telles que Bell Company ou Siemens AG. Frejdenberg est retourné
en Russie et y a été impliqué pendant une
courte période dans le développement de la technologie
téléphonique domestique.
sommaire
Mikhaïl Freudenberg alla beaucoup plus loin dans
lélaboration des principes du central téléphonique.
Il essayait de trouver une solution qui lui permettrait de se
passer de sélecteurs volumineux à plusieurs contacts.
Il faillait aussi que ce central soit plus rentable quune
station téléphonique manuelle de même capacité.
Les sélecteurs coûtaient chers, augmentant le coût
total et diminuant ainsi la compétitivité.
Cest à ce moment-là que le travail des deux
inventeurs prit fin.
Berditchevski-Apostoloff rentra à Odessa, tandis que Freidenberg
vécut longtemps en Royaume-Uni, cherchant toujours lappui
des entrepreneurs étrangers.
Pendant ce travail collectif, les deux inventeurs comprirent
que pour obtenir le succès, il faut arriver à
une capacité plus grande du central téléphonique,
au moins 10 mille numéros. Chacun deux continua
à chercher la solution.
Les essais eurent succès mais la société
anonyme créée pour exploiter linvention
ne put pas rivaliser avec les compagnies qui exploitaient les
stations téléphoniques manuelles.Après
son retour en Russie, Freidenberg continua de soccuper
de la téléphonique.
Sa dernière invention fut «le moyen dinsertion
des abonnés au réseau téléphonique
avec laide de distributeurs de groupe, liés à
la station centrale avec deux fils». Cest ainsi
que Freidenberg essayait de rendre lutilisation de la
ligne dabonné plus efficace.
1896 - Berditchevski-Apostoloff
créa un système automatique original à
10 mille numéros.
Dans ce système, il y eut déjà les ancêtres
du cadran «manipulateur de numéros»,
relais et sélecteurs.
Ainsi, le système utilisait déjà les principes
des centraux téléphoniques modernes.
Deux niveaux de sélecteurs à 100 contacts furent
introduits. La commutation dun contact dun sélecteur
avec lautre contact de lautre sélecteur permettait
de créer une chaîne de communication avec chaque
abonné appartenant à 10 mille personnes enregistrées
comme abonnés.
Le système avait aussi un combineur et un relais linéaire
pour recevoir les impulsions du cadran.
|