Le
système R6 Brevet
FR-570941
(en pdf)
Dans les années 1920, ladministration
française souhaitait en matière de télécommunications,
ne pas dépendre uniquement de techniques étrangères
; des travaux furent donc entrepris dans des laboratoires français
sur différents types déquipements de commutation.
En septembre 1928, un premier central automatique de conception
française entrait en fonctionnement expérimental à
Troyes, avec une capacité de 2 000 abonnés :
il sagissait dun nouveau système de commutation,
qui fut désigné par la suite sous le sigle « R6
» (Rotary n°6).
Le R6 a connu un développement important en province : le premier
central de Troyes, mis en service en 1928, a fonctionné jusquen
1964 ; vinrent ensuite, en 1929, ceux de Nîmes et dEpinal
qui ont été en service respectivement jusquen
1971 et 1972.
En 1974, 500 000 lignes R 6 étaient encore en fonctionnement.
Le dernier autocommutateur a e´te´ arre^te´ en 1984
a` Montrouge.
A partir de 1933, une nouvelle génération de
R6 avec enregistreurs faisait son apparition et permettaient
déquiper les grandes villes.
Ainsi, pour automatiser limportante agglomération de
Lille-Tourcoing-Roubaix, cest le système R6, perfectionné
par des enregistreurs à 5 ou 6 chiffres, qui fut retenu en
1930.
Plusieurs centraux automatiques de ce type furent mis en service à
partir de 1933 dans la zone urbaine et suburbaine de lagglomération
Lilloise.
Mais, comme pour Paris, les restrictions budgétaires, qui intervinrent
à partir de 1934, ne permirent pas de réaliser, comme
prévu, le programme dautomatisation des villes de province.
Le troisième plan de léquipement téléphonique
français concernait les zones à faible densité
de population, les zones rurales.
Quelles solutions convenait-il dadopter, afin de desservir au
mieux ces populations rurales ?
Lorsque le téléphone prit naissance dans les campagnes
françaises, on se contenta dinstaller, dans le bureau
de poste de chaque commune, un commutateur « manuel »
auquel aboutissaient, sur « annonciateurs », les lignes
des abonnés locaux.
Un ou plusieurs « circuits locaux » le reliaient à
un bureau de poste plus important et il en était ainsi, de
proche en proche, jusquà la sous-préfecture ou
jusquà une localité assez importante pour être
dotée dun central téléphonique disposant
de circuits interurbains.
Cette exploitation des « tableaux manuels » par les employés
de la poste était loin de donner une grande qualité
de service.
Les procédés automatiques apparurent alors assez vite
en mesure dapporter des solutions à ce problème.
Puisque les communications locales bénéficiaient de
lautomatisme, les dépenses entraînées par
la transformation des postes dabonnés, le remaniement
ou la création des lignes et circuits nécessaires, napparurent
justifiées que dans les zones à densité téléphoniques
suffisante, telles que les banlieues de grandes villes.
Restait à trouver une solution spécifique pour les campagnes
où le téléphone, comme la population, était
alors très dispersé ; sur les 25 000 réseaux
locaux existant, plus de la moitié comportaient moins de cinq
abonnés.
Le projet déquipement, qui fut proposé par ladministration
des PTT, prévoyait de remplacer les petits commutateurs manuels
des bureaux de poste ou « centres locaux » par de simples
armoires contenant chacune un commutateur « semi
automatique» robuste et dentretien facile, pour concentrer
lexploitation manuelle dans un « centre de groupement
» disposant dun effectif spécialisé et assurant
la permanence du service.
Cest le système, appelé couramment « automatique
rural », qui fut adopté en 1935.
Léquipement des réseaux ruraux fut entrepris dans
toute la France au début de lannée 1936.
Dénommé « automatique
rural », bien quil soit en réalité
semi automatique, le système répondait
aux espoirs mis en lui, tant que les zones équipées
restaient vraiment rurales, cest à dire à faible
densité téléphonique et desservies par des lignes
aériennes et tant que lexploitation automatique interurbaine
nétait pas introduite au niveau du centre de groupement.
Mais, à partir du moment où un centre de groupement
était doté dun autocommutateur établissant
des communications interurbaines et où la densité et
le trafic téléphonique atteignait un certain volume,
le système rural nétait plus justifié.
Quand il devint nécessaire de passer du service semi-automatique
au service automatique intégral, il fallut donc reprendre entièrement
la constitution des réseaux ruraux et diminuer fortement le
nombre de points de commutation.
Certes, la généralisation de lautomatique rural
a rendu moins urgente lautomatisation des campagnes, mais, en
revanche, elle a retardé notablement lautomatisation
intégrale du territoire français
Sommaire
1 - Le R6 pour équiper
les villes de province de moyenne importance.
2 - SRCT, L43 et le R6 pour les zones rurales
"l'automatique rural".
3 - R6 L'Organisation, le Fonctionnement ...
Installation ave les centres manuels ...Détails
Nous avons déjà pris connaissane dans
notre récit de la téléphonie francaise, que le
18 mai 1923 l'Ingénieur,
Monsieur Barnay, dépose le brevet FR-570941(en
pdf) pour le système ROTATIF R6, brevet de commutation
automatique qui est délivrée 24 janvier 1924.
Ce système français
de type pas à pas est un hybride
qui s'inspire à la fois des systèmes Rotary
et Strowger, Il est de
surcroît simplifié à l'extrême pour être
le moins coûteux possible.
Le 9 avril 1924,
la Compagnie des Téléphones Thomson-Houston
rachète alors le brevet de ce système à son concepteur
M. Barnay.
Le système R6 va être, développé
par l'Ingénieur français Fernand Gohorel de la
Compagnie des Téléphones Thomson-Houston et ses équipes.
1928 Les centraux
automatiques de province déjà en service :
Est compté les premiers systèmes Strowger , la
cas de Fontaineblean et le
cas de Dieppe en Agf500
Paris est en cours de déploiement avec du Rotary.
Angers, Nantes, Marseille sont aussi en Rotary.
1 - 1927
Le R6 pour équiper les villes de province de moyenne importance.
Le premier commutateur R6 est d'abord mis en service en fin
1927 en Sarre, à Neunkirchen , en Allemagne
aujourd'hui, car petit rappel, cette région partiellement
amputée par Louis XIV qui y construisit Sarrelouis, est transformée
en départements français (Sarre et Mont-Tonnerre)
sous la Révolution et lEmpire. Le territoire sarrois
revint tout entier dans le giron germanique en 1815. Après
la guerre de 1914-18 suite
aux dispositions du traité de Versailles, le territoire de
la Sarre fut, de 1920 à 1935, séparé de lAllemagne
et placé sous la tutelle de la Société des
Nations, la France disposant de la propriété de ses
houillères en compensation des destructions de son propre
bassin minier pendant la guerre.
Un second commutateur R6 est mis
en construction à partir du 21 novembre 1927. puis
mis en service en Tunisie (pays de protectorat français),
à Tunis-Hôtel-des-postes le dimanche 29 juillet 1928.
(livraison initiale de 500 lignes en automatique + 4000 lignes en
semi-automatique).
Larrivée dITT est marquée par le rachat
des Téléphones Thomson-Houston, le 14 avril 1926.
Soulignons que ce système de conception française
a tout de même été produit par une société
devenue entre-temps une filiale française de l'américain
ITT le 14 avril 1926 pour la
somme de 140 millions de francs, soit 90 millions d'euros (valeur
2015), via un rachat total du capital autorisé par l'assemblée
générale des actionnaires à cette date ; opération
orchestrée par le Colonel Behn alors patron de
l'ITT...
1-2 1928,
le R6
sans enregistreur, à contrôle direct (comme le
Strowger) , dont le nom officiel est ROTATIF 1926, car mis au point
en 1926, encore rencontré sous le nom semi abrégé
ROTATIF 6
sera implanté dans les villes moyennes de province dès
la fin de 1928
Ce système français de type pas à pas étant
un hybride; s'inspire à la fois des systèmes Rotary
et Strowger. Il est de surcroît simplifié à
l'extrême pour être le moins coûteux possible.
La capacité des Commutateurs R6 s'étend jusqu'à
10.000 lignes et convient bien pour les capacités de 4.000
- 5.000 lignes.
|
|
Chaque
Commutateur de la famille R6 est pourvu de chercheurs-présélecteurs
à deux étages (comme pour les STROWGER les plus
modernes), qui utilisent chacun des sélecteurs semi circulaires
à 25 points de sortie.
Un Commutateur R6 est équipé dOrienteurs
à 11 positions (1 position de repos et 10 autres
positions pour les 10 chiffres du cadran) : il sagit en
fait dun nouveau groupe dorganes de contrôle
commun à plusieurs Sélecteurs à la fois
qui permettent de dissocier clairement la fonction de réception
des chiffres composés par l'abonné de la fonction
de recherche et de connexion de la liaison. Chaque étage
de Sélecteurs est équipé de son groupe
dOrienteurs. Chaque Orienteur, qui fonctionne en mode
pas à pas, nest en fait utilisé que pendant
la réception des chiffres numérotés au
cadran du téléphone de labonné, puis
est libéré pour aller traiter une autre communication
à établir.
Dans le système R6, la notion de point de sélection
ne revêt plus la même importance, l'architecture
étant différente des autres types de Commutateurs
: en effet, lastuce consiste à remplacer les sélecteurs
semi cylindriques ou à plateau des systèmes Strowger
et Rotary qui à la fois tournent horizontalement et accomplissent
aussi des mouvements ascensionnels par de simples commutateurs
rotatifs semi circulaires à 51 plots, dédoublés
par une astuce de commutation à relais, soit un élément
de sélection uniquement rotatif à 102 directions.
Ainsi, dans le système ROTATIF 1926, les sélecteurs
et les orienteurs, qui sont montés à lhorizontale
suivant leur axe, naccomplissent plus quun seul
mouvement : celui de tourner de manière saccadée,
dans le même sens, par des jeux d'engrenages, d'électroaimants
et de cliquets anti-retour, doù un prix de revient
moindre que tous les autres systèmes à organes
tournants conçus jusques à présent.
Quelques Brevets de Fernand Gohorel US1907062,
US2433359,
US2423098
, US2426196 , US2642499
|
Au carrefour des Chercheurs d'entrée, des Orienteurs
et des Sélecteurs qui constituent le Réseau de ConneXion
est situé l'étage du Groupe des Relais d'Appel. Le
Groupe des Relais d'Appel constitue "l'intelligence"
du système R6. Ses tâches sont multiples :
- Alimenter le poste du demandeur,
- Maintenir les Sélecteurs en position de travail,
- Transmettre aux Orienteurs et aux Sélecteurs les impulsions
provenant du Cadran d'Appel du demandeur.
- Alimenter le poste du demandé, lorsqu'une communication est
reçue et établie par ce commutateur.
- En cas d'occupation de l'abonné demandé, renvoyer
à l'abonné demandeur la tonalité d'occupation
et libérer tous les organes mobilisés pour la demande
n'ayant pas abouti.
- En cas de faux numéro, de fausse manuvre ou d'encombrement,
renvoyer à l'abonné demandeur la tonalité de
faux appel et libérer tous les organes mobilisés pour
la demande n'ayant pas abouti.
- Envoyer le courant d'appel dans la sonnerie du poste de l'abonné
demandé.
En 1929, la Commission Spéciale Technique de l'administration
se prononça nettement pour le déploiement massif du
système R6 dans les villes moyennes de province.
26 Commutateurs ROTATIF 1926 à contrôle
direct sont installés en France, uniquement en province.
- En France, le premier Commutateur R6 (expérimental) est commandé
en début 1928, mis en service le 14 avril 1928 dans
le réseau téléphonique de Troyes, mis
au point par M. l'Ingénieur des PTT Gaston Letellier (Troyes
- Jargondis, Hôtel des Postes). D'une capacité de 2.100
lignes, il assurera son service jusques au 18 juin 1964.
- Les 2 premiers Commutateurs R6 de présérie sont mis
au concours le 17 janvier 1928. Ils sont mis en service courant 1929
: Nîmes le 23 mars 1929 ; Épinal
le 31 octobre 1929.
- Le marché pour les Commutateurs de série est signé
par l'Administration en Juillet 1929.
- À noter qu'un Commutateur R6 de 500 lignes sera mis en construction
à partir du 10 mars 1931 par la CTTH,
puis mis en service le 15 avril 1931 à l'occasion de l'Exposition
Coloniale 1931 qui s'est tenue à Paris entre le 6 mai et
le 15 novembre 1931.
- Le Commutateur R6 Sans Enregistreur le plus récent est mis
en service le 18 février 1939 à Besançon.
- Au cours de la seconde guerre mondiale, le Commutateur R6 à
Contrôle Direct de Brest (Brest I), mis en service le
17 octobre 1931, est détruit sous les bombardements
alliés en 1944.
- Au début de la seconde guerre mondiale, le Commutateur R6
à Contrôle Direct de Caen (Caen I), mis en service
le 24 juin 1933, est mis à l'arrêt en Juin 1940 par une
équipe très soudée d'agents des PTT lors de la
débâcle et véritablement camouflé derrière
un mur édifié en catastrophe dans le central en toute
discrétion. Ainsi, le camouflage ayant été si
bien réussi que l'occupant allemand ne découvrit jamais
ce Commutateur automatique, si bien qu'il ne reprendra du service
que lorsqu'il sera dés-emmuré en Août 1944 à
la libération de cette ville et poursuivit son service jusques
en Novembre 1980.
1932 Commutateur à Contrôle Direct (Sans Enregistreur)
de Blois.
- Les Commutateurs R6 Sans Enregistreur autorisent une Numérotation
locale à 6 chiffres. Certains ont assuré leur service
au delà de l'année 1973. En revanche, leur structure
ne leur permet pas de passer à la Numérotation à
8 chiffres prévue le 25 octobre 1985. Ils ont tous été
mis hors service avant cette date.
- Le Commutateur R6 Sans Enregistreur qui est le dernier à
être mis hors service en France, est Reims-Céres
I (CH503 / HM21) le 29 février 1984. (mis en service
depuis le 14 juin 1931, soit environ 53 années.) Nota : Reims-Cérès
I a été modernisé en système R6 à
Enregistreurs dans les années 1950.
Sommaire
1-2 Les Commutateurs
R6 avec enregistreurs pour les villes
de province de plus grande importance :
Ce sont des Commutateurs à contrôle direct dont les
Orienteurs du premier étage de sélecteurs ont été
remplacés par des Enregistreurs simplifiés de
numéros qui commandent en différé, après
analyses des préfixes par blocs de chiffres, les Orienteurs
des étages de Sélecteurs suivants pour acheminer de
manière plus souple et plus optimale les communications en
son propre sein pour les abonnés locaux, ou vers les centres
de transit pour les abonnés plus éloignés.
1930
Le R6 avec enregistreurs
:
Les Cadrans Téléphoniques des abonnés
ne constituent plus lorgane de commande direct du commutateur
(comme le Strowger), car le Commutateur est équipé
dun étage spécifique constitué
par des Enregistreurs qui sont dans un premier temps chargés
de mémoriser les numéros de téléphone
composés aux cadrans par les abonnés, puis en fonction
des numéros demandés vont commander eux-mêmes
(ou passer par des Traducteurs intermédiaires) à
tour de rôle les sélecteurs nécessaires à
létablissement des communications : le routage.
R6 Bordeaux 1937
En comparaison avec un système à contrôle
direct, un système à contrôle indirect
est sensiblement plus complexe à concevoir et onéreux
à fabriquer, mais le fait de mettre désormais en mémoire,
dans un Enregistreur, le numéro d'abonné demandé
par un appelant permet d'éliminer l'inconvénient majeur
des systèmes à contrôle direct. En effet, désormais,
une fois le numéro de téléphone de l'abonné
mémorisé par le Commutateur, le Commutateur peut ensuite
prendre tout son temps pour chercher et trouver un équipement
de libre à chaque niveau de sélection.
Il n'y a plus d'appels perdus grâce à l'ajout d'un
étage d'Enregistreurs !
De surcroît, lajout de ces organes spécialisés
à la réception de la numérotation provenant
du cadran des abonnés permet un comportement plus réactif
en fonctionnement et dans de plus larges tolérances et ainsi
daccepter la numérotation provenant de Cadrans Téléphoniques
dont les réglages ne seraient pas idéaux : les enregistreurs
sont des organes légers et adaptés à la réception
rapide des numéros de téléphones, avec peu
d'inertie mécanique ; plus légers que le reste des
équipements tels que les Sélecteurs de dimensions,
de poids et d'inertie plus élevés...
Létage de lEnregistreur (ou de lEnregistreur-Traducteur)
permet dune part de recalibrer la numérotation provenant
des cadrans, puis de la délivrer en léger différé
aux différents étages de sélecteurs à
la cadence idéale et fiabilise ainsi le fonctionnement global
du Ccommutateur.
Chaque sélecteur nécessaire effectue alors
en pas à pas une rotation angulaire saccadée (et éventuellement
un mouvement ascensionnel saccadé suivant les systèmes
: cas du Strowger) du même nombre de sauts que celui mémorisé
dans chaque Enregistreur, jusqu'à atteindre la bonne position.
Une fois que tous les sélecteurs auront été
commandés par les Enregistreurs et que l'abonné demandé
aura éventuellement décroché son téléphone,
la communication sera établie et dûment taxée.
L'ensemble des Sélecteurs ainsi utilisés restent mobilisés
durant toute la durée de la conversation, et ne peuvent plus
être utilisés par d'autres abonnés. Cette immobilisation
des ressources pose problème : c'est ici la grande limitation
de la capacité d'écoulement des commutateurs rotatifs
de tous les types, d'autant qu'ils ne peuvent pas être miniaturisés...
Dans tout système équipé dEnregistreurs
et de Traducteurs, ou dEnregistreurs tenant lieu également
de Traducteurs, lOrgane de Commande du Commutateur est bel
et bien constitué par lensemble des Enregistreurs et
des Traducteurs qui le composent.
Obtention de la tonalité dinvitation
à numéroter : rôle des Chercheurs dans les
systèmes à organes tournants.
Alors que nous sommes tous habitués depuis plusieurs décennies
à obtenir la tonalité dinvitation à numéroter
dès le décrochage du combiné téléphonique,
il nen a pas toujours été ainsi.
En effet, dans les Commutateurs téléphoniques à
organes tournants (tous systèmes confondus), lobtention
immédiate de la tonalité au décrochage nest
ni immédiate, ni garantie
Lorsquun abonné
raccordé à un commutateur rotatif va décrocher
son combiné, la ligne téléphonique se ferme,
le courant électrique est établi et son impédance
diminue.
Dans nimporte quel type de Commutateurs, il ny a jamais
un détecteur de prise de ligne affecté en permanence
à chaque ligne téléphonique. En revanche, il
y a un certain nombre de chercheurs primaires (ou de présélecteurs)
qui analysent successivement à intervalle régulier
le parc de lignes téléphoniques raccordés.
Alors que dans les systèmes ultérieurs, la position
de chaque ligne est analysée à intervalle régulier
toutes les quelques millisecondes voire microsecondes, dans les
systèmes à organes tournants, il y a des groupes de
chercheurs primaires qui sont des organes rotatifs qui vont, eux
aussi, analyser les lignes téléphoniques successivement
à intervalle régulier, en balayant 24 heures sur 24
les positions de tous les abonnés, mais à un vitesse
très lente.
Ainsi, il nest pas rare de devoir attendre plusieurs secondes
quun chercheur primaire sarrête sur labonné
qui a décroché son téléphone, pour que
le chercheur simmobilise sur cette position en ayant détecté
électriquement le décrochage de labonné
considéré.
Ensuite, le chercheur secondaire, qui est associé à
son chercheur primaire doit lui aussi trouver, en tournant très
lentement, une position daccès à un enregistreur
libre.
Ce nest que lorsquun chercheur primaire et un chercheur
secondaire croisent dune part la ligne décrochée
de labonné et dautre part un enregistreur libre
du commutateur téléphonique, que la tonalité
dinvitation à numéroter au cadran téléphonique
est alors envoyée sur le poste téléphonique
de labonné.
De surcroît, dans les zones à forte densité
dabonnés et pendant les heures de pointe (heures de
bureau et début de soirées) le nombre de chercheurs
disponibles par groupe dabonnés et par groupe denregistreurs
se révèle notoirement insuffisant, et il nest
alors pas rare de ne pas pouvoir obtenir de tonalité : le
téléphone de labonné, bien que sous tension,
reste muet...
Ainsi depuis plus de
vingt ans, lorsquun tel événement se produit,
dailleurs très rarement, il sagit soit dun
dérangement de la ligne téléphonique considérée,
soit dune panne sérieuse dans tout ou partie du commutateur
de rattachement. Mais à lépoque des centres
téléphoniques à organes tournants, ceci était
la norme.
Le Risque de surcharge des commutateurs à
organes tournants :
Dans un Commutateur à organes tournants, le risque de panne
par surcharge exceptionnelle momentanée qui se produirait
si presque tous les abonnés décrochaient leur téléphone
en même temps est à peu près nul. En effet,
si tel était le cas, la quasi totalité des abonnés
se retrouverait avec une ligne téléphonique inerte
; excepté quelques rares privilégiés qui auraient
eu la chance par ce "tirage au sort" de recevoir la tonalité
d'invitation à numéroter...
Mais le danger réel est tout autre : en cas de surcharge
du Commutateur durant des heures entières sans discontinuer,
et aux limites absolues de leur capacité d'établissement
et d'écoulement des communications, les organes tournants
tournent alors sans arrêt si bien qu'ils finissent au bout
de plusieurs heures par s'échauffer par effet de frottement
mécanique...
Si un délestage d'urgence (un arrêt total ou partiel
du Commutateur, entraînant la coupure des abonnés)
n'est à ce moment là pas décidé par
l'équipe de commutants présente sur place dans la
salle du commutateur, le système peut en arriver à
un point où tout le Commutateur devient si brûlant
qu'il finisse par prendre feu, et être détruit en totalité,
y compris le bâtiment qui l'héberge !
Ceci fut notamment le cas du Commutateur L43
de Nancy-Stanislas II, mis en service le 7 juillet 1951, qui, saturé
en permanence, a brûlé quelques mois seulement après
sa mise en service... Les mauvaises langues parlaient de matériel
flambant neuf...
1929
- Un marché expérimental destiné à automatiser
l'agglomération Lille-Roubaix-Tourcoing est ouvert en Novembre
1929.
Le marché pour les Commutateurs de série est signé
par l'Administration en Juillet 1929..
1930 le R6 N1 avec enregistreurs et
traducteurs à relais, Normalisé type 1
: enregistreurs et traducteurs à la fois, il est mis en conception
pour les villes de province de plus grande importance dès
1930, Ce système est aussi un hybride qui s'inspire
des systèmes Rotary et Strowger, mais il est simplifié
et moins coûteux.
Bien quétant plus coûteux qu'un R6 à contrôle
direct, il permet une meilleure souplesse dans l'acheminement des
communications, tout en restant moins performant que les ROTARY
7A, 7A1 et 7A2. C'est un commutateur à contrôle direct
dont les Orienteurs du premier étage de sélecteurs
ont été remplacés par des enregistreurs de
numéros qui commandent en différé, après
analyses des préfixes, les orienteurs des étages de
sélecteurs suivants pour acheminer de manière plus
souple et plus optimale les communications en son propre sein pour
les abonnés locaux, ou vers les centres de transit pour les
abonnés plus éloignés.
21 Commutateurs ROTATIF 1926 Avec Enregistreurs
sont installés en France, uniquement en province.
- L'agglomération Lille-Roubaix-Tourcoing est équipée
en premier de ce système, avec son premier Commutateur automatique
Lille-Boitelle I, le 12 novembre 1932.
- Un marché destiné à automatiser en Commutateurs
R6 Avec Enregistreurs le reste de la Côte d'Azur est signé
le 10 juillet 1934 entre l'Administration et la Compagnie des Téléphones
Thomson-Houston. Les mises en service suivront entre 1936 et le
10 décembre 1938.
- Le déploiement du système ROTATIF 1926 Avec Enregistreur
de numéros est totalement interrompu en province dès
la déclaration de guerre. Il ne reprendra qu'en 1945. Il
se poursuivra jusqu'à larrivée de la version
modernisée en Mai 1949.
Il sera mis en service à Rouen, en Mai 1949,
et 35 autres Commutateurs R6 N1 seront installés
en France.
Le Commutateur R6 Sans Enregistreur le plus récent
sera mis en service le 21 décembre 1938 à Guérande
Enregistreur-Traducteur , R6 de Rouen, Fabricant CGCT.

Fontainebleau R6 N1 1942
2 - Le R6 pour les zones rurales
"l'automatique rural".
1943 le L43
De son nom complet LESIGNE 43, c'est un Commutateur, mis en
conception par la Compagnie Industrielle des
Téléphones, sous la responsabilité de
M. l'Ingénieur Henri Louis Lesigne à partir de l'année
1943, utilisant le même matériel que le R6 N1
mais adopte un principe de sélection différent, sans
dispositif Orienteur.
En effet, dans ce système, les sélecteurs sont actionnés
directement par les enregistreurs, à laide dun
réseau de commande par fils distincts des fils véhiculant
les conversations téléphoniques, ce qui permet d'économiser
des baies d'équipements et de faire théoriquement baisser
le coût des Commutateurs.
Il est alors affirmé jusque dans la presse que le prix de revient
du système L43 serait deux fois moins cher que celui du système
ROTARY 7A1 américain, et permettrait de se délivrer
de la mainmise U.S. en matière de télécommunications.
La réalité sera tout autre.
Bien que nayant pas été massivement déployé,
ce modèle de Commutateur a toutefois permis une mise en concurrence
des différents constructeurs et amènera à la
mise au point ultérieure dune nouvelle version améliorée
des commutateurs R6 : le R6N2.
Un total de 13 commutateurs L43 est mis en service en France.
Le LESIGNE 43 le plus récent a été
mis en service en 1960.
Ce système n'a pas tenu ses promesses. Il n'a équipé
que des centraux ayant, une capacité inférieure à
10.000 lignes
Le Commutateur L43 de Nancy-Stanislas II, mis en service le
7 juillet 1951, qui, saturé en permanence, a brûlé
quelques mois seulement après sa mise en service... Les mauvaises
langues parlaient de matériel flambant neuf...
Années 1950 Le R6 N2 :
normalisé type 2 - à X enregistreurs et seulement 2
traducteurs séparés , issu des évolutions
du L43.
Un prototype est mis en service en France dès juillet 1951
à Nancy. Bien que nayant pas été
massivement déployé, ce modèle de commutateur
a toutefois permis une mise en concurrence des différents constructeurs,
et amènera à la mise au point ultérieure dune
nouvelle version améliorée des commutateurs R6.
Comme les enregistreurs-traducteurs du R6N1 n'ont finalement
pas donné entière satisfaction en interurbain, il a
été décidé de séparer la fonction
Enregistreur de la fonction Traducteur.
Désormais, 90 enregistreurs seront contrôlés par
seulement 2 traducteurs à relais, car un traducteur n'est utilisé
que pour établir une communication, durant une fraction de
seconde ; C'est une simplification du commutateur qui a pour onséquence
une baisse du prix.
31 Commutateurs R6 N2 seront installés en France
en commençant le 22 mars 1958 par Poitiers et
à Boulogne-sur-mer par l' AOIP.
Les organes essentiels : relais, commutateurs rotatifs R6, sont déjà
admis comme matériel administratif pour l'équipement
des automatiques urbains et qui a fait ses preuves à l'heure
actuelle dans une trentaine de villes importantes.
Le parc atteindra 140 Commutateurs R6 en 1939 à
la veille de la seconde guerre mondiale.
Le commutateur 1926 R6 N2 le plus récent de France est mis
en service le 17 avril 1962 à Annecy.
Les dernières extensions de systèmes R6 déjà
installés auparavant ont été commandées
en Octobre 1978.
Commutateur R6 N2 de Poitiers 1958-1981
Fontainebleau R6 N2 mai 1951
Vue intérieure avec capots fermés et ouverts. Enregistreurs
et Taxeurs Interurbain.
Faces arrières Enregistreurs et Taxeurs Interurbain
Sommaire
1950 le SRCT
Conçu par l'Ingénieur
en chef des Télécommunications Albert de Villelongue,
le SRCT permet d'automatiser les campagnes.
De l'acronyme Service des Recherches et du Contrôle
Technique l'ayant conçu, est un petit autocommutateur
fabriqué à partir de matériel R6, de
catégorie secondaire et en conséquence destiné
au déploiement dans les campagnes, dans le but de remplacer
le système dit automatique-rural qui était en fait
semi-automatique déployé à partir de 1935 sur
instruction de Georges Mandel, Ministre des PTT.
Il s'agit d'un véritable Commutateur
à autonomie d'acheminement (et non pas d'un concentrateur
de lignes) ; si l'abonné appelant et l'abonné appelé
appartiennent au même Commutateur SRCT, la communication est
alors établie par ledit commutateur SRCT. Si l'abonné
demandé est extérieur, la communication est acheminée
vers le centre de groupement (nodal) de rattachement.
- La capacité typique de raccordement
est de 200, 400 ou 900 lignes dabonnés
au maximum suivant les variantes.
- La portée de raccordement entre un
Commutateur SRCT et un centre nodal est de 40 km maximum.
- Une ou plusieurs "centaines"
d'abonnés peuvent être déportées
(détachées) du cur jusqu'à 20 km de distance
pour constituer un sous-centre, mais ce sont autant de "centaines"
qui sont à déduire de la capacité totale maximale
du Commutateur SRCT.
A gauche : Prototype laboratoire du système
SRCT en 1949. les commutateurs pas à pas à 51 positions
empruntés au système R6.
A droite le commutateur SRCT de Perros-Guirec , c'est le premier
Commutateur SRCT mis en service à Perros-Guirec.
Les 4 boîtiers du bas contiennent chacun 1 Enregistreur-Traducteur.

Le premier Commutateur SRCT est mis en service à
Perros-Guirec le 5 novembre 1950, en présence de M. René
Pleven, Président du Conseil des ministres, et de M. Charles
Brune, Ministre des PTT.
L'AOIP était chargé de fabriquer le
R6 et fournissait en 1954 du SRCT 500 lignes pour les centres EDF
Srct à gauche et Crosbar à droite .
Le système SRCT fut déployé jusques en 1961
Sommaire
R6 2FR Centre
Interurbain Automatique de Départ - 2FR - Fruchou & Ribaud.
La modernisation d'après-guerre du matériel R6 a permis,
grâce à l'ingéniosité de deux personnalités
des Télécommunications françaises auxquelles
il convient de rendre un hommage appuyé, de résoudre
les difficultés jugées jusques alors insurmontables
de l'établissement des commutations téléphoniques
de longue distance par voie entièrement automatique.
Alors que la Zone Automatique de Paris et de Région Parisienne
utilise la signalisation par impulsion de contrôle inverse,
l'essentiel de la Province (hors Marseille et Nantes) utilise la signalisation
par impulsion de contrôle direct ou indirect (le système
pas-à-pas sans enregistreur ou avec enregistreurs).
Du coup, même les sociétés les plus éminentes
en matière téléphonique, telles que la société
Le Matériel Téléphonique (LMT),
la Compagnie des Téléphones Thomson-Houston
(future CGCT) - toutes deux filiales du géant ITT
; la Société Française des Téléphones
Ericsson (SFTE) - filiale du géant suédois Ericsson,
ainsi que la compagnie des téléphones américaine
ATT considèrent alors comme insoluble la situation.
Même les Ingénieurs des Bell-labs aux USA considèrent
après moult essais infructueux, la chose comme relevant de
l'impossible.
Il est donc fait constat d'échec de toutes ces puissantes organisations
à rendre le téléphone interurbain automatique...
Ni en France ni ailleurs dans le monde.
Pour tous ces acteurs, le téléphone interurbain devait
demeurer manuel pour encore de très longues décennies.
L'interurbain automatique ?
Les industriels des télécommunications et leurs ingénieurs
n'y croient pas.
Aucun des grands industriels ne voulut donc se lancer dans l'aventure...
Ce fut sans compter sur MM. les Ingénieurs des PTT - Jean
Ribaud et Jean Fruchou qui prirent le problème à
bras le corps dès 1945 et commencèrent une série
d'études qui aboutirent à assembler différents
matériels expérimentaux...
Il leur apparut assez rapidement que l'utilisation du matériel
R6 donnait les meilleures chances de mise en compatibilité
de réseau de Paris avec ceux de Province.
Tout d'abord réservée à un seul centre téléphonique,
Paris-Ségur, avec ses deux Commutateurs ROTARY 7A1 d'abonnés
Ségur et Suffren, les deux ingénieurs réussissent
à ouvrir à l'exploitation interurbaine expérimentale
de ce central parisien vers Fontainebleau,
Lille et Roubaix dès le 5 novembre 1946 en réalisant
une première maquette-type de ces nouveaux équipements...
Ayant donc réussi à résoudre les obstacles
de l'adaptation des différents types de signalisation en
vigueur entre Paris et la Province assez proche, le Comité
Technique des PTT du 17 décembre 1946 décide d'engager
le processus de généralisation à tous les abonnés
de Paris et confie naturellement la conception et le suivi du projet
à MM. les Ingénieurs des Télécommunications
- Jean Ribaud et Jean Fruchou, forts de leur premier succès.
Toutefois, une seconde expérimentation locale de même
nature sera mise en uvre avec succès à partir
du centre téléphonique Paris-Littré, avec son
Commutateur ROTARY 7A1 Littré et sa série Babylone fictive
à l'été 1948 qui confirmera le principe de reproductibilité
du procédé.
Passées les expérimentations préliminaires, est
alors engagée la construction du premier centre de transit
téléphonique interurbain automatique longue distance
de France, et du monde.
Il s'agit de la modeste Association
des Ouvriers en Instruments de Précision (AOIP) qui
sera chargée de fournir les différents organes du Commutateur
de cette nouvelle catégorie, suivant les instructions précises
de nos deux Ingénieurs, avec du matériel de type R6
normalisé d'après-guerre, similaire à celui qui
sera mis en service à Rouen en Mai 1949.
Le Commutateur sera entièrement construit
par les équipes d'ingénieurs, de techniciens et d'ouvriers
du service du montage de la Direction du Service Téléphonique
de Paris, c'est à dire par des fonctionnaires des PTT, fait
très inhabituel rendu nécessaire pour contrer le refus
collectif et unanime des grands constructeurs à se lancer dans
une telle aventure...
Il est à noter que les organes Enregistreurs-Traducteurs
interurbains nécessaires à ce commutateur très
spécial seront conçus par nos deux Ingénieurs
MM. Ribaud et Fruchou.
Enregistreurs-Traducteurs interurbains du Commutateur 2FR
Ce Commutateur est implanté dans le complexe
téléphonique national et international de Paris-Inter-Archives
(PIA) précisément dans une partie de l'immeuble Dabout.
Nommé officiellement 2FR, des initiales du nom de famille
de leur deux ingénieurs-concepteurs Fruchou & Ribaud
en leur honneur, le Commutateur 2FR est mis en service le 26 mai
1951 pour tous les abonnés de Paris.
Le Commutateur Interurbain 2FR est doté d'une capacité
de 200 circuits de départ, c'est à dire qu'à
plein rendement, il peut acheminer jusqu'à 200 communications
interurbaines au départ de Paris, simultanément. Capacité
inédite pour cette époque..
- Le 26 mai 1951, la première relation interurbaine par voie
entièrement automatique est ouverte de Paris vers Fontainebleau.
- Le 23 juin 1951, la seconde relation interurbaine par voie entièrement
automatique est ouverte de Paris vers Rouen.
- Le 1er décembre 1951, la troisième relation interurbaine
par voie entièrement automatique est ouverte de Paris vers
Lyon. Il s'agit en outre de la première relation interurbaine
entièrement automatique de longue distance (500 km).
- Le 2 août 1952, la quatrième relation interurbaine
par voie entièrement automatique est ouverte de Paris vers
Toulouse. Il s'agit en outre de la deuxième relation interurbaine
entièrement automatique de longue distance (800 km).
- Le 5 janvier 1953, la totalité des abonnés au téléphone
de la Circonscription de Paris (incluant la 1ère couronne)
peut désormais téléphoner par voie entièrement
automatique vers les villes de Fontainebleau,
Rouen, Lyon et Toulouse.
- Le 1er avril 1954, la cinquième relation inteurbaine par
voie entièrement automatique est ouverte de Paris vers Lille
et Roubaix.
Secondé dans le trafic interurbain à partir du
18 janvier 1958 par un second centre de plus grande capacité
le CIAD Paris Bonne-Nouvelle , pour de nouvelles destinations,
ce Commutateur 2FR fut à partir de 1959 reconverti en Centre
de Transit téléphonique Régional, et sera
désormais utilisé pour écouler une partie du
trafic téléphonique régional entre Paris intra-muros
et la deuxième couronne.
La mise hors service définitive du premier centre
interurbain automatique de départ français intervient
le 26 octobre 1972.
La première destination interurbaine
automatique au départ de Paris étant la ville de
Fontainebleau, à titre expérimental,
le Commutateur R6 Sans Enregistreur (R6 simple) mis en service en
Juin 1942 doit faire l'objet d'importantes modifications.
En effet, il va s'avérer nécessaire
de l'équiper de circuits dEnregistreurs Urbains et d'Enregistreurs
Interurbains d'arrivée, ainsi que de matériel capable
d'assurer la Taxation Interurbaine semblable au Commutateur Automatique
Interurbain R6 2FR.
En résumé, le Commutateur R6 de
Fontainebleau doit devenir "intelligent"
afin de pouvoir dialoguer avec Paris, en automatique...
Les Commutateurs R6 Sans Enregistreur autorisent
une Numérotation locale à 6 chiffres. Certains
ont assuré leur service au delà de l'année
1973. En revanche, leur structure ne leur permet pas de passer à
la Numérotation à 8 chiffres prévue le 25 octobre
1985. Ils ont tous été mis hors service avant cette
date.
Sommaire
3 - R6 : Organisation, Fonctionnement, Installation
des centres manuels
Cet exposé est principalement
issu du Bulletin d'informations des Ministère des Postes,
télégraphes et téléphones de 1936
Par M. DUMAS-PRIMBAULT INGÉNIEUR DES
POSTES, DES TÉLÉGRAPHES ET DES TÉLÉPHONES.
|
Contexte en cette année
1935 : L'automatique
rural est à l'ordre du jour et devient une urgence.
Par le décret du 19 juillet 1935
relatif à l'établissement du "téléphone
automatique-rural" et le décret complémentaire
du 30 octobre 1935, le système téléphonique
dit "automatique-rural", est adopté
en France.
Un certain nombre de conseils généraux ont accepté
d'accorder à l'Administration leur concours financier
en vue de l'installation du téléphone automatique
rural.
Une quarantaine de départements doivent en conséquence
recevoir cet équipement, en totalité ou en partie,
dans le courant de la présente année.
Au 1" janvier 1935, le nombre des réseaux
automatiques ruraux déjà en service dans les
régions de Paris, Rouen et Rennes principalement,
s'élevait à 2.086 et le nombre des abonnés
ruraux à 21.064.
Ces chiffres permettent de se faire une idée du faible
nombre d'abonnés ruraux reliés et de l'importance
de cette décision.
Le moment a donc paru opportun pour rappeler
ici les principes généraux de ce mode d'exploitation
et pour décrire les caractéristiques et le mode
d'emploi du nouveau matériel qui est ainsi appelé
à remplacer sur une vaste échelle l'ancien matériel
manuel bien connu (tableaux standards, extensibles, Routin,
etc.).
Personne n'ignore que le réseau
téléphonique français, surtout quand
on le compare aux réseaux étrangers, se caractérise
par l'extrême dispersion des bureaux téléphoniques
; et, par conséquent, la plupart de ces bureaux
ne comptent qu'un très petit nombre d'abonnés.
Ainsi constitué, ce réseau
se présente d'une façon particulièrement
défavorable pour permettre d'obtenir, avec le service
manuel, les deux grandes qualités que les usagers modernes
sont en droit d'exiger du téléphone, à
savoir : la permanence du service et la rapidité dans
l'établissement des communications.
La permanence du service aurait en effet exigé le maintien
dans chaque bureau, à toute heure du jour et de la
nuit, d'un personnel dont le rendement moyen aurait été
très faible : d'où pour le budget annexe, de
lourdes charges, absolument hors de proportion avec les services
rendus.
Et pour arriver à une rapidité satisfaisante
dans l'établissement des communications, le seul moyen
possible consiste dans la suppression des nombreux intermédiaires
manuels qui ont trop souvent à intervenir pour relier
deux à deux les divers petits circuits utilisés.
La généralisation du téléphone
automatique intégral tel qu'il est ou va être
réalisé dans la région de Saint-Malo,
sur la Côte Basque ou sur la Côte d'Azur
ne peut, par ailleurs, être considérée
comme une solution satisfaisante pour l'ensemble du territoire
français.
Des installations de ce genre entraînent en effet :
le remplacement de tous les postes
d'abonnés par des postes à batterie centrale;
une réfection et un entretien
très soigné du réseau des lignes, entretien
particulièrement délicat à assurer dans
les petits réseaux entièrement aériens
;
la construction de nombreux circuits
supplémentaires nécessaires pour permettre d'assurer
aux abonnés un trafic sans attente, comme il est nécessaire
de le faire avec une exploitation entièrement automatique;
l'installation de meubles téléphoniques
permettant d'assurer automatiquement la taxation des communications
selon leur durée et la distance des deux correspondants;
or le prix de ces meubles, rapporté au nombre des directions
desservies, augmente rapidement quand la capacité des
installations décroît.
Ces charges sont donc d'autant plus lourdes
que les réseaux desservis sont moins importants.
Elles sont admissibles dans le cas de certaines régions
à forte densité téléphonique,
à l'intérieur desquelles le trafic local est
particulièrement élevé; elles le sont
d'autant moins, dans la généralité des
cas, que les services rendus par le téléphone
automatique intégral sont relativement peu intéressants
dans les campagnes, car l'usage du cadran ne dispenserait
pas les abonnés d'avoir à passer par l'intermédiaire
d'une opératrice manuelle pour le plus grand nombre
de leurs communications.
Placée devant la nécessité
d'améliorer le service rural, obligée de renoncer
pour les raisons indiquées ci-dessus à la généralisation
du téléphone automatique intégral, l'Administration
s'est donc orientée vers une solution mixte, originale
, qui doit lui permettre de tirer
le meilleur parti du réseau existant et de réaliser
ainsi, avec le minimum de frais, les qualités de permanence
et de célérité du service que nous rappelions
plus haut : c'est le téléphone semi-automatique
rural dont nous allons rappeler, dans ses grandes lignes,
la conception.
Sommaire
PRINCIPES GÉNÉRAUX
DE L'ORGANISATION ADOPTÉE.
Le principe de l'organisation consiste essentiellement
à concentrer en un certain nombre de bureaux,
judicieusement choisis, et dotés d'un service manuel
permanent, tout le trafic téléphonique de la
zone rurale qui les entoure.
L'ensemble du territoire est donc divisé
en groupes automatiques ruraux, chacun d'eux comprenant
l'ensemble des bureaux desservis par un centre manuel unique.
Toutes les communications intéressant les abonnés
du groupe sont établies par les opératrices
du centre manuel qui est aussi le point de convergence obligatoire
par lequel ces abonnés sont reliés au réseau
général.
L'importance de ces groupes est très
variable. Certains d'entre eux ne comprennent que deux ou
trois bureaux; d'autres en comprennent plus de 100 (173 pour
celui de Toulouse). Un groupe moyen comprendra 25 ou 30 bureaux
ruraux.
Naturellement figurent parmi les centres
manuels de groupes tous les centres de transit et les centres
de groupements.
Mais on a été conduit, pour des raisons que
nous exposerons plus loin, à créer, en dehors
de ces deux catégories de bureaux, un certain nombre
de nouveaux centres manuels.
On peut estimer ainsi que pour l'ensemble de la France, le
nombre des groupes sera de l'ordre de 800 à 1.000.

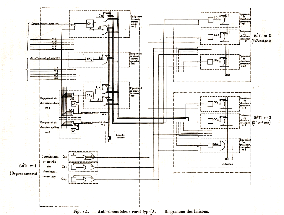
A l'intérieur d'un groupe, et
nous avons pris ici, en exemple, le groupe de Mont- luçon
(fig. 1), l'organisation est la suivante :
- Chaque bureau rural reçoit un meuble automatique
de capacité appropriée.
- Ce meuble est relié au centre manuel soit directement
(cas du bureau d' Buriel) soit par l'intermédiaire
d'un ou deux autres autocommutateurs (cas des bureaux de Chambérat
ou de Saint-Palais).
- Le nombre des bureaux placés
et en chapelets à partir du centre manuel ne dépasse
pas trois.
Sans doute, les meubles automatiques se prêteraient-ils
sans difficulté à équiper un nombre plus
important de bureaux échelonnés; mais on a eu
le souci d'éviter un affaiblissement excessif et aussi
de diminuer les délais d'attente qui pourraient s'imposer
aux abonnés dans le cas de circuits occupés.
Il convient de remarquer d'autre part que la sécurité
des communications est d'autant mieux assurée que le
nombre des bureaux qui interviennent dans leur établissement
est plus réduit. Il a donc été admis
qu'on ne devrait jamais dépasser le chiffre de trois
bureaux échelonnés.
Cela étant, l'exploitation est,
dans ses grandes lignes, la suivante :
-Une opératrice de Montluçon
veut-elle obtenir un abonné du bureau de Chambérat
par exemple ?
- Elle enfiche devant elle le jack d'un circuit libre vers
le bureau d'Huriel, et elle compose au cadran le numéro
nécessaire pour obtenir l'abonné demandé
à travers les deux bureaux successifs d'Huriel et de
Chambérat.
- Elle peut à ce moment vérifier si l'abonné
est libre ou occupé, le sonner, rentrer en communication
avec lui, etc., bref, faire les différentes opérations
analogues à celles que peut faire vis-à-vis
d'un abonné urbain l'opératrice interurbaine
d'un réseau automatique.
Un abonné de Chambérat, par
exemple, veut-il appeler ?
- Il tourne sa magnéto et décroche son récepteur.
- Son appel, reçu au bureau de Chambérat, y
est enregistré et retransmis au bureau d'Huriel, puis
de là au centre manuel où une lampe s'allume
sur le meuble manuel.
- L'opératrice enfiche le circuit sur lequel l'appel
se manifeste ainsi, et se trouve en présence de l'abonné
appelant.
Si celui-ci désire une communication
à destination d'un abonné du centre manuel lui-même,
ou bien n'appartenant pas au groupe envisagé, ou encore
appartenant à ce groupe, mais situé sur une
autre direction, l'opératrice donne suite à
sa demande avec l'autre fiche de son dicorde, après
avoir au besoin défiché et rappelé le
demandeur afin de vérifier son identité.
Si l'abonné appelant désire
obtenir une communication à destination d'un abonné
appartenant à l'un des bureaux de Chambérat,
d'Huriel ou de Viplaix, par exemple c'est-à-dire situé
dans le même secteur que lui-même,
- l'opératrice établit la communication en composant
le numéro du demandé sur la même fiche
de son dicorde :
La communication, qui est dite alors communication locale
ou in, est établie cen locales à l'intérieur
de l'autocommutateur de Chambérat si le demandé
appartient à ce même bureau ou encore à
l'intérieur du bureau d'Huriel si l'abonné appartient
au bureau d'Huriel ou à celui de Viplaix.
De toute façon, les circuits Montluçon-Huriel-
Chambérat ou simplement Montluçon-Huriel, qui
ne sont pas indispensables au maintien de la conversation,
peuvent être, après établissement de la
communication, libérés et utilisés pour
d'autres appels.
Sommaire
Ce projet d'organisation, mis sur pied dès
l'année 1927 par l'Administration, ne pouvait comporter
de réalisations rapides pour la bonne raison qu'aucun
des matériels automatiques existant à cette époque
ne permettait de satisfaire aux conditions d'exploitation imposées.
Le problème fut donc posé aux différents
constructeurs, et la période qui s'étend de
1928 à 1934 fut consacrée au choix et à
la mise au point du matériel nécessaire.
Sans doute les opérations essentielles
à effectuer (sélection d'un abonné, enregistrement
et acheminement des appels) pouvaient-elles être exécutées
avec les appareils et selon les méthodes en usage dans
les automatiques urbains.
Mais l'application aux réseaux ruraux de ces dispositions
connues présentait pourtant un certain nombre de difficultés
:
du fait que toutes les signalisations
entre le centre manuel et les autocommutateurs ne devaient emprunter
que deux fils seulement;
du fait des communications locales
qui, pour leur établissement, leur maintien et leur rupture,
exigeaient des précautions spéciales ;
du fait enfin des dispositions
particulières de toute nature (encombrement, signalisation
des incidents, nécessités de l'entretien, etc.)
qui se sont imposées dans des meubles ruraux, c'est-à-dire
destinés à fonctionner dans des conditions souvent
précaires, loin du personnel chargé de l'entretien.
Huit constructeurs se mirent à
l'étude de la question et douze systèmes présentés
par eux (certains constructeurs en présentèrent
deux ou trois) furent mis à l'essai dans les régions
de Paris et d'Orléans.
L'un d'entre eux, qui avait déjà donné
à l'époque des résultats jugés assez
satisfaisants, fit même l'objet d'un achat de la part
de l'Administration qui passa à son constructeur une
commande actuellement en voie de réalisation très
avancée destinée à équiper sept
ou huit départements (Calvados, Eure, Eure-et-Loir, Manche,
Orne, Seine-Inférieure en totalité; Mayenne, Seine-et-Oise
et Seine-et-Marne en partie).
Mais ce n'est qu'en 1935,
devant l'éventualité de réalisations plus
importantes, que le système du type R6, présenté
par la Compagnie des Téléphones Thomson- Houston,
fut définitivement retenu, après concours,
comme système administratif.
En dehors des avantages d'ordre divers
qu'il présente et sur lesquels nous aurons l'occasion
de revenir en en faisant la description, il nous faut signaler
ici que ce système, essayé dans la région
de Fontainebleau, a donné
des résultats d'exploitation particulièrement
satisfaisants.
De plus ses organes essentiels (relais, commutateurs rotatifs),
sont du type R6, déjà admis comme matériel
administratif pour l'équipement des automatiques urbains
et qui a fait ses preuves à l'heure actuelle dans une
trentaine de villes importantes.
Cette identité des organes fondamentaux doit pouvoir
donner ultérieurement de sérieuses facilités
pour l'entretien et l'extension.
Nous allons donc, puisque c'est celui qui
va être maintenant généralisé,
décrire les principales caractéristiques du
système rural type R6 et passer en revue les différents
modèles de meubles qui en composent la gamme telle
qu'elle a été fixée sur les directives
de l'Administration.
|
Sommaire
FONCTIONNEMENT DES MEUBLES AUTOMATIQUES
RURAUX.
Le meuble automatique rural placé dans un bureau est
constitué par l'ensemble des organes qui, dans ce bureau,
servent d'intermédiaire entre l'opératrice du centre
manuel distant et les abonnés du réseau considéré.
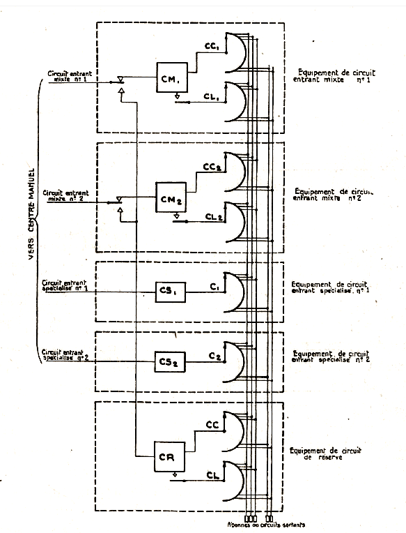
CIRCUIT ENTRANT.
Le nombre et la nature des organes automatiques dépendent
de l'importance du bureau considéré, mais le rôle
principal est joué par l'organe qui porte le nom d'équipement
de circuit entrant et qui, à quelques variantes près,
se retrouve sous la même forme dans tous les types de meubles.
Naturellement le nombre des équipements de ce genre qui se
trouvent dans un bureau est variable et déterminé
par le trafic de ce bureau.
Le rôle essentiel de l'équipement de circuit entrant
est de prolonger et de compléter le circuit qui relie les
deux bureaux et d'établir la liaison téléphonique
entre l'opératrice du centre manuel et les abonnés
automatiques, ou entre deux quelconques de ces derniers.
Les fonctions que cet organe a à remplir sont donc les suivantes
:
1° Quand l'opératrice veut obtenir un abonné
du bureau automatique, elle choisit un circuit libre vers ce bureau
et compose au cadran le numéro de l'abonné demandé.
L'équipement de circuit entrant doit alors obéir aux
impulsions envoyées par le cadran et choisir cet abonné
: il agit alors en connecteur;
2° Quand un abonné du bureau automatique fait
un appel, celui-ci doit être aiguillé vers le centre
manuel. L'équipement de circuit entrant doit donc rechercher
l'abonné appelant afin de le mettre en liaison avec l'opératrice
: il agit alors en chercheur.
3° Quand un abonné du bureau automatique veut
obtenir un autre abonné de ce même bureau, l'équipement
de circuit entrant, après avoir joué le rôle
de chercheur vis-à-vis de l'abonné appelant, doit,
sous la commande du cadran de l'opératrice, jouer le rôle
de connecteur vis-à-vis de l'abonné demandé;
puis il doit ensuite maintenir la communication établie :
il joue alors le rôle de cordon.
L'équipement de circuit entrant doit donc comprendre tous
les organes nécessaires pour jouer le triple rôle de
connecteur, de chercheur et de cordon. Un pareil équipement,
comme il est facile de le voir sur la figure 2, est forcément
assez compliqué.
 |
Fig. 2. Groupe de relais
de circuit entrant mixte pour autocommutateur rural des types
C et D.
1. Relais polarisé.
2. Commutateur contrôle.
3. Relais thermique.
6. Jack d'essais. |
Pour exposer avec plus de précision le fonctionnement
général de cet organe, nous allons considérer
le cas particulier d'un meuble du type «G» que
nous supposerons directement relié au centre manuel par deux
circuits. Nous admettrons pour le moment que
ce meuble est en position extrême, c'est-à-dire qu'il
ne dessert que les abonnés de son propre réseau ou les
cabines qui lui sont directement reliées.
Nous supposerons enfin, pour fixer les idées,
que le centre manuel est à batterie locale et ne comporte pas
le multiplage des circuits ruraux.
Dans ces conditions, et abstraction faite de
tous les organes accessoires dont nous parlerons plus loin, le, schéma
de principe de la liaison entre manuel et automatique est représenté
par la figure 3.
On voit qu'au bureau automatique, chaque circuit
est relié à un équipement comprenant un groupe
de relais (groupe de relais qui, comporte en outre un commutateur
décimal type «commutateur de contrôle du système
R6 il bien visible sur la figure) et deux commutateurs rotatifs à
51 positions : un chercheur connecteur C. C. et un connecteur local
C. L.
Au centre manuel,
chacun des circuits est relié à un groupe de relais
C et figure sur le meuble par un jack J, une lampe d'appel L. A.,
une lampe de supervision L. S., auxquels s'ajoute
encore une clé de cadran.
De plus, chaque circuit est représenté dans le banc
du chercheur d'un organe spécial D, unique en principe pour
le bureau, et appelé distributeur.
Sommaire
Le fonctionnement général est le
suivant :
1° L'opératrice appelle
un abonné du bureau automatique.
Elle enfiche un circuit libre et insère son cadran
sur le circuit en abaissant la clé de cadran associée.
Dès que les organes du circuit pris sont en position convenable,
ce dont elle est avertie par l'allumage d'une lampe de cadran propre
à sa position, l'opératrice compose sur son cadran
le numéro de l'abonné demandé.
Ce numéro est en principe à deux chiffres puisque
le bureau considéré ne comporte que 5o abonnés
au plus. Cependant, et pour des raisons de numérotation,
on donne aux abonnés du bureau considéré un
préfixe numérique, dans le cas considéré,
le chiffre 1. L'abonné 27, par exemple, sera donc numéroté
127.
L'opératrice compose ainsi 3 chiffres sur son cadran; mais
seuls le second et le troisième jouent ici un rôle
efficace.
Ils sont successivement reçus au bureau automatique par le
commutateur de contrôle de l'équipement de circuit
entrant, et, par l'intermédiaire de celui-ci, agissent sur
le chercheur-connecteur de la même façon que pour les
connecteurs ordinaires des centraux urbains du type R6.
Le chercheur-connecteur, fonctionnant donc en connecteur, est ainsi
aiguillé sur l'abonné demandé et fait le test
de celui-ci.
Deux cas peuvent alors se présenter :
a. L'abonné demandé est
occupé. A la fin de la numérotation, la lampe
de cadran de l'opératrice ne se rallume pas. Celle-ci relève
sa clé de cadran et perçoit le signal cadencé
d'occupation. Elle peut à volonté :
soit se retirer purement et simplement,
en défichant, ce qui provoque la libération immédiate
du circuit ;
soit rentrer en écoute sur la
communication établie. Pour cela, elle n'a qu'à abaisser
un instant sa clé d'appel : elle se trouve alors en présence
de l'abonné et peut avertir celui-ci.
b. L'abonné
demandé est libre. A la fin de la numérotation,
la lampe de cadran de l'opératrice (qui s'est rallumée
après l'envoi de chaque chiffre), se rallume à feu
fixe. L'opératrice relève sa clé de cadran
et abaisse un court instant sa clé d'appel. L'abonné
est sonné et, pendant tout le temps que dure son appel, la
lampe de supervision L. S. clignote à allure cadencée.
Lorsque l'abonné décroche son combiné, la lampe
de supervision s'éteint, et la communication se trouve établie.
Lorsque, en fin de conversation, l'abonné
raccroche son appareil, la lampe de supervision se rallume; l'opératrice
coupe alors la communication en défichant, ce qui provoque
la libération immédiate des organes en prise. Le chercheur
connecteur en particulier revient à sa position de repos.
2° Un abonné du bureau automatique
appelle.
L'abonné tourne sa magnéto. Au bureau
automatique, son relais d'appel passe en position d'appel, ce qui
provoque les trois opérations suivantes :
a. Une tonalité
particulière et continue est envoyée à l'abonné
qui apprend ainsi que son appel a été reçu;
b. Un potentiel
spécial est mis sur les broches de troisième fil du
multiplage de l'abonné appelant;
c. Une batterie
est mise sur un des fils (fil a) de chacun des circuits libres vers
le centre manuel. C'est cette batterie qui signale l'appel à
distance : on voit donc que celui-ci est transmis au centre manuel
simultanément sur tous les circuits libres.
Au bureau manuel, le distributeur D est alors
mis en marche et s'arrête sur le prenlier circuit appelant
qu'il rencontre. La lampe d'appel de ce circuit s'allume à
ce moment sur la position manuelle, et une tonalité cadencée,
dite «de réponse immédiate ,», est envoyée
sur le circuit.
Au bureau automatique, le chercheur-connecteur,
agissant maintenant en chercheur, part en rotation libre à
la recherche de l'abonné appelant, et s'arrête sur
la position de celui-ci, marquée par le potentiel spécial
du 3 ème fil.
Dans le cas où, par suite d'un dérangement
quelconque affectant soit le circuit choisi, soit l'équipement
automatique qui le termine, le chercheur n'a pas trouvé au
bout de quelques secondes (5 ou 6, à peu près) l'abonné
appelant, le distributeur est remis automatiquement en marche et
va choisir le second circuit libre vers le bureau automatique; les
opérations décrites ci-dessus se reproduisent alors
sur ce circuit comme elles se reproduiraient, le cas échéant,
sur tous les autres circuits libres desservant le bureau considéré.
On voit donc que, grâce au jeu du distributeur, les chances
d'un appel perdu sont très fortement diminuées : pour
qu'un appel n'aboutisse pas, il faudrait en effet que tous les circuits
libres soient simultanément défectueux; et cette particularité
n'est pas un des moindres avantages du système.
Dès que le chercheur a trouvé
l'abonné appelant, celui-ci, s'il a décroché
son appareil, reçoit le signal «de réponse immédiate"
qui se substitue à la tonalité continue dont il a
été question plus haut et avertit ainsi l'abonné
que son appel est parvenu au centre manuel.
Le distributeur est immédiatement libéré.
Lorsque l'opératrice enfiche le circuit appelant,
deux cas peuvent se produire : a. L'abonné se trouve à
l'appareil. La lampe de supervision reste éteinte
et l'opératrice est en présence de l'abonné;
b. L'abonné
a raccroché ou n'a pas encore décroché
son appareil. Il est alors automatiquement sonné
à partir du centre manuel, et l'envoi de ce courant d'appel
est signalé à l'opératrice par le clignotement
cadencé de la lampe de supervision. Lorsque 1 abonné
décroche, la lampe de supervision s'éteint.
Si l'abonné demande une communication
interurbaine, l'opératrice en prend note et le rappelle ultérieurement
pour y donner suite.
Le raccrochage de l'abonné est signalé
à l'opératrice par l'allumage de la lampe de supervision;
le circuit est libéré au défichage.
Notons au passage cette caractéristique importante de l'exploitation
automatique rurale : l'appel reçoit une suite quelles qu'aient
été les manuvres de l'abonné à
partir du moment où il a tourné sa magnéto,
qu'il ait décroché ou non son récepteur.
Ceci tient à ce que l'appel est enregistré à
partir de ce moment là. Par conséquent un abonné
qui n'est pas immédiatement desservi, peut raccrocher sans
avoir à attendre inutilement à l'appareil : il peut
être sûr que son appel sera écoulé dès
qu'un circuit sera libre.
Cette particularité s'oppose donc directement
à ce qui se passe en exploitation automatique intégrale
où, à moins de rester à l'appareil, l'abonné
doit recommencer lui-même son appel autant de fois qu'il ne
trouve pas d'organes libres.
Cette disposition, pour secondaire qu'elle apparaisse de prime abord,
a pourtant de profondes conséquences : c'est elle en effet
qui permet de se contenter, pour desservir un meuble automatique
rural, d'un nombre de circuits bien inférieur à celui
qu'indique le calcul des probabilités utilisé pour
la détermination du nombre des organes d'un bureau automatique
intégral.
3° L'abonné demande une communication
locale.
Après avoir répondu, comme nous venons de le
voir, à l'abonné demandeur, l'opératrice abaisse
sa clé de cadran, ce qui provoque l'allumage de la lampe
de supervision; puis, dès que la lampe de cadran s'allume,
elle compose le numéro de l'abonné demandé.
La sélection de celui-ci a lieu comme on l'a vu précédemment.
Mais, au bureau automatique, ce n'est plus le chercheur-connecteur
indisponible, puisque, en tant que chercheur, il est arrêté
sur la ligne de l'abonné demandeur qui en est chargé,
c'est le connecteur local
. A cela près, tout se passe de même.
Lorsque la sélection est terminée,
l'abonné demandé est testé.
S'il est occupé, l'opératrice perçoit le signal
d'occupation et en avertit le demandeur. Elle défiche et
établit la communication un instant plus tard.
Si le demandé est libre, l'opératrice
le sonne, et le demandeur perçoit le retour d'appel.
Lorsque l'abonné demandé décroche,
la lampe de supervision s'éteint. Les deux abonnés
se trouvent en présence l'un de l'autre et l'opératrice
est en tiers sur la conversation.
Si l'opératrice veut surveiller la
communication, elle n'a qu'à ne pas déficher : elle
est avertie de la fin de la conversation par le rallumage de la
lampe de supervision.
Si l'opératrice ne veut pas surveiller
la communication, elle défiche : Le circuit est libéré
et se porte, comme on le verra plus loin, sur un équipement
de circuit de réserve. La communication reste établie
à travers le cordon formé par l'équipement
de circuit entrant.
Lorsque l'un quelconque des deux abonnés raccroche, il déclenche
le mécanisme de libération de cet équipement.
Mais cette libération est différée de 7 ou
8 secondes, de façon à donner à un abonné
le temps de rappeler, en tournant sa magnéto, son correspondant
qui a raccroché prématurément. Au moment de
la libération, chercheur-connecteur et connecteur local reviennent
tous deux à leur position de repos.
Sommaire
CIRCUIT DE RESERVE.
Si les organes du meuble automatique se
réduisaient à ceux que nous venons de décrire,
on voit qu'une communication locale reviendrait à occuper
fictivement, pendant toute sa durée, un circuit entre le
centre manuel et le bureau automatique.
Sans doute, ce circuit serait-il théoriquement disponible,
mais il serait inutile comme ne pouvant jouer aucun rôle dans
l'établissement d'une seconde communication, puisqu'il n'aboutirait
sur aucun organe, chercheur ou connecteur, disponible.
Cet inconvénient est supprimé
du fait de l'existence, à côté des équipements
de circuits entrants, d'un équipement «de réserves
(fig 7), qui leur est d'ailleurs exactement semblable, mais
qui n'est affecté à aucun des circuits entrants en
particulier : lorsqu'une comunication locale a été
établie sur un des équipements de circuit entrant
et que l'opératrice a défiché, le circuit entrant
ainsi rendu disponible est automatiquement aiguillé sur l'équipement
de circuit de réserve et peut alors, prolongé par
celui-ci, jouer tous les rôles qui lui sont normalement dévolus,
d'une façon complètement indépendante de la
communication précédemment établie.
Dès que le circuit entrant et l'équipement
qui le prolonge normalement, sont simultanément devenus libres
de nouveau, le circuit revient à son ancienne disposition.
Si donc le circuit de réserve est exactement constitué
de la même manière que le circuit entrant, son utilisation
est pourtant nettement différente : l'équipement de
circuit entrant est toujours pris par préférence,
et l'équipement de circuit de réserve n'entre en jeu
qu'au cas où le premier serait déjà utilisé
pour une communication locale; l'un ne peut être utilisé
que par le circuit qui lui est normalement affecté, l'autre
par n'importe lequel des circuits entrants mixtes.
Il est à noter que le nombre des communications
locales est très peu élevé dans les bureaux
ruraux. Aussi n'a-t-on prévu de circuits de réserve
que dans les bureaux d'assez grosse capacité. Le meuble du
type C n'en comporte qu'un : c'est dire que, dans un meuble de ce
type, si deux communications locales sont établies simultanément,
la seconde occupera un circuit entrant; ce cas est d'ailleurs très
peu fréquent.
CIRCUITS MIXTES ET CIRCUITS SPÉCIALISÉS.
Les communications locales étant
rares dans les réseaux ruraux, la presque totalité
du trafic est constituée par les communications interurbaines.
On peut admettre que le trafic interurbain d'arrivée
(l'abonné du bureau rural étant demandé) est
d'une importance comparable à celle du trafic interurbain
de départ (l'abonné du bureau rural étant demandeur).
Mais on doit remarquer que, pour une communication interurbaine
de départ, le rappel du demandeur qui permet en particulier
de contrôler son identité est de règle.
Il s'ensuit que les communications de départ, après
avoir été l'objet d'une inscription au centre manuel,
sont ensuite établies sur rappel de celui-ci : au point de
vue des organes automatiques, tout se passe alors comme si l'abonné
demandeur était demandé.
Si l'on ne regarde que la durée d'occupation de ces organes,
on constate donc que la fonction connecteurs joue un rôle
beaucoup plus important que la fonction chercheurs, cette dernière
n'étant mise en jeu que pendant les communications locales,
rares, nous l'avons dit, et pendant l'inscription des communications
interurbaines de départ.
Si chaque circuit entrant avait pu être
spécialisé, il aurait donc fallu disposer d'un nombre
relativement élevé de circuits connecteurs, et d'un
nombre beaucoup plus restreint de ce circuits chercheurs. Mais le
nombre des circuits qui desservent d'habitude un bureau rural est
trop faible pour se prêter à une spécialisation
de ce genre; le trafic «chercheur» en particulier est
trop peu important pour justifier qu'on lui consacre des circuits
spécialisés.
En revanche il a paru possible, dans le but
de réduire autant que faire se peut la complexité
et le prix des organes, de spécialiser certains circuits
pour le trafic d'arrivée. Ainsi, à côté
des circuits entrants mixtes dont il a été exclusivement
question plus haut, il existe des circuits entrants spécialisés
ne jouant que la fonction de connecteur.
Les équipements de ces circuits entrants
spécialisés sont notablement plus simples que ceux
des circuits entrants mixtes tant dans le bureau automatique (par
exemple, dans le meuble du type C, 15 relais et un commutateur rotatif
au lieu de 22 relais et 2 commutateurs rotatifs) qu'au bureau manuel
où ils comportent plusieurs relais de moins et n'ont pas
par ailleurs à être représentés sur le
banc du distributeur.
Naturellement des circuits spécialisés
ne peuvent être prévus que dans les bureaux pour lesquels
le nombre total des circuits est suffisamment élevé.
On a admis que, pour les bureaux assez importants, il y aurait toujours
un minimum de deux circuits mixtes, c'est-à-dire de deux
chercheurs par bureau.
Les équipements de circuits spécialisés
n'existent donc que dans les meubles pouvant être desservis
par plus de deux circuits : c'est ainsi que le meuble du type C
en compte deux, en plus des deux équipements de circuits
mixtes.
Nous avons jusqu'ici envisagé le cas particulièrement
simple d'un bureau directement relié au centre manuel et
ne desservant que des abonnés, mais nous savons qu'un meuble
automatique rural doit offrir également la possibilité
d'être atteint à partir du bureau manuel à travers
un ou deux autres bureaux automatiques et, réciproquement,
de desservir des circuits donnant accès à d'autres
bureaux.
En conséquence chaque meuble automatique permet à
l'opératrice du centre manuel d'accéder non seulement
aux lignes d'abonnés mais également à un certain
nombre de circuits desservant d'autres bureaux et appelés
circuits sortants.
Le multiplage des chercheurs-connecteurs, connecteurs et connecteurs
locaux comprend donc les abonnés et, le cas échéant,
les circuits sortants.

Cette disposition complique naturellement les fonctions de l'autocommutateur,
car le traitement réservé à ces circuits sortants
ne peut pas être le même que celui qui est réservé
aux lignes d'abonnés, ne serait-ce, par exemple, que du fait
de la nécessité d'avoir à transmettre les impulsions
de numérotation.
L'équipement de circuit entrant, organe fondamental, comme
on l'a vu, de l'autocommutateur, discrimine donc, d'après
la nature de la direction choisie, les deux cas et agit de façon
différente dans chacun d'eux.
L'équipement individuel de chaque direction sortante, qui
se compose d'un unique relais d'appel et de coupure, comporte par
ailleurs un montage différent selon qu'il s'agit d'un abonné
ou d'un circuit.
L'exploitation d'un meuble rural A desservi à travers
un autre meuble rural B (fig. 4) est la suivante :
1° L'opératrice du centre
manuel appelle un abonné du bureau A.
Cette opératrice prend un circuit libra
vers le bureau B, puis numérote sur ce circuit le numéro
affecté dans le bureau B aux circuits sortants vers le bureau
A. Le connecteur du bureau B est ainsi dirigé sur un des
circuits desservant le bureau A.
Puis l'opératrice compose le numéro
de l'abonné demandé.
L'envoi de ce numéro agit sur le connecteur du bureau A qui
vient s'arrêter sur la ligne de cet abonné.
Il est à noter que :
a. Les connecteurs du bureau B sont
montés en connecteurs rotatifs, c'est-à-dire qu'ils
permettent l'exploration automatique des circuits groupés
sous un même numéro ;
b. Après chaque sélection,
la lampe de cadran de l'opératrice se rallume, avertissant
ainsi celle-ci qu'elle peut composer le chiffre suivant.
Le non-rallumage de la lampe de cadran informe l'opératrice
qu'une anomalie s'est produite en cours de sélection (par
exemple une absence de circuits libres entre les bureaux A et B),
et lui permet de localiser cette anomalie.
2° Appel émanant d'un abonné
du bureau A.
Cet appel est transmis, de la façon
vue plus haut, vers le bureau B par une polarité convenable
mise sur chaque circuit mixte libre entre les bureaux A et B. Au
bureau B, cet appel est enregistré sur le relais individuel
de chacun de ces circuits et retransmis de la même façon
au centre manuel.
Lorsqu'au centre manuel le distributeur a
désigné le circuit choisi, le chercheur connecteur
de l'organe correspondant du bureau B part à la recherche
des circuits appelants A B. Quand le premier de ces circuits est
trouvé, le chercheur connecteur de l'organe qui le termine
au bureau A part à son tour à la recherche de l'abonné
appelant.
Celui-ci est donc mis en relation avec l'opératrice à
travers les deux étages de chercheurs des bureaux A et B.
Sommaire
COMMUNICATION LOCALE OU INTRA-SECTEUR.
Si l'abonné du bureau A demande un autre
abonné de ce bureau, la communication est établie
par l'opératrice à l'intérieur du bureau A,
sur le cordon constitué par le chercheur-connecteur et le
connecteur local de l'équipement de circuit entrant de ce
bureau qui a été choisi.
Des dispositions particulières sont prises dans ce cas, au
bureau B, pour que la sélection de l'abonné demandé
se fasse sur le même circuit A B qui a servi à transmettre
au centre manuel la demande de communication du demandeur.
Dans ces conditions les circuits utilisés entre M et B et
entre B et A deviennent disponibles quand l'opératrice défiche
après avoir établi localement la communication.
Si l'abonné demandeur du bureau A désire
obtenir un abonné du bureau B, la sélection de l'abonné
demandé a lieu de la façon normale et la communication
est établie à l'intérieur du bureau B. En cas
de défichage de l'opératrice, cette communication
n'occupe qu'un circuit entre A et B.
Si l'abonné du bureau A désire
obtenir un abonné du bureau C (ou du bureau D), la communication
est établie à l'intérieur du bureau B et occupera
un circuit AB et un circuitBC (et éventuellement CD).
De même une communication entre un abonné
demandeur du bureau A et un abonné du bureau E, sera établie
dans le bureau A et n'occupera que le circuit AE. Une communication
entre E et F sera établie dans le bureau A et n'occupera
que les circuits EA et AF.
Toutes ces communications, qui sont localisées
à l'intérieur du secteur du bureau B, portent
le nom général de communications intra-secteurs.
EQUIPEMENT , D'ABONNES ET DE CIRCUITS
SORTANTS.
Fig. 5. Groupe de 10
relais d'abonnés
Chaque abonné et chaque circuit sortant
est, comme nous l'avons vu, représenté dans
le meuble automatique par un relais qui remplit les doubles
fonctions d'appel et de coupure.
Ces relais sont montés, comme
le montre la figure 5, sur des platines amovibles qui peuvent
en recevoir au maximum dix.
Pour un meuble du type C à
5o directions l'équipement complet comporte donc
5 platines de 10 relais chacune.
Les quatre premières platines ne comportent que des
relais d'abonnés.
La dernière est une platine de lignes mixtes c'est-à-dire
de lignes qui peuvent à volonté être
affectées soit à des circuits sortants, soit
à des abonnés.
Le câblage intérieur
du bâti est prévu de façon à
ce que, parmi ces dix lignes mixtes, on puisse faire à
volonté par exemple 8 abonnés et 2 circuits,
ou 5 abonnés et 5 circuits, ou 10 circuits, etc.
Une réglette spéciale de broches permet d'effectuer
facilement les mutations de fils nécessaires pour
que tel relais puisse être affecté soit à
un circuit soit à un abonné.
Dans les meubles de petite capacité, le passage,
pour tel relais, d'une affectation à l'autre se fait
simplement en déplaçant un fil entre trois
des broches arrière du groupe de relais.
|
 |
COMPOSITION DES MEUBLES DES DIFFÉRENTS
TYPES.
La gamme actuelle des meubles automatiques ruraux
comporte sept types d'autocommutateurs désignés, d'après
leur importance décroissante, par les lettres A, B, C,
D, E, F et G.
Si l'on ne se place qu'au point de vue du diagramme des liaisons,
ces meubles peuvent être classés en trois catégories
:
1°
Meuble à plus de 100 directions : type A;
2°
Meubles des types B, C et D;
3° Meubles à un seul circuit
entrant : types E, F et G.
La description que nous avons faite du rôle
fonctionnel des autocommutateurs ruraux ayant porté plus
particulièrement sur le meuble du type C, c'est par celui-ci
et par les meubles de la même catégorie, B et D, que
nous allons, contrairement à l'ordre alphabétique,
commencer la revue que nous nous proposons de passer.
MEUBLE du TYPE C.
En rassemblant les éléments divers dont nous avons
parlé précédemment, il est facile de voir que
ce meuble doit comporter :
Un bâti et une platine supportant quelques organes communs
et relais divers;
Deux équipements de circuits entrants mixtes;
Deux équipements de circuits entrants spécialisés;
Un équipement de circuit de réserve;
Quatre groupes de dix lignes d'abonnés;
Un groupe de dix lignes mixtes.
L'emplacement de ces différents organes à l'intérieur
du bâti métallique est indiquée sur la figure
6.
On y remarquera les dispositions suivantes :
Chaque groupe de 10 lignes d'abonnés
(ainsi que le groupe de 10 lignes mixtes) est monté sur une
platine recouverte d'un capot métallique.
Cette platine est fixée sur l'arrière du bâti
par un ensemble jack mâle-jack femelle et est donc facilement
amovible.
Fig. 6. Meuble rural du type C.
Chaque équipement de circuit (circuit entrant
mixte, circuit entrant spécialisé, circuit de réserve)
se compose de deux parties :
1° Un groupe de relais également
protégé par un capot métallique spécial
et monté sur une platine elle-même fixée au
bâti par jacks, et par conséquent aisément amovible
;
2° Un ou deux commutateurs rotatifs (selon
les cas) reportés en haut du bâti.
Les bancs de tous les commutateurs rotatifs
du meuble (il y en a huit au total pour le meuble du type C) sont
tous câblés les uns à côté des
autres à la partie supérieure du meuble.
L'ensemble de ces bancs est monté sur un châssis métallique
qui peut pivoter de 120° environ autour d'une charnière
horizontale et présenter alors à la vue le multiplage
postérieur des bancs.
L'amovibilité des groupes de relais
et le pivotage des organes rotatifs rendent inutile l'accès
sur la face postérieure du meuble qui peut ainsi être
sans inconvénient disposée contre un mur.
Cette disposition, qui s'étend aux autres types de meubles,
doit être soulignée, car grâce à elle,
les autocommutateurs sont peu encombrants et peuvent être
facilement logés dans des locaux exigus.
On se rend compte des difficultés beaucoup plus grandes qui
auraient été rencontrées dans certains bureaux
ruraux pour installer un meuble autour duquel il aurait obligatoirement
fallu réserver un certain espace pour la circulation et l'accès
aux différentes faces.
Naturellement, on ne monte dans un meuble
que le nombre d'organes nécessaires pour assurer le service
normal du bureau.
Les extensions se font de la façon suivante :
1° Extension du nombre de lignes d'abonnés
(ou lignes mixtes) : on ajoute une platine supplémentaire
équipée à 5 ou 10 lignes.
Au cas où la dernière platine déjà en
service ne comporte que 5 lignes, on peut se borner à la
remplacer par une platine équipée pour 10 lignes;
2° Extension du nombre des circuits entrants
: on ajoute le groupe de relais correspondant au nouveau circuit
et on installe, à la place correspondante dans le multiplage
de la partie supérieure du bâti le mécanisme
du commutateur rotatif correspondant (ou les mécanismes des
deux commutateurs nécessaires).
Les meubles des types D et B sont tout à
fait analogues au meuble du type C.
Cette analogie au point de vue des schémas ressort d'ailleurs
de la comparaison des figures 7 et 8 qui représentent les
diagrammes des liaisons des meubles des types B et C.
Au point de vue de la réalisation pratique, elle ressort
également du rapprochement de la figure 6 (meuble type C)
et de la figure 9 (meuble type D).
Les caractéristiques générales
des meubles B et D, et les principaux points qui les différencient
du meuble du type C sont indiquées ci-dessous :
Sommaire
MEUBLE DU TYPE D.
|
Cet autocommutateur est prévu pour
recevoir normalement deux circuits entrants et desservir 40
directions (abonnés ou circuits sortants).
Par application de la règle énoncée
plus haut (nécessité d'avoir au moins deux chercheurs),
les équipements de circuits entrants sont donc des
équipements de circuits entrants mixtes. Il y a en
plus un circuit de réserve.
CM,-CM Groupe de relais de l'équipement
de circuit entrant mixte : 21 relais, 1 commutateur décimal.
CS,-CS2 Groupe de relais de l'équipement de circuit
entrant spécialisé : i4 relais, 1 commutateur
décimal.
GU Groupe de relais de l'équipement de circuit entrant
spécialise ; 21 relais, 1 commutateur décimal.
CC,-CC2-CC. Chercheur connecteur : rotatif 51 pas, 7 balais;
5o directions desservies.
CL,-CLs-CI.i. Connecteur ioc.d : Rotatif
5i pas, 6 balais; 5o directions desservies.
C,-C2 Connecteur : rotatif 51 pas, 6
balais; 5o directions desservies.
Les commutateurs rotatifs au nombre de 6 au
plus sont à 51 pas, mais 40 directions seulement sont
utilisées.
Le meuble comporte enfin trois platines dè
10 lignes d'abonnés et une platine de 10 lignes mixtes.
Fig. 7.
Autocommutateur rural type C. Diagramme des liaisons.
|
 |
 |
Fig. 8. Autocommutateur rural type
B.
Diagramme des liaisons.
CMpCiMj-CJIj. Groupe de relais de l'équipement
de cir- cuit entrant mixte : 95 relais, î commutateur
décimal.
CS,-CS.-CS.. Groupe de relais de ,l'équipement
de circuit entrant spécialisé : 16 relais, 1
commutateur décimal.
CR,-CR.,. Groupe de relais de l'équipement
de circuit de réserve : 25 relais, î commutateur
décimal.
CCpCCj-CCj-CC-CC'. Chercheur correcteur :
commutateur rotatif 51 pas, 10 balais; 100 directions desservies.
CLJ-CL^-CLJ-CL-CL'. Connecteur local : commutateur
rotatif 51 pas, 8 balais; 100 directions desservies.
C,-C.-C,. Connecteur 1 commutateur rotatif
5i pas, 8 balais, 100 directions desservies.
CA. Groupe de relais de l'équipement
de chercheurs auxi!iair<'s : 7 relais.
Ch.-Ch2. Chercheur auxiliaire : commutateur
rotatif Il pas, li balais.
|
 |
Fig. 9. Meuble du type D.
Dimensions : 66 cm. 2 x 2 m. 03 ou 203 cm.
x 32 cm.
1-2. Premier et deuxième équipements
de circuits entrants mixtes.
3. Circuit de réserve.
4. Platinés des relais d'abonnés.
5. Platine des lignes mixtes.
6. Groupe de relais divers.
7. Groupe vibrateur.
8. Relais chronometrique.
9. Chercheurs-connecteurs et connecteurs locaux
associés aux circuits mixtes et de reserve.
10. Ferrure pivotante autour de l'axe pour
permettre l'accès des câblages des organes rotatifs.
|
Sommaire
MEUBLE DU TYPE B.
Cet autocommutateur est prévu pour
recevoir normalement six circuits entrants et desservir 100 directions
(abonnés ou circuits sortants).
Les six équipements de circuits entrants
sont répartis à raison de trois circuits mixtes et
trois circuits spécialisés.
Il y a en plus deux circuits de réserve. Les commutateurs
rotatifs sont à 51 pas, mais, par une disposition usuellement
adoptée en système R. 6, permettent, grâce à
un double jeu de balais, de desservir 100 directions.
Le meuble comporte enfin neuf platines de
1 o lignes d'abonnés et une platine de 10 lignes mixtes.
Il est à noter que, par suite de l'existence
de deux circuits de réserve au lieu d'un, l'aiguillage d'un
circuit entrant vers un circuit de réserve n'est plus assuré
par le fonctionnement d'un relais spécial à l'intérieur
du groupe de relais de l'équipement de circuit entrant mixte.
Cet aiguillage est effectué par l'intermédiaire d'un
chercheur auxiliaire affecté à chaque circuit de réserve.
En plus des organes décrits à l'occasion du-meuble
du type C, le meuble du type B comprend donc, monté sur une
platine amovible, un groupe de deux chercheurs auxiliaires avec
leurs relais.
Signalons enfin que les meubles des types B, C et
D, comme d'ailleurs le meuble du type A qui sera vu plus loin, comportent
une platine amovible portant des relais à usage général
et qui sont :
Un relais pilote ;
Deux relais de signalisation de rupture de petits fusibles;
Deux relais de signalisation de rupture de
fusibles d alimentation ;
Un relais pour le dispositif d'essais à distance.
MEUBLES À UN CIRCUIT ENTRANT.
Les meubles qui ne peuvent recevoir qu'un
seul circuit entrant sont forcément installés dans
des localités de faible importance.
Le trafic local (ou intra-secteur) de ces localités étant
toujours insignifiant, il a paru inutile, pour les meubles de l'espèce,
de prévoir un circuit de réserve.
Le circuit entrant est donc lié à l'équipement
propre du meuble et par conséquent se trouve occupé
en cas de communication locale, même si l'opératrice
du centre manuel a défiché.
Dans ces conditions, le meuble automatique se compose
uniquement :
Du bâti;
D'un équipement de circuit entrant
mixte qui constitue la partie essentielle du meuble ;
Des relais individuels des abonnés
ou des circuits sortants.
Il existe trois types de meubles de ce genre
: E, F et G.
Le meuble du type F (fig. 10) peut
desservir dix directions dont deux circuits sortants.
Fig.
10 -- Diagramme des liaisons.
C.M. : Groupe de relais de l'équipement
de circuit entrant : 18 relais.
C.C. Chercbeur-connecteut'. Commutateur décimal
: Il pas, 5 J'angpes,
C.L. : Connecteur local. Commutateur décimal
: Il pas, k rangées.
|
Fig. 1 1. Meuble du
type F.Dimensions : 50 cm. x 56 x 27 cm.
Le bâti (fig. 11) comprend essentiellement
:
a. Une platine amovible portant
les relais de l'équipement de circuit entrant, ainsi
que ses deux commutateurs rotatifs à 11 pas.
Ces deux commutateurs rotatifs (du type ordinaire des commutateurs
de contrôle des centraux urbains R. 6) jouent respectivement
le rôle de chercheur-connecteur et de connecteur local.
Il est à noter que, par suite de la réduction
à un seul chiffre du numéro des abonnés,
le groupe de relais n'a pas, au contraire
des meubles des types B, C et D, à comprendre un commutateur
rotatif servant de commutateur de contrôle;
b. Une platine amovible portant 8 relais
d'abonnés et 2 relais de lignes mixtes; cette platine
peut d'ailleurs n'être équipée que pour
5 abonnés (lt abonnés plus une ligne mixte).
1. Groupe de relais du circuit entrant.
2. et 3. Chercheur-connecteur et connecteur
local.
4. Relais d'abonnés.
5. Groupe vibrateur qui donne an abonnés
la tonalité spéciale.
6. Relais chronométrique pour essais
à distance.
7. Capot recouvrant les fusibles, bobines
thermiques et jacks d'essais.
|
 |
Le meuble du type E peut desservir jusqu'à
18 directions, dont deux circuits sortants.
La seconde, portant 8 relais d'abonnés (cette platine peut
d'ailleurs n'être équipée que pour 5 abonnés).
 |
Le bâti (fig. 12) comprend essentiellement
:
a. Une platine amovible portant les relais de l'équipement
de circuit entrant ainsi que ses deux commutateurs rotatifs.
Ces commutateurs sont du même type que pour le meuble
du type F, mais comportent un plus grand nombre de balais.
Une disposition particulière du schéma leur
permet de desservir 18 directions;
b. Deux platines amovibles :
La première, exactement semblable
à celle du meuble du type F, portant 8 relais d'abonnés
et 2 relais de lignes mixtes;
Fig. 12. Meuble du type E.
Dimensions : 62 cm. x 56 cm. x 27 cm.
l, Circuit entrant.
2. Première platine d'al)onnés.
3. Deuxième platine d'ai)onnés.
fi. Groupe vibratellr.
5. Relais chronométrique.
6. Panneau des fusibles.
7. Panneau des bobines thermiques.
8. Panneau des jacks d'essai.
|
|
Le meuble du type G
Peut desservir 3 directions, toutes
les trois indifféremment abonnés, cabines ou
circuits sortants.
C'est un meuble tout à relais, ne comportant
par conséquent aucun organe rotatif.
Le bâti ne comprend qu'une seule platine amovible portant
à la fois tous les relais du meuble, relais d'usage
commun et relais d'abonnés.
Comme particularité intéressante,
il y a lieu de noter que ce meuble porte à sa partie
supérieure un capot métallique renfermant en
particulier les organes de protection (éléments
de tête de répartiteurs du type administratif)
du circuit entrant et des trois directions desservies.
Pour des installations de ce genre il est apparu en effet,
que le répartiteur ne devait guère jouer qu'un
rôle de coupure et de protection et qu'il était
avantageux de le réunir à l'autocommutateur
sur un bâti unique.
1. Groupe de relais du circuit entrant et
des abonnés.
1. Relais chronométrique.
3. Groupe vibraleur.
4. Répartiteur.
Fig. 13
Autocommutateur rural type G.
Dimensions : 31 cm. x 38 cm. x 21 cm.
|
 |
Sommaire
MEUBLE À PLUS DE 100 DIRECTIONS.
Par suite de la limitation à 100 points du
champ des organes rotatifs, chercheurs ou connecteurs, la disposition
générale des meubles des types B, C et D ne peut plus
convenir dès que le nombre des directions à desservir
dépasse 100.
On est obligé dans ce cas d'utiliser deux
étages de sélection; on utilise également deux
étages de présélection.
Chaque équipement de circuit entrant
mixte comprend donc, non plus un chercheur-connecteur et un connecteur
local, mais un chercheur-sélecteur et un sélecteur
local.
D'une façon analogue, chaque équipement
de circuit entrant spécialisé comprend un sélecteur.
Ces différents organes, équipés
avec des commutateurs rotatifs à 51 pas, donnent accès
à des jonctions auxiliaires aboutissant sur des organes rotatifs
à 100 directions qui ont, eux, accès aux lignes d'abonnés.
Les organes de ce second étage de sélection sont naturellement
propres à chaque centaine d'abonnés et sont agencés
de façon à pouvoir jouer indifféremment le
rôle de chercheur ou de connecteur.
Ce sont des chercheurs-connecteurs, dont le fonctionnement est placé,
comme toujours en système R. 6 , sous la dépendance
d'un commutateur de contrôle.
Il faut noter cependant que les circuits sortants
sont multiplés directement sur les bancs des sélecteurs
et ne sont ainsi atteints qu'à travers un seul étage
d'organes rotatifs.
Le meuble du type A, conçu sur ce
plan (fig. 14) se compose :
1° D'une première armoire contenant
tous les organes communs, c'est-à-dire : Six équipements
de circuits entrants mixtes;
Six équipements de circuits entrants
spécialisés;
Trois équipements de circuits de réserve;
Trois chercheurs auxiliaires pour circuits
de réserve;
Trois commutateurs de contrôle nécessaires
pour le fonctionnement des chercheurs- connecteurs;
Et enfin, les platines de circuits sortants
: trois platines de 10 relais montés comme des relais de
lignes mixtes.
2° D'autant d'armoires identiques qu'il
y a de centaines d'abonnés à desservir.
Chacune comprend essentiellement 6 chercheurs-connecteurs
et 10 platines de 10 lignes d'abonnés chacune.
La disposition générale de ces
organes dans les bâtis est analogue à celle des meubles
des types B, C, D : tous les groupes de relais sont montés
sur platines amovibles et les organes rotatifs installés
à la partie supérieure du bâti sur châssis
pivotant.
Sommaire
INSTALLATIONS DES CENTRES MANUELS.
Les installations à réaliser dans
les centres manuels pour assurer l'exploitation des circuits ruraux
et leur connexion avec le réseau général, dépendent
bien entendu de la nature du meuble.
Les deux types de bureaux les plus répandus sont :
- Les centres manuels à batterie locale,
équipés avec des standards;
- Les centres manuels à batterie centrale
équipés avec des multiples extensibles.
Les dispositions prévues pour ces deux cas sont les suivantes
:
CENTRES MANUELS À STANDARDS.
Les dicordes des standards ne sont conçus
ni pour donner la supervision des abonnés, ni pour permettre
l'insertion d'un cadran.
On a donc préféré reporter ces différentes
fonctions sur le jack même du circuit rural, ainsi qu'il ressort
d'ailleurs de la description qui a été faite plus
haut.
Les keyboards des tables existantes ne subissent
donc aucune modification; chaque circuit rural est représenté
dans le panneau du meuble par son jack, complété par
deux lampes (une lampe d'appel, une lampe de supervision) et la
clé servant à insérer le cadran sur le circuit.
CM, Groupe de relais de l'équipement de circuit
entrant mixte : 21 relais, 1 commutateur décimal.
CS, Groupe de relais de l'équipement
de circuit entrant spécialisé : 15 relais, 1 commutateur
décimal.
Glî, Groupe de relais de l'équipement
de circuit de réserve : 21 relais, 1 commutateur décimal.
Cs,, ...., Cs.. Chercheur sélecteur :
commutateur rotatif 51 pas, 7 balais; 50 directions desservies.
SI,, ...., SI.. Sélecteur local : commutateur
rotatif 51 pas , 6 balais; 50 directions desservies.
S, Sélecteur : commutateur rotatif 51pas,
6 balais; 5o directions desservies.
CA Groupe de relais de l'équipement de chercheur auxiliaire
: 7 relais.
Cli,, Cl',' Chj. Chercheur auxiliaire ; commutateur
décimal 11 pas, 4 balais.
CC|,...., CCe. Chercheur-connecteur : 6 relais, 1 commutateur rotatif
51 pas, 10 balais, 100 directions desservies.
Ce,, CC21 CC3 Commutateur de contrôle
des chercheurs-connecteurs : 5 relais, 1 commutateur décimal.
Fig. 15. Ébénisterie intercalaire meuble manuel
à batterie locale.
Deux cas ont alors été envisagés selon le nombre
des circuits ruraux desservis et l'importance du trafic.
1° Cas d'un groupe peu important : les
dicordes des deux standards voisins de la position rurale suffisent
pour écouler, avec leur trafic propre, le trafic des circuits
ruraux.
La position rurale n'a pas besoin alors de posséder des dicordes
en propre et peut n'être constituée que par un panneau
de circuits. On installe donc, à côté du standard
existant, ou entre deux des standards de l'installation
(fig. 15), une ébénisterie de même hauteur que
le panneau des standards du type administratif.
Sur ce panneau chaque circuit rural occupe
une réglette qui porte le jack, les deux lampes et la clé
de cadran. Cette clé comporte deux positions de travail correspondant
à deux cadrans : l'un pour l'opératrice de droite,
l'autre pour l'opératrice de gauche.
Afin de supprimer autant que possible la nécessité
d'utiliser des lignes d'intercom- munication entre les deux standards
contigus, la largeur de cette ébénisterie intercalaire
a été réduite au minimum; le panneau ainsi
constitué peut recevoir 21 circuits ruraux répartis
en trois rangées de 7.
On doit d'ailleurs remarquer qu'il n'aurait
pas été très intéressant de disposer
d'une place plus grande, car dès que le nombre des circuits
ruraux dépasse une vingtaine, il est presque toujours nécessaire
de disposer de dicordes supplémentaires et, par conséquent,
d'utiliser la disposition décrite plus loin.
Dans le cas ou le centre manuel n'aurait à
desservir qu'un petit nombre de circuits ruraux, il est prévu
que cette ébénisterie ne comportera qu'une ou deux
rangées équipées (soit 7 ou 14 circuits).
2° Cas d'un groupe important : le trafic
des circuits ruraux ne peut être écoulé entièrement
par les dicordes des positions voisines.
Il est donc nécessaire de doter la position rurale elle-même
d'un certain nombre de dicordes.
Cette position est alors constituée
par une table interurbaine du modèle administratif dans laquelle
le panneau de jacks a été remplacé par un nouveau
panneau comportant les circuits ruraux avec leurs jacks, leurs deux
lampes et leur clé de cadran.
Cette clé est toujours à deux positions et peut servir
à insérer deux cadrans, l'un à droite, l'autre
à gauche de l'opératrice.
L'opératrice de la position rurale et ses deux voisines peuvent
ainsi numéroter sur les circuits ruraux.
L'équipement de ces tables interurbaines
est prévu pour 20, a 25 ou 30 circuits ruraux selon les cas.
En dehors des dispositions à prendre sur
les tables elles-mêmes, l'installation du centre manuel doit
encore comprendre les répétiteurs pour circuits ruraux
et leurs accessoires.
Ces répétiteurs sont de deux sortes :
- Répétiteurs pour circuits mixtes;
- Répétiteurs pour circuits spécialisés.
Les relais de chaque répétiteur, protégés
par un capot, sont montés sur une platine amovible et disposés
par rangées horizontales à l'intérieur d'une
armoire métallique.
Cette armoire contient en plus, toujours monté sur platine
amovible :
1° Un groupe
de deux distributeurs (chacun comportant deux relais et un commutateur
décimal).
Nous avons vu le rôle fondamental joué par le distributeur.
Cet organe n'étant occupé que pendant un très
court instant à chaque appel, il aurait été
théoriquement suffisant de n'en prévoir, sauf cas
exceptionnels, qu'un seul par centre manuel; mais, étant
donné son importance, il a paru nécessaire de prévoir
un organe de secours.
Il n'y a d'ailleurs jamais qu'un seul distributeur en service :
une clé spéciale à deux positions de travail
permet de passer de l'un à l'autre.
La même platine porte encore deux relais pilotes.
2° Une platine comportant les relais du (ou des) poste
d'opérateur.
3° Deux groupes identiques baptisés
«machines d'appels (avec une clé permettant de passer
de l'un à l'autre comme pour le distributeur). Chacun de
ces groupes comporte, avec leurs organes accessoires, les vibrateurs
qui donnent les différentes tonalités nécessaires
: appel, occupation, réponse immédiate.
Sommaire
Il est prévu trois types d'armoires
pour répétiteurs ruraux, selon le nombre des circuits
ruraux que le centre manuel doit desservir :
Une armoire semblable à celle du meuble
rural type D, pour 5 circuits ruraux;
Une armoire semblable à celle du meuble rural type C,
pour a 1 circuits ruraux (fig. 16) ;
Une armoire semblable à celle du meuble rural type B,
pour 3o circuits ruraux.
Fig. 16. Centre manuel. Armoire pour a 1 circuit 
On remarquera que les dispositions ainsi prévues
et le mode d'exploitation qui en découle ne permettent pas
d'exploiter les circuits ruraux en trafic direct; les bureaux à
batterie locale se prêtent d'ailleurs mal à ce genre
d'exploitation qui n'est normalement prévu que pour les multiples.
Pour les quelques bureaux qui comportent un
grand nombre de circuits ruraux et pour lesquels aucun multiple
n'est encore prévu, une disposition comportant le multiplage
des circuits ruraux et l'adjonction de lampes d'occupation pourra
être recherchée.
Sommaire
CENTRES MANUELS À MULTIPLE EXTENSIBLE.
La lampe de supervision et la clé de cadran sont alors
reportées sur le dicorde modifié au besoin à
cet effet.
Les circuits ruraux sont multiplés sur le meuble avec lampe
d'appel et lampe d'occupation, dans les mêmes conditions que
les circuits manuels locaux.
Chaque circuit rural mixte comporte un répétiteur
composé de 12 relais et d'un commutateur décimal.
Ce commutateur, qu'il faut bien se garder de confondre avec le distributeur,
joue simplement le rôle de combineur.
Sa présence, qui n'a pas paru nécessaire dans le cas
d'un centre manuel à standards où chaque circuit rural
comporte son équipement propre (lampe de supervision, clé
de cadran), est utile ici pour caractériser les différentes
phases des communications que l'opératrice a à établir
et qui sont les suivantes :
0 Repos.
1 Prise.
2 Numérotation.
3 Préparation d'appel. à Appel.
5 Conversation.
6 Numérotation.
7 Préparation d'appel
8 (Inutilisé)
9 Appel.
10 Conversation.
Comme dans le cas des standards, il existe
aussi un répétiteur pour circuit rural spécialisé,
plus simple que le précédent, et non représenté
sur le banc du distributeur.
Ces répétiteurs, montés
sur des platines amovibles par rangées de 6, sont groupés
sur un bâti qui peut recevoir 5 de ces travées (3o
circuits). Comme pour les centres manuels à batterie locale,
ce bâti reçoit en plus un ensemble de deux distributeurs
et les groupes d'organes communs : relais et vibrateurs divers.
Les installations à réaliser dans
les centres manuels pourvus de multiples autres que les multiples
extensibles n'ont été étudiées en détail
que pour certains cas particuliers (interurbains R 6, Multiples
Thomson-Houston).
D'une manière générale ces installations seront
traitées de façon analogue à celle que nous
venons de décrire et dont elles ne doivent différer
que par des détails d'exécution secondaires.
Sommaire
PRINCIPES D'EMPLOI DES AUTOCOMMUTATEURS
RURAUX.
Le matériel automatique rural nous étant
connu dans ses grandes lignes, il est possible d'exposer maintenant
les conditions dans lesquelles il est utilisé.
Le principe général qui a guidé
l'Administration dans l'élaboration du programme d'automatisation
des campagnes peut s'énoncer ainsi : assurer aux usagers
un service téléphonique de bonne qualité aux
moindres frais, c'est-à-dire en modifiant aussi peu que possible
la configuration actuelle du réseau et en utilisant au mieux
les installations et circuits existants.
Deux questions principales se posent à
ce sujet :
1° La détermination des centres
manuels;
2° L'étude de la carte des circuits.
Nous allons les examiner successivement.
DÉTERMINATION DES CENTRES MANUELS.
L'organisation du service universel en
France prévoit l'existence d'un certain nombre de bureaux
manuels catalogués sous les noms de centres de transit ou
de centres de groupements. Ces bureaux, qui sont pour la plupart
situés dans des villes ou localités importantes, sont
naturellement des centres manuels de groupe tout indiqués.
Mais une étude détaillée a montré l'intérêt
qu'il y avait, dans bien des cas, à créer, en dehors
de ces bureaux, un certain nombre d'autres centres manuels.
Les raisons qui ont motivé ces créations
sont quelquefois d'ordre technique. Les conditions de résistance
maximum et d'isolement minimum des circuits qui sont requises
pour assurer le fonctionnement satisfaisant des organes automatiques
donnent sans doute une marge de sécurité très
large. C'est ainsi qu'il serait parfaitement possible d'envisager
le fonctionnement de trois autocommutateurs en chapelet à
partir du centre manuel, chacun des quatre bureaux ainsi considérés
étant relié par un circuit de 5o kilomètres
de longueur en fil de cuivre du diamètre normal de 2 millim
5.
Des conditions aussi sévères ne se rencontrent jamais
dans la pratique.
Cependant, dans certains cas, et en particulier
dans les pays de montagne où, pendant de longs mois, l'abondance
des précipitations atmosphériques rend l'isolement
des circuits précaire et leur entretien difficile, on a jugé
nécessaire de se réserver une garantie supplémentaire
et de réduire la longueur des circuits exploités en
automatique.
C'est ainsi, par exemple, que deux centres
manuels de faible importance ont été créés
dans le département de la Drôme à Saint-Jean-en-Royans
et à Buis-les-Baronnies. D'après le plan initial,
ces deux localités et tous les bureaux de leur secteur devaient
être respectivement desservies par les bureaux de Romans et
de Nyons. Cette disposition aurait entraîné la nécessité
d'exploiter en automatique des circuits tels que Romans-La Chapelle-en-
Vercors (67 kilomètres) ou Nyons-Sèderon (63 kilomètres).
Bien que ces distances ne fussent pas incompatibles avec les possibilités
du système, il a paru que l'exploitation de circuits de telle
longueur, dans un pays difficile, serait aléatoire.
La création des deux nouveaux centres manuels, en réduisant
à 42 et à 40 kilomètres la longueur des circuits
automatiques de La Chapelle et de Sèderon, permettra ici
d'assurer l'exploitation dans des conditions certainement plus satisfaisantes.
Cette création pouvait d'ailleurs se
justifier également par des considérations d'ordre
économique qui doivent toujours être prises en considération.
Les dépenses annuelles occasionnées
par l'exploitation automatique rurale peuvent en effet se classer
en trois catégories principales :
1° Les dépenses
relatives aux installations : amortissement et entretien des meubles
et des organes accessoires (batteries, répartiteurs, etc.).
Ces dépenses sont toujours plus élevées, toutes
choses égales d'ailleurs, dans le cas d'un autocommutateur
que dans le cas d'un tableau manuel;
2°
Les dépenses relatives aux circuits;
3° Les dépenses
occasionnées par le personnel d'exploitation : nulles dans
un bureau automatique, ces dépenses peuvent être relativement
importantes dans un centre manuel où, en dehors du service
normal, il faudra assurer, ne l'oublions pas, le service de nuit
et du dimanche.
L'examen du sort à réserver
à un bureau doit donc entrainer une comparaison entre les
charges d'exploitation qui résulteraient des deux solutions
possibles :
a. Installation d'un meuble manuel : charge
supplémentaire de personnel;
b. Installation d,'un meuble automatique :
charges supplémentaires relatives aux installations et aux
circuits.
Arrêtons-nous un instant sur la question des
circuits. Nous avons vu que, du fait de l'enregistrement des appels,
le nombre des circuits nécessaires pour écouler un
trafic déterminé est notablement plus faible que celui
qu'il faudrait envisager dans le cas d'une exploitation entièrement
automatique. Mais, vis-à-vis de l'exploitation manuelle,
cette exploitation semi-automatique avec enregistrement des appels
présente cependant un désavantage marqué :
en cas d'occupation de tous les circuits, les appels en instances
ne peuvent pas être desservis suivant l'ordre chronologique
dans lequel ils se sont produits : un appel déterminé
peut n'être écoulé qu'après plusieurs
autres appels postérieurs.
Afin d'éviter de ce fait des attentes injustifiées,
le nombre des circuits automatiques ruraux doit donc être,
en règle générale, plus largement prévu
que celui des circuits manuels.
La figure 17 montre, en fonction du trafic, quel
serait, suivant les règles admises par l'Administration,
le nombre des circuits à prévoir selon le mode d'exploitation
adopté.
On voit par exemple, que pour un trafic quotidien de 110 unités
de conversation, il faut disposer de :
2 circuits en exploitation manuelle;
3 circuits en exploitation automatique rurale;
4 circuits en exploitation entièrement
automatique.
Fig. 17.
------- Nombre de circuits nécessaires
en exploitation automatique rurale.
- - Nombre de circuits nécessaires en exploitation
manuelte.
........ Nombre de circuits nécessaires en exploitation automatique
intégrale. (Concentration : 1/7; probabilité de perte
: 1/300.)
Dans bien des cas, l'installation d'un meuble
automatique rural devra donc s'accompagner de la construction de
nouveaux circuits, et le nombre des circuits à construire
ainsi peut se trouver encore augmenté :
a. Du fait de la nécessité de
remplacer les circuits combinés, impraticables avec l'exploitation
en courant continu actuellement utilisée sur les circuits
ruraux.
Cette obligation disparaîtra d'ailleurs dans une large mesure
lorsque les dispositifs de sélection à courant alternatif,
actuellement à l'étude, auront été mis
au point;
b. Du fait de la suppression des liaisons
transversales, ou tout au moins de la diminution de rendement qu'elles
subissent. Nous aurons l'occasion de revenir plus loin sur cette
question.
Ajoutons enfin que l'obligation de ne disposer que
trois bureaux automatiques au maximum en chapelet impose quelquefois
la construction d'un nouveau circuit afin de relier directement
à un bureau antérieur un réseau qui se trouvait
en quatrième position à partir du centre manuel.
Nous voyons donc au total que, fréquemment,
et surtout pour les gros bureaux, l'installation de l'automatique
rural entraînera, du fait de la construction de circuits supplémentaires,
des frais qui peuvent être très importants.
Mais inversement la création d'un nouveau centre manuel entraînera
des frais de personnel supplémentaires :
a. Du fait de la nécessité d'assurer un service permanent
dans un bureau où le trafic est négligeable la nuit;
b. Du fait des transits supplémentaires qui, à n'importe
quelle heure de la journée, peuvent ainsi être occasionnés
pour un certain nombre de communications.
Ce dernier point, qui est particulièrement important, demande
d'ailleurs à être précisé.
Comparons en effet le cas des deux bureaux A et A' (fig. 18), tous
deux reliés à un centre manuel M, mais dont le second,
à l'inverse du premier, est également relié
à un autre centre manuel M'.

A partir du moment ou le bureau A' sera automatique,
le circuit (ou les circuits) M' A' ne jouera plus qu'un rôle
secondaire, et en particulier tout le trafic de A' à destination
de M' devra transiter par le bureau M. Il en résulte que
:
1° La création
d'un centre manuel en A entrainera obligatoirement un transit supplémentaire
pour toutes les communications qui sortent du secteur A;
2° La création d'un centre manuel
en A' entraînera bien un transit supplémentaire pour
toutes les communications entre le secteur A' et les bureaux que
A' obtient normalement par l'intermédiaire du bureau M, mais
supprimera en revanche un détour important
pour toutes les communications entre A' et le bureau M' ou les bureaux
que A' obtient normalement par l'intermédiaire de M'.
Ces considérations sont donc de nature
à favoriser la création d'un centre manuel en A' et
à la défavoriser en A.
De tout ce qui précède il résulte
que chaque bureau tant soit peu important doit faire l'objet d'un
examen particulier et d'une comparaison d'ordre économique
entre les deux solutions, manuelle ou automatique.
Autant de bureaux, autant de cas d'espèce : il est donc impossible
d'énoncer à ce sujet des règles précises.
On peut cependant dire, d'une façon tout à fait générale,
que le nombre des abonnés du bureau considéré
ne joue qu'un rôle secondaire.
Les éléments principaux résident dans l'importance
du trafic local et surtout dans celle du trafic existant entre ce
bureau et les divers centres manuels auxquels il peut être
directement relié.
Pour illustrer ce qui précède, nous
citerons, par exemple, les deux cas concrets suivants :
a. Bureau d'Aixe-sur- Vienne (groupe deT Limoges,
Haute-Vienne). 94 abonnés.
Ce bureau a la presque totalité de son trafic orienté
vers Limoges : la création d'un centre manuel aurait donc
amené un transit supplémentaire pour presque toutes
les communications. De plus, Aixe étant à une faible
distance de Limoges (moins de 12 kilomètres),
la construction de nouveaux circuits sera relativement peu onéreuse.
Aixe sera donc équipé avec un autocommutateur rural
relié à Limoges.
b. Bureau de La Voulte-sur-Rhône (Ardèche).
à 41 abonnés. A mi-chemin de Valenêe et de Privas,
ce bureau, qui groupe par ailleurs autour de lui un certain nombre
d'autres réseaux, voit son trafic partagé sur ces
deux directions selon des proportions comparables.
Au lieu d'en faire un autocommutateur relié à Privas,
on en à fait un centre manuel qui aura des liaisons directes
avec Privas et Valence. Ainsi les communications entre Valence et
La Voulte n'auront plus à passer par Privas.
Sommaire
CARTE DES CIRCUITS.
Les centres manuels étant déterminés,
il faut ensuite établir, à l'intérieur de chaque
groupe, la carte du réseau des circuits qui vont relier les
différents bureaux automatiques au centre manuel.
La plupart du temps les liaisons seront conservées
telles qu'elles existent déjà.
On doit cependant tenir compte des considérations suivantes
:
1° Il y a intérêt à
relier chaque autocommutateur directement au centre manuel, ou,
tout au moins, à diminuer le nombre des intermédiaires
automatiques. On diminue ainsi d'autant les causes de dérangement
et les probabilités d'occupation des circuits;
2° Un bureau important ne devra pas, autant
que possible, être placé en seconde (et a fortiori
en troisième) position, surtout si le bureau intermédiaire
est de faible importance. Cette disposition est défectueuse
parce qu'elle fait dépendre d'un petit bureau le service
d'un gros, et parce qu'elle conduit à prévoir pour
le bureau de transit un équipement hors de proportion avec
ses propres besoins.
En particulier dans le cas où l'on trouve,
échelonnés en venant du centre manuel :
a. Un bureau X sans abonnés (ne desservant qu'une cabine
locale) ;
b. Un bureau Y desservant quelques abonnés.
il pourra être intéressant de
construire une seconde section de circuit X Y afin de relier X au
centre manuel par l'intermédiaire de Y.
Cette mesure aura en effet ici l'avantage de supprimer toute installation
dans le bureau X, avantage particulièrement intéressant
si ce bureau dessert une localité de très faible importance
où aucun abonné n'est à prévoir pour
le moment.
Les directives précédentes amèneraient,
au cas où elles seraient trop rigoureusement appliquées,
à constituer un groupe dans lequel la plupart des bureaux,
et en particulier tous les bureaux importants, seraient directement
reliés au centre manuel, et dans lequel les circuits sortants
d'un bureau quelconque ne desserviraient que des bureaux d'importance
moindre. Il est bien évident que ce groupe cridéal»
ne pourrait être réalisé
qu'au prix de la construction d'un nombre considérable de
circuits nouveaux.
Là encore, il faudra donc faire la critique de chaque cas
particulier et prendre une décision qui concilie au mieux
les intérêts du service et ceux du budget.
Sommaire
DÉTERMINATION DE L'ÉQUIPEMENT DES
MEUBLES RURAUX.
Une fois la carte des circuits établie,
il reste à fixer les caractéristiques de l'installation
à réaliser dans chaque bureau, et c'est chose plus
facile.
Les éléments qui sont à
considérer à ce point de vue sont le nombre des directions
à desservir et le trafic à écouler.
Le nombre des abonnés, des cabines et des
circuits reliés au bureau considéré est facile
à connaître.
Le trafic l'est.moins; d'abord parce qu'il est souvent variable
d'une saison ou d'une journée à l'autre, et surtout
parce que les modifications qui ont pu être apportées
à la carte du réseau exerçent sur lui une grosse
influence.
Il y a donc lieu d'exercer une critique serrée sur les renseignements
statistiques dont on dispose et de faire, au besoin, des discriminations
qui ne sont pas toujours très aisées, pour arriver
à déterminer avec une approximation suffisante le
trafic qu'aura à écouler l'installation lorsque tout
le groupe sera équipé en automatique rural.
Ces données nombre des abonnés,
trafic sont, on le sait, celles qui servent de bases aux
projets des autocommutateurs urbains.
Mais alors que, pour ceux-ci, il est possible de déduire
de la connaissance des accroissements constatés pendant les
années précédentes, l'accroissement à
escompter pour les années futures, et par conséquent
la capacité à donner à l'installation, de telles
prévisions sont impossibles pour les réseaux ruraux
qui sont de trop faible importance pour que joue la loi des grands
nombres.
Pour la même raison, le calcul des probabilités est
inutilisable pour déterminer le nombre des organes à
prévoir.
Sauf cas tout à fait particuliers, on a donc
été obligé d'admettre une règle unique,
approchée, qui n'a d'autre mérite que d'être
simple et il y paraît tout au moins jusqu'à
présent suffisante : on admet que la capacité
de l'autocommutateur doit être calculée de façon
à permettre une augmentation au moins égale à
50 p. 100 sur le nombre des abonnés et sur le trafic.
Une fois que la capacité du meuble a été
ainsi déterminée, le nombre des équipements
de circuits ou d'abonnés dont on va le doter au début
s'impose presque immédiatement : comme on l'a vu, tous les
organes essentiels sont amovibles et par conséquent il est
extrêmement facile d'en ajouter de nouveaux.
Le nombre des équipements d'abonnés (ou de lignes
mixtes) est donc fixé au plus juste de façon à
permettre de desservir avec une très légère
marge et en évitant toute dénumérotation
inutile les abonnés, cabines ou circuits existants.
Le nombre des équipements de circuits entrants
est égal à celui des circuits en service, étant
entendu qu'on s'arrange pour que le nombre des circuits mixtes soit
toujours au moins égal à celui des circuits spécialisés,
avec minimum de deux.
Quant aux équipements de circuits de réserve,
leur nombre peut être au plus égal à trois,
pour les meubles du type A.
Dans la plupart des cas, étant donné la faible importance
du trafic local, on n'en installera qu'un, quelquefois deux, souvent
pas du tout : le choix est fixé d'après l'importance
du trafic local quand on peut le connaître avec assez de certitude,
et aussi d'après la valeur du trafic total qui donne en effet
une indication sur la probabilité plus ou moins grande qu'il
y a à trouver tous les circuits entrants occupés simultanément.
Sommaire
REMARQUES SUR L'ORGANISATION GENERALE DU RESEAU.
De ce qui vient d'être exposé,
il ressort que l'automatique rural s'applique au réseau français
existant avec beaucoup plus de souplesse que le ferait l'automatique
intégral.
Mais il n'en reste pas moins que, vis-à-vis
de l'exploitation entièrement manuelle, l'organisation, telle
qu'elle a été décrite jusqu'à présent,
présente une rigidité relative, regrettable à
certains points de vue : toutes les communications intéressant
un bureau tant au départ qu'à l'arrivée, requièrent
en effet obligatoirement l'intervention du centre manuel, celui-ci
étant le point de passage obligé de tout le trafic.
Cette particularité, qui présente les avantages que
l'on sait au point de vue de la permanence du service, offre l'inconvénient
d'un point particulièrement vulnérable : tout le trafic
du groupe avec l'extérieur est interrompu, si le centre manuel
à ses liaisons coupées.
Dans des cas analogues, l'exploitation manuelle
permettait l'utilisation de voies détournées, ou voies
de secours, qui n'existent pas en principe dans l'exploitation automatique
rurale où tous les circuits convergent vers le centre manuel.
L'Administration a eu son attention justement attirée
sur cette question et s'est préoccupée, dans toute
la mesure du possible, de créer ou de maintenir des jonctions
transversales reliant un groupe à l'autre en dehors des circuits
qui peuvent directement unir les deux centres, et d'éviter
ainsi autant qu'elle le pouvait un compartimentage trop accusé
et nuisible à la sécurité du service.
On a vu déjà à ce sujet que
l'installation d'un centre manuel était favorablement envisagée
toutes les fois que le bureau considéré se trouvait
relié à deux ou plusieurs autres centres. Plus il
y aura de centres manuels en effet, mieux le réseau pourra
être articulé sur plusieurs directions et moins il
sera vulnérable.
Mais cette mesure ne peut évidemment être
envisagée qu'à titre exceptionnel. Dans le cas où
un bureau automatique se trouverait disposer d'une liaison avec
un bureau appartenant à un autre groupe on adopte alors l'une^des
dispositions suivantes (fig. 19):
1° Cas d'un bureau A relié
du centre manuel M' d'un autre groupe. Si le trafic est suffisamment
important, le circuit M'A est équipé en A comme un
circuit entrant spécialisé : il permet donc à
l'opératrice de M' d'appeler directement les abonnés
du bureau A ou de son secteur.
Si le trafic est trop faible, le circuit M'A
est équipé en A comme une ligne d'abonné et
en M' comme un circuit manuel : il permet ainsi à l'opératrice
de M d'appeler le bureau M' par la voie détournée
MAM'. et inversement;
2° Cas d'un bureau B
relié à un bureau automatique C appartenant à
un autre groupe. Si le trafic est suffisant, on équipe
en B et en C le circuit BC comme un circuit spécialisé
entrant : il permet alors à l'opératrice de M d'établir,
à l'intérieur du bureau B, des communications
du type intra-secteur entre les abonnés des bureaux B et
C ou de leurs secteurs. L'opératrice de M' jouit de la même
faculté à l'intérieur du bureau C.
C'est ainsi par exemple que sera exploité
le circuit reliant Hérisson du groupe de Montluçon
à Cérilly du groupe de Bourbon-l'Archambault.
On remarquera que cette disposition est également
possible entre deux bureaux B et A appartenant au même groupe.
Si le trafic est trop faible, le circuit BC
est équipé à ses deux extrémités
comme une ligne d'abonné et permet ainsi aux opératrices
de M et M' de correspondre par la voie MBCM'. C'est ainsi que seront
exploités par exemple les circuits Saint...Désiré-
Vesdun et Marcillat-Pionsat .
Ces dispositions permettent de pallier dans une
grande mesure les inconvénients signalés plus haut.
Il n'est pas inutile d'indiquer non plus à ce sujet que,
pour éviter d'avoir à assurer
un service permanent manuel dans des bureaux relativement peu importants,
l'Administration étudie la création de centres semi-permanents
où le service serait manuel pendant le jour et automatique
pendant la nuit.
Une exploitation de ce genre déjà utilisée
dans quelques bureaux de la région de Paris ou de Rouen
présenterait un intérêt évident dans
le cas de certains bureaux actuellement prévus comme centres
manuels.
Elle pourrait également s'appliquer au cas de quelques gros
bureaux automatiques, et contribuerait ainsi à augmenter
encore la souplesse de l'exploitation.
Sommaire
DISPOSITIONS PRISES EN VUE DE LA SIGNALISATION
DES DÉRANGEMENTS ET DE L'ENTRETIEN.
Les autocommutateurs ruraux sont naturellement
d'un fonctionnement plus délicat que les anciens tableaux
manuels.
Leur entretien préventif et le relèvement des dérangements
qui peuvent s'y produire, considérablement facilités
d'ailleurs par l'amovibilité de tous les organes principaux,
sont assurés par un vérificateur qui a à sa
charge une certaine zone, composée par exemple d'un, de deux
ou de trois groupes suivant leur importance. Ce vérificateur
est doté des moyens de transport rapide (automobile) indispensables
pour lui permettre d'accomplir sans perte de temps ses tournées
d'entretien et.pour relever rapidement les dérangements.
Il y a un intérêt évident à
réduire autant que possible le chemin parcouru par cet agent
et à éviter en particulier tout déplacement
inutile.
Or on doit remarquer qu'un dérangement, signalé par
le receveur d'un petit bureau, peut affecter soit le poste de l'abonné
auquel cas c'est au monteur à intervenir soit
la ligne ou le circuit auquel cas c'est à l'agent
des lignes à entrer en jeu soit enfin le bureau automatique
qui est lui, du ressort du vérificateur. Si l'on veut éviter
de mettre en route simultanément ces trois agents et de faire
perdre ainsi à deux d'entre eux, en général,
un temps précieux, il est donc indispensable de disposer,
au centre manuel du groupe, d'un moyen de faire à distance
l'essai des circuits et des lignes afin de localiser le défaut.
Dans les centres manuels équipés
avec des multiples, la table d'essai existante reçoit les
adjonctions nécessaires dans ce but.
Dans les centres manuels à batterie
locale, ou rien de tel n'existe en principe, c est à la même
nécessité que correspond l'installation d'un petit
tableau d'essais spécialement prévu dans ce but et
qui permet d'ailleurs d'essayer au voltmètre aussi bien les
circuits manuels que les circuits automatiques.
Ce tableau comporte essentiellement :
les jacks des circuits automatiques
ruraux (et manuels) ;
un voltmètre;
les clés de manuvre et
les organes accessoires du cordon ;
un monocorde pour la prise du circuit;
un cadran d'un type spécial
différent du cadran normal en ce qu'il comporte onze trous
et peut ainsi envoyer une série de 11 impulsions consécutives.
Le onzième trou reçoit l'indicatif E (essais).
Pour faire l'essai d'une ligne d'abonné
rural, il est nécessaire que cette ligne soit reliée
métalliquement au cordon d'essai. Il faut donc que dans chaque
autocommutateur traversé pour obtenir cet abonné,
une manuvre particulière mette complètement
hors circuit le pont qui se trouve normalement sur le circuit de
conversation.
Cette manuvre peut être commandée à distance
à partir du centre manuel de la façon suivante :
Pour essayer la ligne d'un abonné appartenant
à un réseau A situé par exemple en deuxième
position, et atteint par conséquent à travers un autre
autocommutateur B, on enfiche le monocorde d'essai dans le jack
d'un circuit vers le bureau B, et on compose au cadran de la façon
habituelle le numéro de l'abonné voulu. Puis, après
une manuvre de clé convenable, on envoie au cadran
la lettre E (onze impulsions) autant de fois que l'on doit traverser
de bureaux pour atteindre l'abonné, deux fois en l'espèce.
Dans chaque bureau rural successif, ces onze impulsions ont pour
effet d'actionner un relais spécial qui court-circuite le
pont d'alimentation. A la fin de cette série de manuvres,
la ligne de l'abonné est donc connectée métalliquement
au cordon d'essai, et les essais au voltmètre peuvent être
effectués de la façon ordinaire.
L'essai d'un circuit se fait d'une façon
analogue, en composant d'abord le numéro du circuit voulu,
puis en envoyant l'indicatif E autant de fois qu'il y a d'autocommutateurs
intéressés (deux fois pour un circuit reliant les
bureaux B et A précédemment pris comme exemple).
Cette disposition entraîne évidemment
l'adjonction dans chaque autocommutateur d'un relais de commande
à distance. Mais il faut observer de plus que la pseudocommunication
ainsi établie doit être rompue à la fin de l'essai.
Pour arriver à ce résultat, on monte dans chaque meuble
un appareil spécial appelé relais chronométrique
dont le rôle est de couper automatiquement la communication
et de libérer les organes en prise au bout d'un temps réglable
à volonté entre 1 et 12 minutes, et égal par
exemple à 3 minutes, temps suffisant pour faire l'essai.
L'adjonction d'un relais chronométrique
sur chaque équipement de circuit entrant ayant été
jugée inutile, cet organe n'est monté que sur le premier
circuit entrant dans les meubles qui peuvent en comporter plusieurs.
L'emplacement de ce relais est nettement visible sur les figures
données plus haut.
Il est à noter que ce relais chronométrique
pourrait également être utilisé sans difficulté
pour limiter la durée des communications locales. Ce mode
d'utilisation serait susceptible de rendre
certains services dans le cas où l'on constaterait que les
pratiques de tel ou tel abonné d'un meuble desservi par un
seul circuit entrant (types E, F et G) provoqueraient un embouteillage
du trafic.
Sommaire
ESSAI À DISTANCE DE LA TENSION DES BATTERIES
D'ALIMENTATION.
Les batteries d'alimentation des meubles
ruraux n'étant pas surveillées sur place, il y a le
plus grand intérêt à s'assurer fréquemment
de leur état en mesurant leur tension. Une bonne précaution
consiste à faire cette mesure chaque matin à partir
du centre manuel; 'le mode opératoire est le suivant :
Sur le fil a d'une ligne d'abonné inoccupée,
on branche à demeure au rural la batterie d'alimentation.
A partir du tableau d'essais du centre manuel, on numérote
alors de la façon ordinaire pour obtenir cet abonné.
On obtient ainsi sur le fil de ligne a la batterie-d'alimentation
du rural dont on peut mesurer la tension au voltmètre.
Au cas où aucune,ligne d'abonné
n'est disponible au bureau rural, on peut encore procéder
de la façon suivante : à partir du tableau d'essais,
on compose le numéro de la cabine du bureau considéré;
puis, après une manuvre de clé spéciale
qui a pour effet de mettre fictivement l'organe du bureau rural
en position de communication locale, on compose de nouveau le numéro
de la cabine; le connecteur local qui est alors actionné,
trouve la ligne de la cabine en position d'occupation : dans cette
position la batterie d'alimentation est directement connectée
à un des fils de ligne et sa tension peut être mesurée
au voltmètre. A noter que pour pouvoir effectuer cette mesure,
le fil d'essai doit être prolongé métalliquement
jusqu'à la ligne de cabine et que, pour ce faire, celle-ci
ne doit pas être sonnée.
SIGNALISATION À DISTANCE DES RUPTURES
DE FUSIBLES.
Les fusibles d'alimentation des différents
organes de chaque autocommutateur sont placés d'une manière
générale à la partie supérieure de la
face avant du meuble comme on peut le voir en particulier sur la
figure 12. La rupture d'un de ces fusibles actionne une sonnerie
locale, mais elle provoque de plus une alerte au centre manuel dans
les conditions suivantes :
1° Dans le cas où le fusible sauté
ne concerne qu'un des équipements de circuit ou une dizaine
d'abonnés (interruption partielle du service du meuble),
un groupe de deux relais spéciaux fonctionne et provoque
l'envoi d'un appel vers le centre manùel. L opératrice
qui y répond, ne trouve personne en face d'elle et interprète
l'appel comme une signalisation de dérangement.
2° Dans le cas où le fusible sauté
concerne les relais communs du meuble (interruption totale du service)
un autre groupe de deux relais fonctionne et provoque à la
fois :
a. La connexion de la cabine locale sur le premier circuit;
b. L'envoi d'un appel vers le centre manuel.
L'opératrice qui répond à
cet appel se trouve en présence de la cabine dont le gérant
déclare naturellement n'avoir pas appelé; l'opératrice
interprète alors la chose comme la signalisation d'un dérangement
grave.
Il est à noter que cette disposition
permet en outre d'établir par l'intermédiaire de la
cabine locale une liaison de secours avec le centre manuel.
TRAVAUX DIVERS QUI ACCOMPAGNENT L'INSTALLATION
DES AUTOCOMMUTATEURS RURAUX.
Nous avons déjà signalé
que, en dehors de l'installation des meubles ruraux proprement dits,
la mise en service de l'automatique rural dans une région
devait être précédée, en général,
de la construction d'un certain nombre de circuits supplémentaires.
Mais là ne se bornent pas les travaux de mise en état
du réseau.
Sans doute le fonctionnement des organes automatiques
ruraux n'exige-t-il par pour les lignes ou les circuits, des conditions
d'isolement et de résistance aussi sévères
que dans le cas des réseaux automatiques urbains : les microphones
des abonnés continuent à être alimentés
localement, les circuits et les lignes ne sont pas en permanence
sous tension, toutes choses qui permettent de s'accommoder de l'état
souvent assez précaire dans lequel se trouvent les réseaux
des petites localités.
Il est bien certain pourtant que ce réseau
est plus fragile qu'en exploitation entièrement manuelle
: les boucles en particulier, ou les mises à la terre plus
ou moins franches, sont à redouter par suite de l'occupation
injustifiée des organes qu'elles entraînent et des
perturbations qu'elles risquent d'apporter ainsi dans l'écoulement
du trafic normal.
La transformation d'un réseau manuel en réseau
automatique rural doit donc s'accompagner d'une révision
aussi poussée que possible des lignes et des postes. Les
installations d'abonnés doivent être vérifiées
et, dans le cas d'installations trop vétustes ou trop humides,
réalisées entièrement en câbles sous
plomb. Les entrées de postes doivent être refaites,
les artères aériennes suivies et remises en état,
les élagages activement surveillés.
Les postes d'abonnés conservent leur alimentation
microphonique locale, mais, afin de transmettre au central manuel
la supervision des manuvres du crochet commutateur,
il faut ajouter un condensateur sur le circuit de sonnerie. Les
sonneries trem- bleuses doivent également, le cas échéant,
être remplacées par des appels magnétiques.
Les anciens répartiteurs, malgré leurs
qualités de simplicité et de robustesse, n'offrent
qu'une protection insuffisante, étant donné surtout
le développement du réseau d'électrification
des campagnes. Leur remplacement par les répartiteurs nouveau
modèle, à 7, 1 A et 28 paires devra donc en principe
accompagner l'installation des autocommutateurs.
Il faut d'autre part pourvoir à l' alimentation
des nouvelles installations, On sait que les standards manuels ne
demandent comme source d'énergie que des batteries de piles
de faible importance.
Les autocommutateurs ruraux doivent au contraire être alimentés
dans les conditions suivantes :
dans chaque bureau automatique, par
une batterie d'accumulateurs de 24 volts, d'une capacité
variable suivant l'importance du bureau;
au centre manuel, par une batterie
d'accumulateur d'une capacité assez importante (de l'ordre
de 5o ampères-heure par exemple) donnant une tension négative,
et par une deuxième batterie nettement moins importante (pouvant
même être constituée par des piles) donnant une
tension positive. Les tensions de ces deux batteries sont de 2 A
volts dans le cas des centres manuels à batterie locale et
de A 8 volts dans les autres cas.
L'installation de chaque meuble rural devra donc
être obligatoirement accompagnée de l'installation
d'un petit atelier d'énergie qui comportera en général,
dans le cas des localités qui possèdent une distribution
d'énergie électrique à courant alternatif :
une batterie d'accumulateurs;
un redresseur du type à
cupoxyde ou au sélénium alimentant en permanence
(suivant la méthode dite du ccfloating») la batterie;
enfin un branchement d'énergie
avec compteur.
Dans le cas, assez peu fréquent heureusement,
des localités qui ne possèdent pas de distribution
d'électricité, ou qui sont alimentées en courant
continu, on doit utiliser une batterie de piles, ou encore un groupe
convertisseur pour abaisser la tension du courant continu.
L'emploi des piles peut d'ailleurs également être envisagé
de façon systématique dans le cas des tout petits
bureaux.
La liste des aménagements de toute nature
qui doit précéder la mise en service d'un groupe automatique
rural ne serait enfin pas complète si nous oubliions de rappeler
les travaux d'adaptation des centres manuels, déjà
mentionnés, et de signaler également les travaux de
bâtiments qui peuvent parfois être rendus nécessaires,
soit par le transfert de l'installation, soit par son agrandissement,
soit enfin du fait de la construction d'un atelier, voire d'un garage,
pour le vérificateur chargé de l'entretien.
On voit donc, par cette revue rapide, combien la
généralisation de l'automatique rural entraîne
de travaux divers. L'Administration a dû recruter, pour les
mener à bien, un personnel supplémentaire assez important,
et, dans les circonstances économiques actuelles, cet aspect
de la question valait d'être souligné.
Sommaire
CONCLUSION.
Telle est, dans ses grandes lignes, l'organisation
qui doit permettre d'apporter une amélioration capitale dans
le service téléphonique des campagnes en donnant aux
usagers un service téléphonique rapide et permanent,
et en leur assurant également avantage fort apprécié
le secret de leurs communications vis-à-vis des téléphonistes
locales.
Est-ce à dire que cette organisation ne soit
pas perfectible ?
Certainement non. Les services de l'Administration poursuivent avec
activité, en liaison avec les constructeurs de matériel
téléphonique, la réalisation d'un certain nombre
de perfectionnements : nous avons déjà mentionné
la question des centres semi-permanents, celle aussi de la sélection
à courant alternatif qui doit pouvoir procurer des économies
sérieuses d'exploitation.
Nous signalerons également la question des dispositifs de
raccordements collectifs dont la mise au point en liaison avec les
autocommutateurs ruraux pourra peut-être permettre d'assouplir
plus encore dans certains cas l'organisation actuelle. Bref on peut
être assuré que l'Administration ne néglige
aucun effort en vue d'assurer dans les campagnes un service téléphonique
aussi parfait que possible avec des charges financières réduites
au minimum.
Sommaire
ANNEXE I NOTE RELATIVE A LA DÉTERMINATION
DE LA CAPACITÉ DES MEUBLES RURAUX.
La gammç des meubles automatiques ruraux
du type R. 6 est la suivante :
Chaque meuble est, on le voit, essentiellement
déterminé par deux éléments :
1 ° Le nombre "a" des circuits
entrants, fonction du trafic;
2° Le nombre "b" des directions
desservies, fonction du nombre des abonnés, dec cabines et
des circuits sortants.
En règle générale, les nombres a et b augmentent
simultanément.
Mais il est intéressant de remarquer que le rapport b/a peut
être très variable, non seulement du fait que les usagers
de telle région font du téléphone un usage
plus fréquent que ceux de telle autre, mais aussi parce qu'un
circuit écoule en moyenne un trafic beaucoup plus fort qu'une
ligne d'abonné : par conséquent, si l'on considère
deux meubles desservant par exemple vingt directions chacun, mais
dont le premier dessert vingt abonnés et le second quinze
abonnés et cinq circuits, le trafic du second doit être
très supérieur à celui du premier.
Comme, d'autre part, le mode d'utilisation
des autocommutateurs ruraux exige que le nombre des types de meubles
soit réduit au strict minimum, de façon à diminuer
le prix de revient et à faciliter l'entretien et les extensions,
la fixation de la gamme de ces meubles posait un problème
assez particulier : il s'agissait de déterminer un nombre
restreint de types, en fixant leurs caractéristiques essentielles
(nombre de circuits entrants et nombre de directions desservies),
de façon à ce qu'ils puissent s'adapter aussi étroitement
que possible à tous les cas rencontrés dans la pratique.
Sans doute, du fait de l'amovibilité des
organes principaux, les meubles ruraux du type R.6 peuvent-ils s'adapter
assez facilement aux différents cas possibles. Mais il n'en
reste pas moins qu'une partie importante de l'autocommutateur
bâti, câblage, organes fixes est complètement
indépendante des équipements partiels auxquels elle
est amenée à servir de support.
Cette partie fixe. dont le prix correspond à ce que l'on
peut appeler tries frais généraux du meuble, est assez
importante pour que l'on porte une attention toute spéciale
à la façon dont elle est utilisée, et pour
que son importance ne soit pas, par conséquent, disproportionnée
au nombre des équipements amovibles.
Or, si l'on analyse les différents éléments
qui rentrent dans la constitution d'un meuble rural, on constate
que les organes les plus coûteux et les plus encombrants sont
les organes d'usage commun : circuits entrants, circuits de réserve,
etc.
La quote-part que l'on pourrait attribuer à ces organes dans
les frais généraux de l'autocommutateur, est donc
prépondérante.
D'où cette idée que les caractéristiques de
chaque type de meuble doivent être déterminées
en se fixant d'abord l'importance des organes communs, c'est-à-dire
en pratique, le nombre des circuits entrants, et en déterminant
ensuite les autres catégories d'organes, et en particulier
le nombre des relais d'abonnés, de façon à
assurer aux premiers le rendement maximum.
Le raisonnement à tenir doit donc être
le suivant :
1° Désigner
arbitrairement chaque type de meuble par le nombre maximum de circuits
entrants : a, 3, 4, 6, 8, 10, 12 par exemple;
2° Pour chacun d'eux, par exemple pour
le meuble qui doit recevoir au plus "a" circuits entrants,
déterminer empiriquement le nombre maximum d'abonnés
ou mieux de directions, dont le trafic peut être écoulé
par « a » circuits, en éliminant naturellement
les cas trop manifestement extrêmes ;
3° Assouplir les résultats obtenus
en arrondissant les chiffres trouvés d'après la capacité
des commutateurs rotatifs utilisés pour la sélection.
C est ainsi que des pointages effectués sur
plusieurs départements, en prenant pour base du calcul des
circuits les chiffres indiqués par la circulaire administrative
n° 770G du 5 août 1981, ont permis de faire les constatations
suivantes.
Il arrive très fréquemment qu'un
réseau desservi par un seul circuit ne desserve que des abonnés,
à l'exclusion de tout circuit sortant.
Dans ces conditions, on constate souvent que le doublement de ce
circuit ne s'avère nécessaire qu'à partir du
moment où le réseau compte quinze ou seize abonnés
;
Il arrive assez fréquemment qu'un réseau
desservi par deux circuits ne desserve que des abonnés, ou
tout au plus, un ou deux circuits sortants de faible importance.
Dans ces conditions, on constate souvent que le troisième
circuit ne devient nécessaire que lorsque le nombre des abonnés
dépasse trente-cinq ;
Un bureau desservi par trois ou quatre circuits
est, la plupart du temps, un centre de secteur assez important;
le nombre des circuits sortants peut être assez élevé,
six, sept, huit au plus.
Dans ces conditions, il arrive souvent qu'un cinquième circuit
entrant soit nécessaire, alors que le nombre des abonnés
ne dépasse pas soixante ou soixante-cinq.
En conséquence, la Compagnie des Téléphones
Thomson-Houston a été invitée à rechercher
quelles étaient au point de vue technique, les réalisations
les plus économiques qui pouvaient être envisagées
dans le cadre des résultats ainsi mis en évidence.
C'est ainsi qu'à côté du meuble
primitif (type F) à dix directions et à un seul circuit
entrant, qui a été conservé pour sa simplicité,
ce constructeur a proposé une disposition spéciale
du schéma qui pouvait permettre, avec des organes à
peu près identiques, de desservir jusqu'à dix-huit
directions. En raison de la proximité de ce nombre avec le
nombre «idéal» de 1 5, indiqué plus haut,
et aussi parce que le prix de revient du meuble aurait été
sensiblement le même pour quinze directions que pour dix-huit,
la création du type E (1 circuit entrant, 18 directions),
a donc été décidée.
D'une façon analogue, l'étude technique
a montré que, du moment qu'il était nécessaire
de dépasser vingt directions pour le meuble à deux
circuits, il fallait utiliser des commutateurs rotatifs à
cinquante directions. Dans ces conditions, il était aussi
facile et pas beaucoup plus coûteux d'obtenir quarante ou
cinquante directions que trente. Le nombre 30 étant plutôt
faible et le nombre 50 manifestement trop grand, on a créé
le type D (2 circuits entrants, 4o directions).
En ce qui concerne le meuble de la capacité
immédiatement supérieure, la capacité de cinquante
directions s'imposait en raison du type des commutateurs rotatifs
utilisés. Pour aller jusqu'à soixante ou soixante-cinq
directions, il aurait tout de suite fallu passer au commutateur
à cent directions ; et d'autre part, il arrive que trois
circuits ne soient pas suffisants pour desservir une localité
qui compte quarante-cinq à cinquante abonnés ou circuits
sortants. C'est pour ces raisons que le type C (4 circuits entrants,
5o directions), a été adopté.
Pour les meubles plus importants, la capacité
de cent directions, tout d'abord, s'imposait pour des raisons de
numérotation autant qu'à cause de la capacité
des commutateurs rotatifs. Or, un pointage exécuté
sur les ruraux à cent directions déjà en service
sur une assez grande échelle dans les régions de Paris
et de Rouen, a montré qu'aucun d'eux, même ceux qui
sont sur le point d'être saturés, ne demande plus.
de six circuits entrants. Pour le meuble du type B, à cent
directions, on a donc décidé d'admettre le même
chiffre.
Au delà de cent directions, la proposition
du constructeur qui .présentait un type de meuble dans lequel
chaque centaine d'abonnés était entièrement
indépendante et où le nombre de ces centaines pouvait,
en principe, être quelconque, présentait suffisamment
de souplesse pour être adoptée telle quelle. En pratique,
un meuble comme celui-là doit très rarement compter
plus de deux cents abonnés, et il est
tout à fait inutile de prévoir qu'il puisse dépasser
trois cents. Dans ces conditions, une capacité de douze circuits
entrants a paru suffisante pour le meuble du type A.
A l'autre extrémité de la gamme enfin,
et dans la catégorie, de beaucoup plus nombreuse, des meubles
à un circuit entrant, il a été reconnu souhaitable
de disposer, pour les tout petits réseaux, d'un meuble plus
économique encore que ceux des types E ou F, qui pût
desservir, par exemple, deux, trois ou quatre directions au plus.
L'étude technique de la question a montré que, dès
que le chiffre de quatre directions devait être atteint, il
était désirable d'équiper ce meuble avec des
commutateurs rotatifs, et dans ces conditions, le prix de revient
du meuble n'aurait pas été sensiblement différent
de celui de l'autocommutateur type F. Au contraire, il était
possible de réaliser un meuble tout à relais, plus
économique, qui desservît deux ou trois directions.
C'est ainsi qu'a été décidée la création
du meuble du type G qui, parce que ses trois directions peuvent
permettre une extension éventuelle des tout petits bureaux,
a été jugé plus intéressant, en dépit
de la complication supplémentaire, qu'un meuble à
deux directions seulement.
Sommaire
ANNEXE II RENSEIGNEMENTS STATISTIQUES.
Le téléphone automatique rural du
type R. 6 doit être installé dans les 40 départements
suivants :
1° Départements à équiper
en entier :
Ain. Allier. Ardèche. Ariège.
Aude. Arrondissement de Belfort. Cher. Côte-d'Or. Drôme.
Haute-Garonne. Indre. Loiret.
Lot. Lot-et-Garonne. Morbihan. Nièvre. Nord. Hautes-Pyrénées.
Deux-Sèvres. Tarn.Var. Vienne. Haute-Vienne. Yonne.
2° Départements à équiper
partiellement : Aisne. Alpes-Maritimes. Aveyron. Charente. Creuse.
Landes. Loire. Lozère.
Maine-et-Loire. Marne. Meuse. Moselle. Haut-Rhin.
Savoie. Seine-et-Oise. Tarn-et-Garonne.
Ces installations se répartissent en 276
groupes et portent sur 7.054 autocommutateurs ruraux, qui desservent
55.888 abonnés et 9.302 cabines.
Dans chaque catégorie, le nombre des meubles
ruraux s'établit comme suit :
Type A 80 - B 344 - C 405 - D 890 - E 1207 - F 2.650 - G 1478 TOTAL
7.054
L'importance des départements à équiper
est très variable : le département du Nord comptera
6.539 abonnés ruraux et 458 autocommutateurs, alors que celui
des Hautes-Pyrénées n'en comptera respectivement que
497 et 97.
L'importance des groupes est également très
variable. Les plus importants sont :
Au point de vue du nombre des abonnés : Angers
1.304 abonnés ruraux, Orléans 1134, Limoges 976, Bourges
960
Au point de vue du nombre des bureaux : Toulouse
172 autocommutateurs, Dijon 135 ,Angers 115, Bourges 104.
NOTA.
I° Il convient de remarquer qu'au nombre indiqué
plus haut des abonnés appelés, du fait de l'installation
de l'automatique rural, à bénéficier des avantages
qu'il comporte doit s'ajouter le nombre des abonnés reliés
à des centres manuels qui comptent moins de 200 abonnés
et ne jouissent pas à l'heure actuelle d'un service téléphonique
permanent.
En tenant compte de cet élément, on constate que
la permanence du service sera étendue ainsi à 73.483
abonnés et plus de 9.5oo cabines
2°
Au 1" janvier 1935, le nombre des réseaux automatiques
ruraux déjà en service dans les régions de
Paris, Rouen et Rennes principalement, s'élevait à
2.086 et le nombre des abonnés ruraux à 21.064.
Ajoutés aux précédents, ces chiffres permettent
de se faire une idée de l'importance prise actuellement par
ce mode d'exploitation.
Sommaire
L'histoire nous dira que le plan du système
automatique-rural adopté pour la France (décret
1935) a en fait accru le retard d'automatisation du réseau
téléphonique français dans sa globalité,
par rapport au reste de l'Europe qui n'a pas retenu cette demi
solution à coût réduit.
Le système automatique-rural a même par la suite,
dans les années soixante, retardé l'automatisation
totale des provinces.
Par exemple, en 1968, est mis en service un centre automatique-rural
à Corté, dans le département de Corse...
À la décharge de M. le Ministre des PTT Georges
Mandel qui fit en 1935 ce qu'il put avec les moyens du bord,
la IIIème République déjà bien ébranlée
dans ses fondations profondes était déjà
très-essoufflée et noyée dans les scandales
à répétitions qui n'allaient pas tarder
à l'emporter dans le tourbillon impitoyable que l'Histoire
réserve toujours aux plus faibles, aux imprévoyants
et aux inconséquents.
Sauf rares exceptions notables comme Mr Mandel, la classe politique,
était plus préoccupée par sa survie politicienne
à court terme que par la modernisation du réseau
téléphonique de télécommunications
du pays, et encore moins par le réseau de communications
routier français pour ainsi dire moyenâgeux.. |
Petite anécdote
: Le cadran
de maintenance R6
(c'est rare d'en trouver encore de nos jours)
Avec le début du R6 est apparu un curieux
cadran à 11 trous fabriqué par la CGCT-Paris, conçu
pour les techniciens à des fins de maintenance du central.
Ce cadran était réservé aux tables dessais
des télécommunications de province où le matériel
R6 fut déployé.
Normalement tout organe Orienteur du R6 retrouve sa position de
repos « par défaut » au raccrochage de labonné
quand la communication ne peut être obtenue, ou mieux encore,
une fois que la communication est établie avec succès.
Le onzième trou « E » comme Essai, servait à
tester le cycle complet de commutation pas à pas du
système R6, car la onzième impulsion donnée
au cadran par la lettre « E » permettait de vérifier
si oui ou non les Orienteurs (commutateurs rotatifs pas à
pas à onze positions : une par valeur de chiffre plus une
de repos) chargés de « mémoriser » chaque
chiffre du numéro de téléphone demandé,
retrouvaient correctement leur position initiale de repos.
Ce cadran spécifique permettait donc à lopérateur
de la table dessai dordonner le retour immédiat
de nimporte quel orienteur sélectionné afin
de pouvoir constater ou non le bon fonctionnement des cliquets et
des ressorts de rappel de ces organes.
élément
d'un pupitre de table d'essai pour R6
Nota : Le cadran téléphonique à 11
trous a ultérieurement été utilisé pour
tester les multisélecteurs PENTACONTA 1040 et 2080.
En effet, la 11ème impulsion de ce cadran spécial
permettait d'atteindre les lignes Hors Numérotation, utilisées,
par exemple, pour les taxiphones, les lignes de groupement alphanumériques.
(Pour chaque cadre-multisélecteur de 52 points de sortie,
2 points de sortie étaient donc Hors Numérotation
en service normal)
Sommaire